点上方蓝字可关注 微信号:装修33天
▲ 使用面积103平,造价29万,业主是一对年轻夫妻,他们二人都是军人,由于工作内容不同导致男主只能定期回一趟家,他们希望可以做到轻装修重装饰,且有身在城市住在森林的感觉
▲ 原始结构图
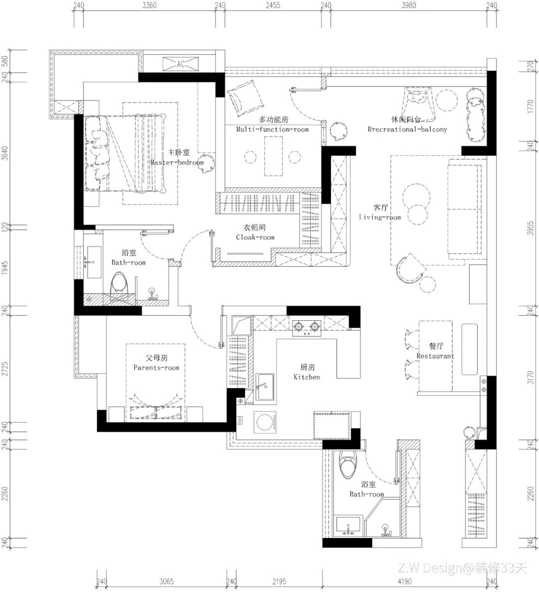
▲ 平面布置图
▲ 玄关,进门处的地面做了一个落尘区,两侧打造大面积收纳柜,靠近门处局部留空兼具换鞋凳与置物功能
▲ 设置长虹玻璃隔断,避免入户大门正对餐厅和阳台,缓冲视线又不影响采光
▲ 利用错落墙面设计黑板墙与隔板,美观文艺又实用
▲ 餐厅,一套简约的餐桌椅搭配长条餐凳,一旁的成品餐边柜满足基本收纳
▲ 将原始生活阳台与厨房合为一体后设计为开放式厨房,在角落预留了洗衣机与烘干机的位置
▲ 根据屋主的身高定制高低错落的台面
▲ 客厅纳入阳台,整体以白+木为主,搭配简约风的家具,干净清爽
▲ 美好自然流露着对对方的爱意,恰好融入到房屋的每一寸每一角
▲ 取消电视改为投影,收纳型电视墙延伸至过道设计置物装饰格,下方留空部分嵌入灯带更显轻盈
▲ 客卫,钻石型淋浴间合理利用空间,磨砂推拉门外是生活阳台
▲ 将原始书房一部分空间与休闲阳台重组成为了集会客、书房、休息于一体的独立空间
▲ 客卧,利用移动后的厨房墙体,增加了嵌入式衣柜的空间
▲ 床头的扎染装饰画是整个房间的点睛之笔
▲ 主卧干净且温馨,雾霾蓝墙面营造舒适的睡眠空间
▲ L型飘窗成为休闲一角
▲ 衣帽间,设计悬挂式挂衣杆,简洁便利,可用于收纳换穿衣物
▲ 主卫,灰色系瓷砖墙地一体,采用玻璃隔断与错落地面规划淋浴区
文字编辑 | 东东
设计 | Z.W Design(成都)
微信:WalkmanofSaturnRing
后台回复「ZW」可以看更多作品
媒体转载请注明装修33天并保留设计师联系方式
欢迎业主、设计师、装修公司免费投稿照片
装修33天商务合作微信:king194316
松爷店铺掌柜微信:yejia1703
Z.W Design其他作品推荐
实用装修指南
装修33天 🏡 实用装修指南
你点的每个赞,都是对我们的支持