点上方蓝字可关注 微信号:装修33天
▲ 项目面积75平,总造价30万,本案为婚房,业主希望温馨,空间感大一些,色调轻快明亮,储藏空间强,但需要结合美观
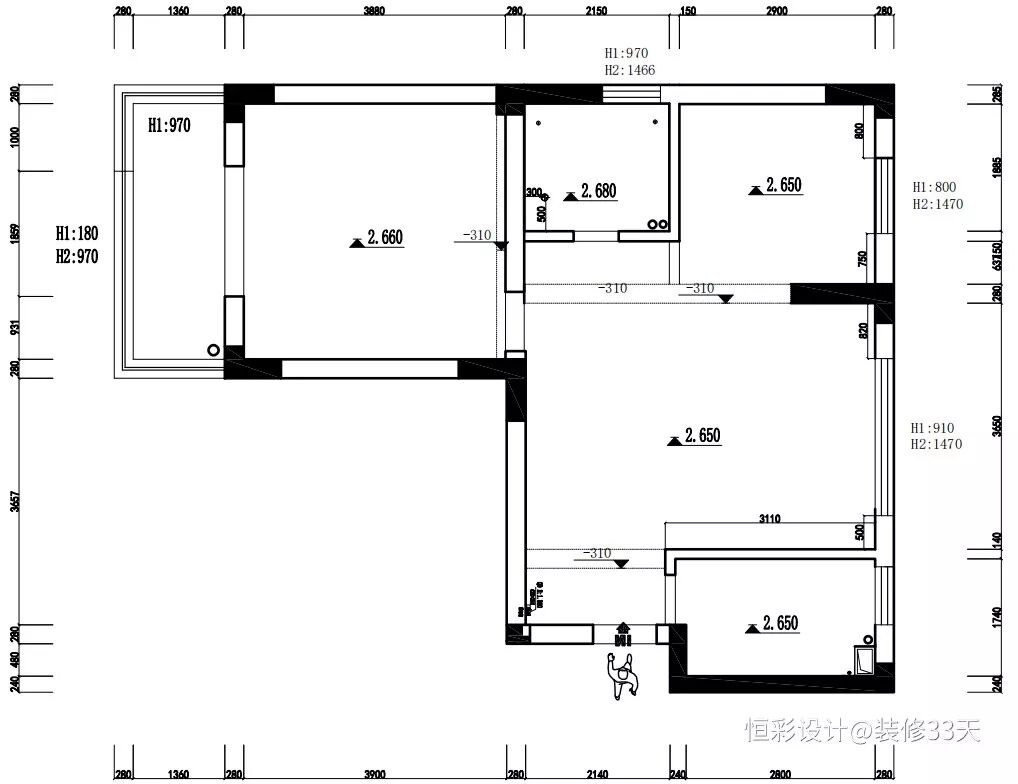
▲ 原始结构图
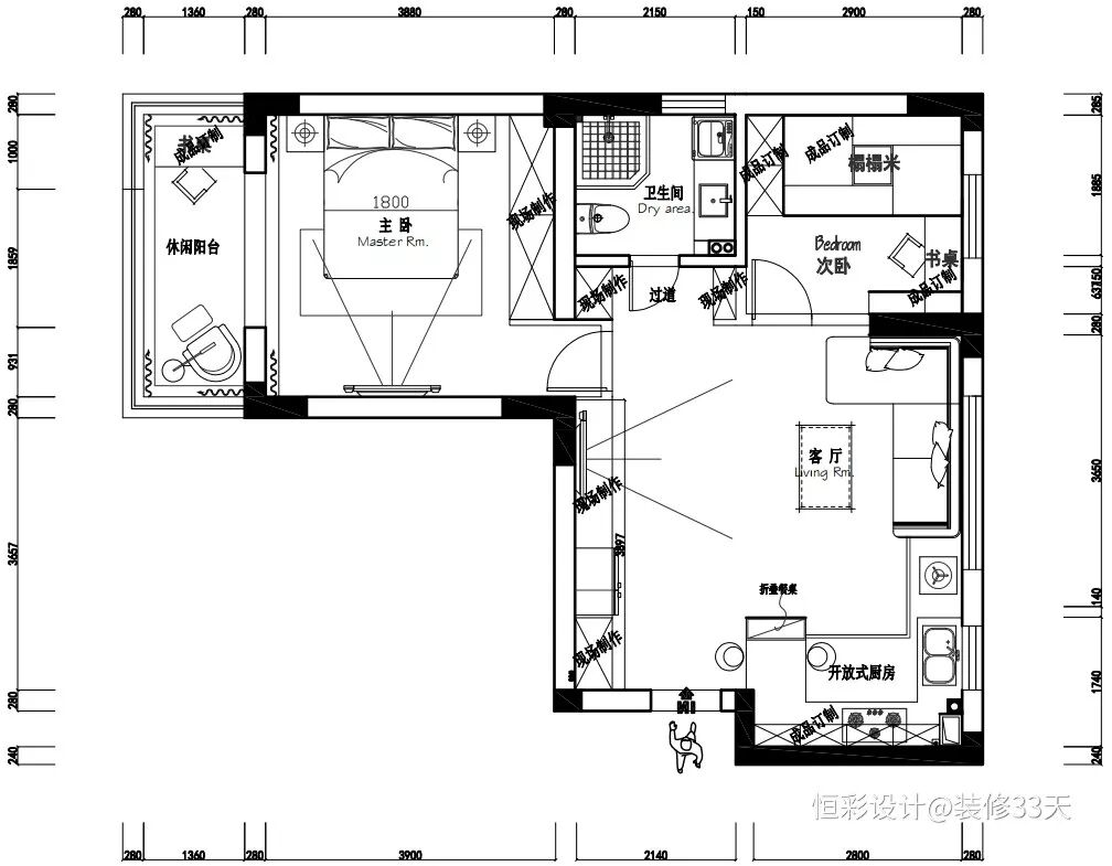
▲ 平面布置图
▲ 玄关打造置顶柜体,中部留空用于置物,右侧预留出冰箱位置,解放厨房空间
▲ 开放式厨房设计,一进门便是开阔的视野,上浅下深的橱柜搭配,层次分明
▲ 厨房台面延伸出就餐区,设计折叠餐桌,实用又节省空间
▲ 客厅,极简顶面装一盏金色造型吊灯,通过缩小家具比例来放大空间感,留出足够宽敞的活动空间
▲ 客厅以浅色系为主,点缀明黄色单人沙发提亮
▲ 布置灰色沙发搭配木色茶几组,抱枕颜色与拼色窗帘呼应
▲ 玄关柜延伸打造整墙电视收纳柜,半开半合的柜门设计,满足不同收纳需求
▲ 次卧,整体定制集榻榻米、书桌、储物于一体,将小空间利用最大化
▲ 主卧整体以浅蓝色为基调,深棕色的实木家具简约大气
▲ 背景铺贴蓝色底纹的墙纸,右侧设计移门衣柜负责收纳
▲ 主卧阳台内包,摆放一把舒适的躺椅作为休闲区
▲ 另一侧设置一个简易木架用来摆放绿植,增添自然休闲的气息
▲ 浅色调卫生间干净简约,错落台盆柜预留洗衣机位置
文字编辑 | 东东
设计 | 恒彩设计(杭州)
微信:18968018121
后台回复「恒彩」可以看更多作品
媒体转载请注明装修33天并保留设计师联系方式
欢迎业主、设计师、装修公司免费投稿照片
装修33天商务合作微信:king194316
松爷店铺掌柜微信:yejia1703
恒彩设计其他作品推荐
实用装修指南
装修33天 🏡 实用装修指南
喜欢我们的文章就随手转发到您朋友圈吧