▲ 建筑面积103平,悬挑式的玄关可以减少过道空间的拥挤感,与玄关相连的客卧墙面形成强烈的黑白对比
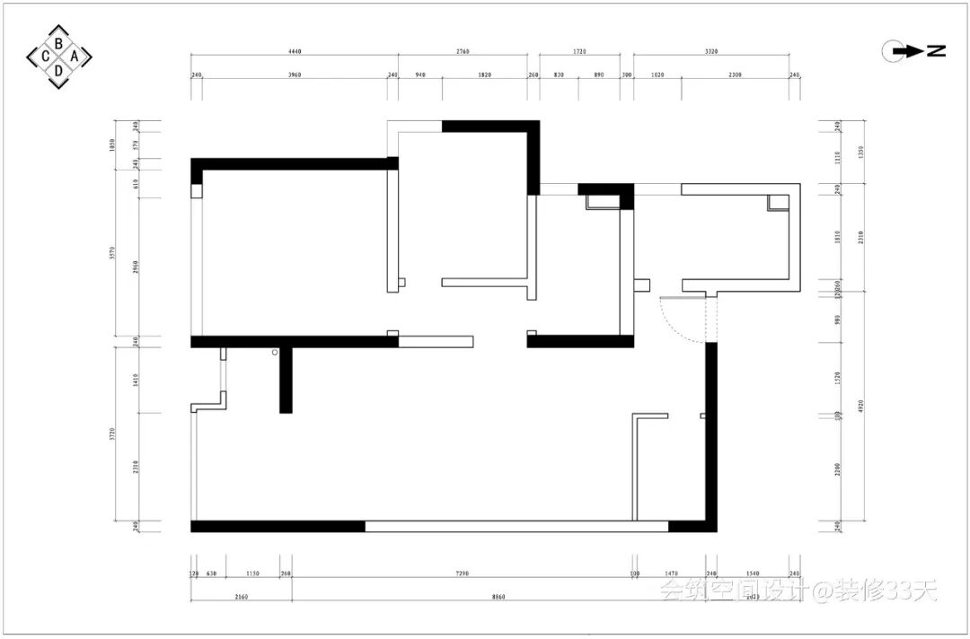
▲ 平面结构图
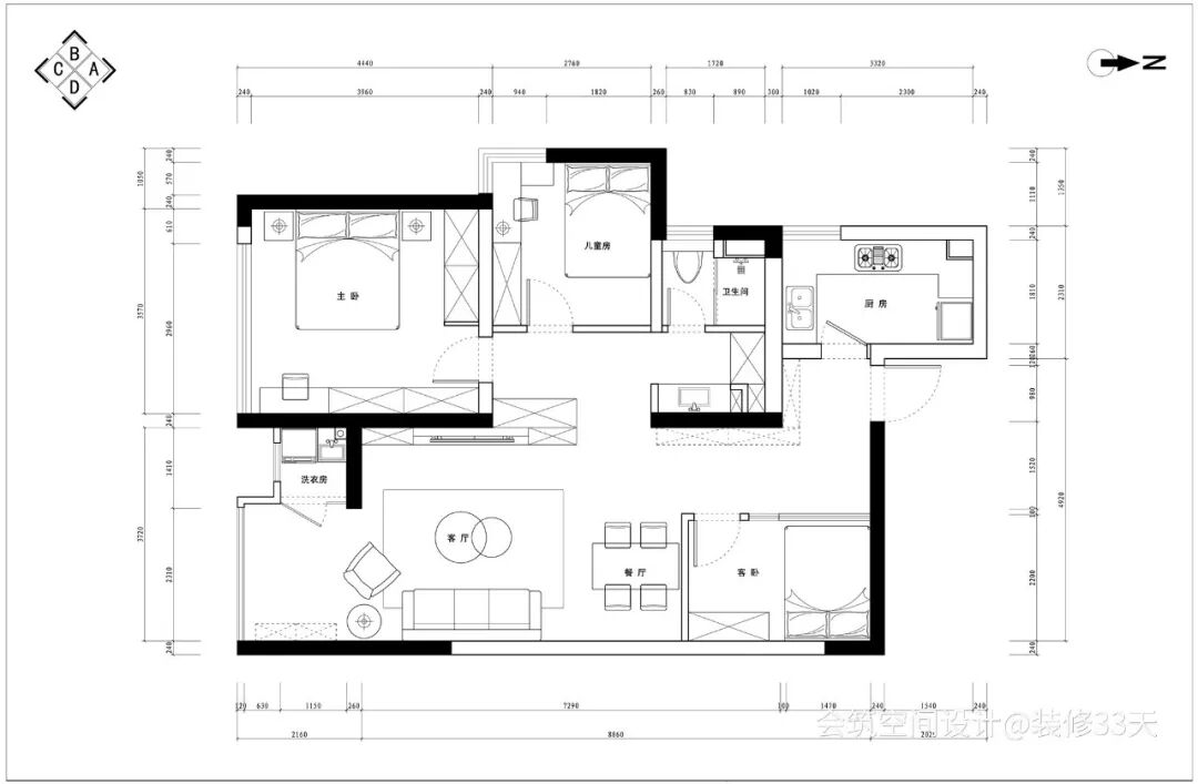
▲ 平面布置图
▲ 现代是整个设计的基调,简约时尚中又带着一些轻奢感,将阳台的空间纳入客厅,增加客厅使用面积的同时,也使得整个视野变得开阔
▲ 客厅整体保持纯粹的用色,优雅的灰搭配纯净的白,亲作的橙色挂画和黑色摇臂灯打破纯色背景墙的单调
▲ 客厅与阳台一角
▲ 餐厅选用原木色系餐桌,给人以温暖舒适的就餐体验感,白色郁金香,香薰蜡烛,玫瑰金的吊灯点亮空间,给餐厅平添一份时尚气息
▲ 厨房整体清爽雅致,和浅灰系列的橱柜相比较而言,深色的墙砖颜色作为衬托,低调又不失内涵,现代感十足
▲ 儿童房,灰白色的空间基调中搭配 Tiffany 蓝色窗帘,平面图可见一字型的衣柜连体书桌加造型柜的多功能设计,满足储物、学习、睡眠全方位的功能使用
▲ 云朵和房屋造型的置物架,打造趣味十足的儿童房
▲ 主卧延续整体空间的灰白基调,加以黄铜元素和墨绿色系的点缀,营造出一种舒适惬意的感觉
▲ 大面积的采光窗搭配白纱灰帘与整室的基调彼此呼应,金色元素点缀的灯饰透露些许时尚与优雅
▲ 浅灰色床背景搭配灰色丝绒软包床,细框艺术画与线性吊灯点缀,床边置顶衣柜满足卧室的收纳需求
▲ 床尾柜体延伸增加女主的梳妆区兼阅读一角
▲ 储物柜下方设计的部分敞开式空间,可以充当一个小书柜,也让立面更丰富
▲ 以视觉延伸效果的壁画做端景,一旁是卫生间干区,洗手台搭配壁龛与嵌入式储物柜,为小空间提升使用率
文字编辑 | 深深
设计 | 会筑空间设计(南京)
微信:13914784029
后台回复「会筑」可以看更多作品
媒体转载请注明装修33天并保留设计师联系方式
欢迎业主、设计师、装修公司免费投稿照片
装修33天商务合作微信:king194316
松爷店铺掌柜微信:yejia1703
会筑空间设计其他作品推荐
实用装修指南
装修33天 🏡 实用装修指南
你点的每个赞,都是对我们的支持