▲ 项目面积110平,业主是设计师的幼儿园同学,将原本刚需性质的套四户型改为套三+衣帽间,在不缺少功能性的同时,让生活品质得到相应提升
▲ 平面结构图
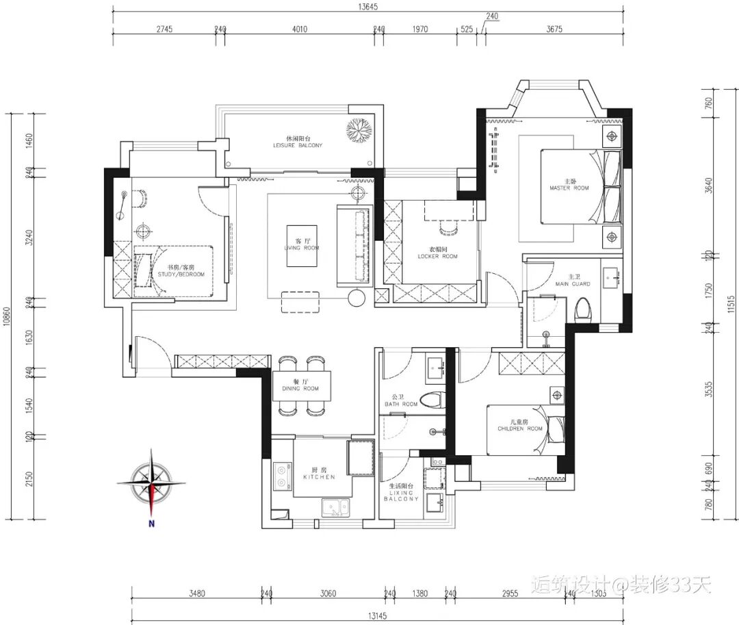
▲ 平面布置图
▲ 客厅,地面通铺深色瓷砖,加铺大张灰色地毯,落地采光的阳台与客厅相连,让黑白灰的定调空间不显昏暗,给人高级的视觉体验
▲ 纯黑的皮质主沙发与无任何修饰的白墙形成对比,一角的千年木盆栽加入一份生机
▲ 轻薄的圆形茶几丰富空间的柔美线条,皮质与石纹搭配出客厅的质感与品味
▲ 沙发一角特写
▲ 在沙发墙的一侧设计开放式储物格功能,电视背景墙选择纯黑色立面,一侧的隐形门对应玻璃墙的设计,有效利用空间,增加通透感
▲ 纯黑鼓凳搭配中古编织藤椅,让空间变得复古与灵动
▲ 书房加高的地台,通过一道自然的木色为客厅增加温度
▲ 过道将客餐厅做自然分割,原本的次卧变成多功能房,采用玻璃取代实墙,让入户动线明亮起来,现代简约的餐厅通过镜面背景加持,延伸了视觉
▲ 厨房,深色石纹地砖搭配灰色墙砖,白色的简洁橱柜门利落干净
▲ 儿童房,一面灰绿色调的背景搭配花灰色床靠,黑白线性吊灯的球形设计增添趣味性
▲ 主卧,采用纹理感较强的木地板上墙为黑白灰的卧室点缀自然温暖的视觉,丝绵质感的床品打造舒适的就寝环境
▲ 将主卧打造成带衣帽间套房模式,L型白色制定衣柜,极简的柜门搭配黑色线性拉手,白色的飘窗,白色的百叶帘,现代而实用的储物空间
▲ 主卫,墙地通铺白灰纹理的大理石瓷砖,顶面采用防潮石膏板更为大气,大大的玻璃淋浴房搭配黑色五金色彩层次分明
文字编辑 | 深深
设计 | 逅筑设计(成都)
微信:15828673961
后台回复「逅筑」可以看更多作品
媒体转载请注明装修33天并保留设计师联系方式
欢迎业主、设计师、装修公司免费投稿照片
装修33天商务合作微信:king194316
松爷店铺掌柜微信:yejia1703
逅筑设计其他作品推荐
现代极简复式大宅 环形楼梯太美了吧
实用装修指南
装修33天 🏡 实用装修指南
你点的每个赞,都是对我们的支持