▲ 房屋面积220平,造价120万,房子紧靠青山湖,地理位置和周边环境都很棒,业主夫妻都在阿里巴巴总部工作,到这里也很方便,目前这套房子用作休假使用
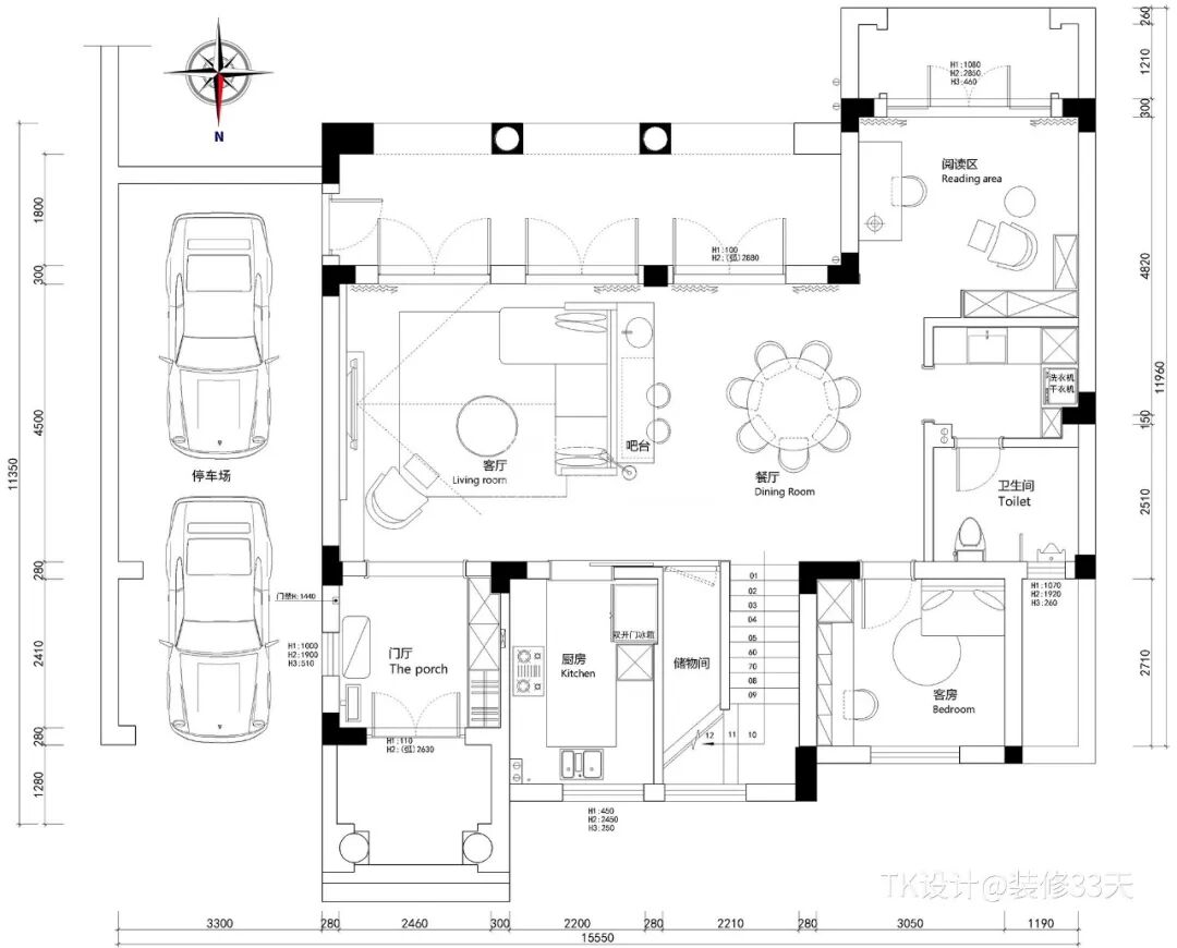
▲ 一层平面布置图
▲ 玄关,打造整面衣帽柜,另一侧设置长凳与圆镜,满足入户功能需求
▲ 经过玄关即见大横厅,大面积玻璃门窗赋予空间明亮的采光
▲ 客厅选用L型沙发,可以满足周末多人聚会观影,轻便的茶几方便移动
▲ 采用木饰面打造层次感电视墙,地面做了深色大理石和钢板空格组合的长条型台面,具备电视柜的机能
▲ 餐厅和客厅的之间做了一个吧台,可以补充客厅的座位,又可以分割两个区间,吧台留出直饮水水槽,方便日常使用
▲ 餐厅,一套圆形餐桌椅满足聚餐需求,造型吊灯设计感十足
▲ 楼梯下做了个储物间暗门,和厨房移门门套联合一起
▲ 厨房U型布局,小白砖墙面搭配灰色地砖,白+木橱柜门片清新大气
▲ 阅读区,黑板墙背景满足孩子随意涂鸦,打造开放式置物架用于收纳书籍与摆件
▲ 多功能房,打造工作台与书架,并设置了沙发床,满足书房与客卧的机能
▲ 卫生间干湿分区,干区兼做洗衣房,大面积收纳柜将空间利用最大化
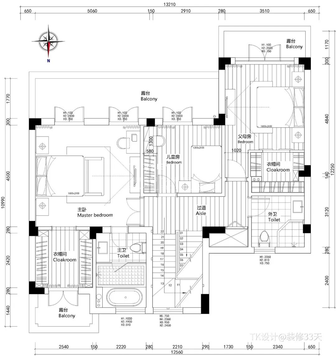
▲ 二层平面布置图
▲ 暂时还未入住的儿童房,另外一边放了很多玩具和一顶小帐篷
▲ 次卧,木饰面半墙搭配黑色皮质大床,营造沉稳静谧的氛围
▲ 黑框玻璃移门后是步入式衣帽间
▲ 二楼外卫优先考虑了儿童的喜好,白色长条砖墙面搭配几何纹理地砖
▲ 主卧以木色与白色为基调,搭配蓝色系窗帘点缀,多彩吊灯增添了灵动性
▲ 对称木饰面背景点缀造型壁灯,移门后是衣帽间
▲ 衣帽间为开放式设计,采用轻纱代替柜门,兼具美观与实用性
▲ 主卫,灰色系墙地砖质感丰富,设置淋浴与浴缸满足不同的洗浴需求
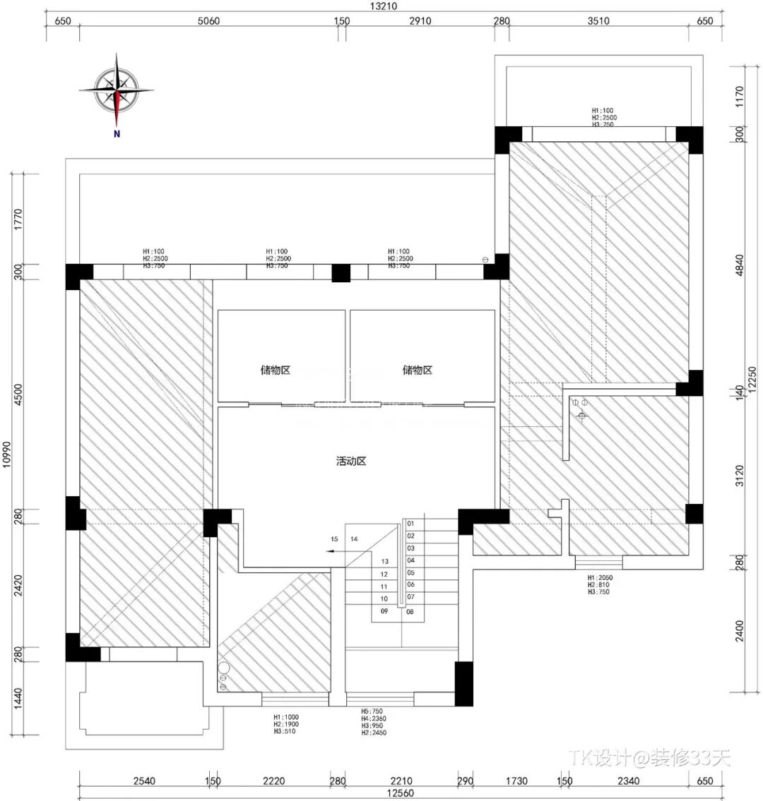
▲ 阁楼平面布置图
▲ 阁楼作为活动区,利用斜顶打造置物收纳区
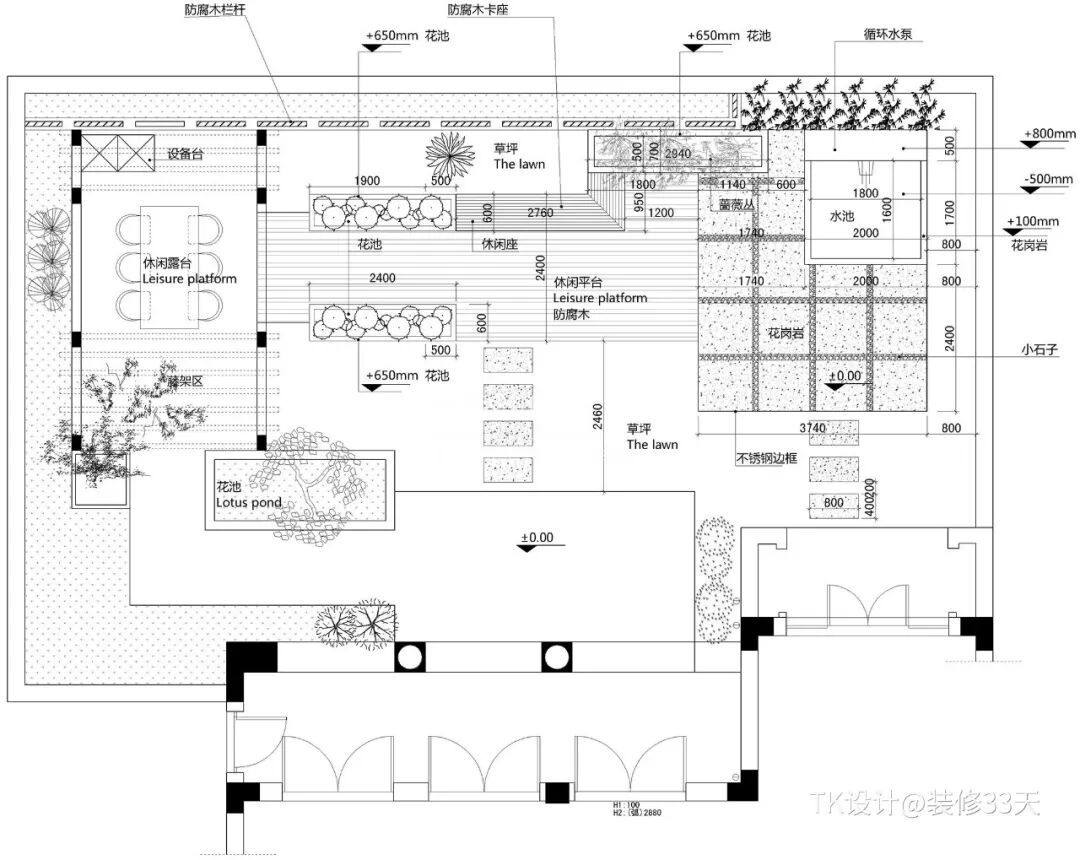
▲ 花园平面布置图
▲ 花园休闲平台地面铺设了防腐木,右侧利用循环水泵做了个小鱼池
▲ 无论是地面还是花池侧壁都嵌入了射灯,天色暗下来后,十分有氛围
文字编辑 | 东东
设计 | TK原创设计(杭州)
微信:tk_design
电话:15957143882
后台回复「TK」可以看更多作品
媒体转载请注明装修33天并保留设计师联系方式
欢迎业主、设计师、装修公司免费投稿照片
装修33天商务合作微信:king194316
松爷店铺掌柜微信:yejia1703
TK原创设计其他作品推荐
实用装修指南
装修33天 🏡 实用装修指南
你点的每个赞,都是对我们的支持