▲ 使用面积230平,造价90万,入户玄关简单干净,通过点、线、面的手法构造引出空间的基调
▲ 一层平面布置图
▲ 新建半高隔墙将玄关区与客厅分成两个区域,也正好作为电视机的安置墙,两侧均留了1.3米的过道作为正常通行
▲ 客厅,环绕落地窗赋予空间充足的采光,窗外景色形成天然背景
▲ 灰色布艺沙发组搭配白色大理石茶几,抱枕纹理与单人沙发呼应
▲ 客餐厅相连,视野开阔通透
▲ 餐厅,定制一体式餐桌与岛台,配合后面整排的高柜形成一个完整的西厨区域,使餐厅的功能更加完整全面
▲ 百叶窗特有的光影效果会使空间增加更多情调
▲ 通过玄关隔出的走廊区域通往厨房、客卧、卫生间
▲ 打造整面储物柜做隔墙,中部设计开放式格架做为业主的兴趣收藏陈列,用玻璃作为厨房隔墙解决走廊的采光问题
▲ 厨房U型布局,整体以白色为基调,呈现干净清爽的料理空间
▲ 一楼客卫,采用上浅下深的瓷砖铺贴,层次分明
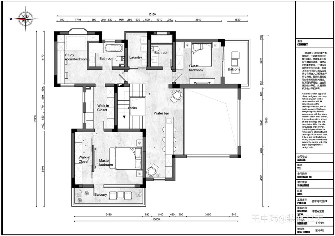
▲ 二楼平面布置图
▲ 二楼的会客区由传统的沙发布局变为更加年轻化的水吧形式
▲ 从二楼俯瞰客餐厅场域
▲ 主卧大套间内设立了两个衣帽间,供男女主人不同的使用需求
▲ 主衣帽间供女主使用,所以配备了一个大梳妆台以及首饰柜
▲ 男主衣帽间则巧妙的通过两道移门隐藏在电视墙后面,与主卧形成一个回字动线
▲ 主卧暗色搭配,凸显空间质感,哑光的丝绒软包通过围边的形式将整个床包裹在内
▲ 通过灯光的修饰营造出温馨的睡眠氛围
▲ 书房平时闲置的频率较高,因此以榻榻米的形式来增加储纳面积
▲ 主卫,灰色瓷砖墙地一体,利用马桶上方空间增设电热毛巾架,顶面灯光洗墙丰富层次
▲ 房屋外景
文字编辑 | 东东
设计 | 独立设计师 王中玮(上海)
微信:WangZw_Design
后台回复「王中玮」可以看更多作品
媒体转载请注明装修33天并保留设计师联系方式
欢迎业主、设计师、装修公司免费投稿照片
装修33天商务合作微信:king194316
松爷店铺掌柜微信:yejia1703
独立设计师 王中玮其他作品推荐
实用装修指南
装修33天 🏡 实用装修指南
你点的每个赞,都是对我们的支持