▲ 建筑面积45平,总造价16万,本案是一户老小区的二次改造,砖混结构,80年代的户型无法满足现在年轻人的需求,根据单身业主的生活习惯与喜好,打造高颜值居家空间
▲ 平面结构图
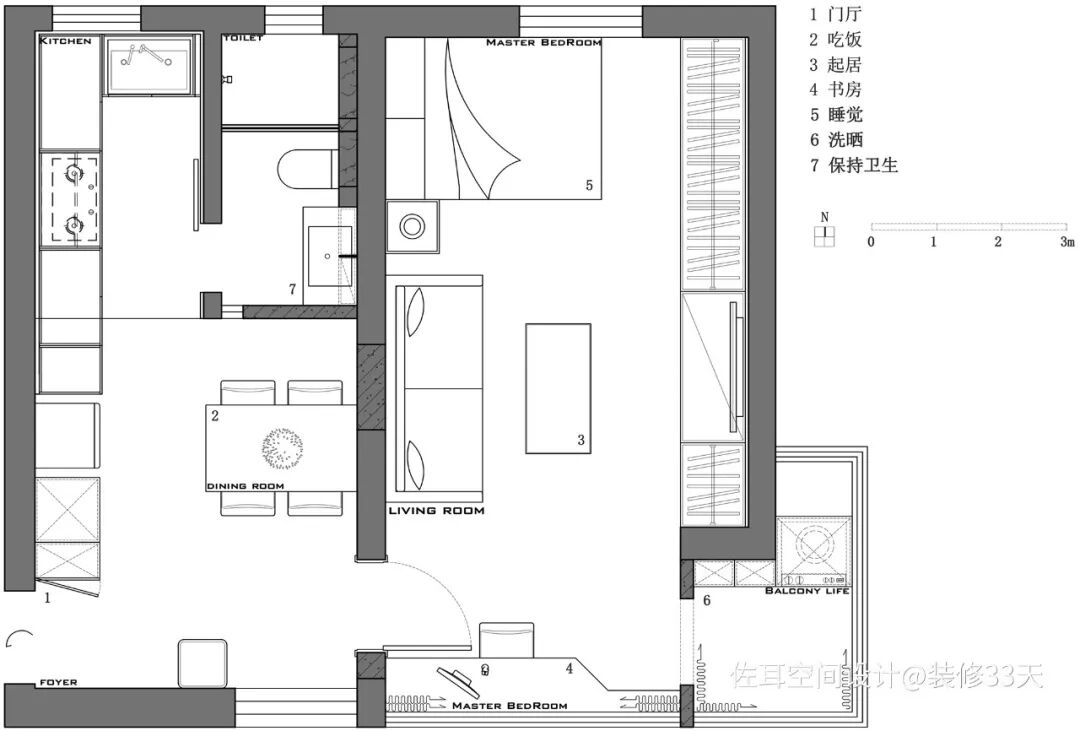
▲ 平面布置图
▲ 入户一组通顶的多功能柜体满足入户鞋柜与餐厨储物的功能,Tiffany 色的柜体柜门搭配金色拉手,给人清新精致的视觉体验
▲ 玄关以餐厅与共享阅读区为端景,水磨石瓷砖地面搭配褐红拼色墙,加入黑色带来的深邃与个性格调
▲ 餐厅,餐桌靠墙放置,留出餐厨合理的空间动线,简单自然的餐桌椅搭配两盏营造氛围的吊灯,打造复古小轻奢的情调
▲ 水晶灯的华丽结合具有仪式感的餐具,将原来的厨房墙面移至餐厅背景,通过一列玻璃砖墙作为背景修饰,同时为采光较弱的餐厅带来通透性
▲ 餐厅望向厨房,就餐区与厨房相邻让生活动线更加连贯
▲ 厨房,水磨石地砖搭配脏粉色的橱柜门,取消上柜辅以工字铺贴墙砖,不影响餐厨空间的采光
▲ 进入客厅与就寝书房区域,褐红色的墙面让两个空间呼应起来
▲ 客厅与卧室公用同一空间,以不同颜色做定制柜,让空间丰富
▲ 木色地板搭配以蓝白为色块的背景墙,顶面的简欧围边混搭出空间的小精致,姜黄色的沙发与灰紫色的床品在同一空间中和谐共存
▲ 床尾的通高大衣柜满足客与卧的储物需求
▲ 电视背景简单却充满艺术格调
▲ 利用窗沿下的过道规划成书房,兼具阅读、学习、梳妆的功能,拱门是生活阳台的入口
▲ 从生活阳台看书房
▲ 卫生间,灰色地砖搭配人字拼绿色墙砖,长虹玻璃,金色五金件让小空间拥有高颜值
文字编辑 | 深深
设计 | 佐耳空间设计(江苏无锡)
微信:heirenshushu
媒体转载请注明装修33天并保留设计师联系方式
欢迎业主、设计师、装修公司免费投稿照片
装修33天商务合作微信:king194316
松爷店铺掌柜微信:yejia1703
实用装修指南
装修33天 🏡 实用装修指南
你点的每个赞,都是对我们的支持