▲ 项目实用面积89平,总造价30万,设计风格追求简单时尚,在设计上尽量简化的同时,又追求不一样的效果
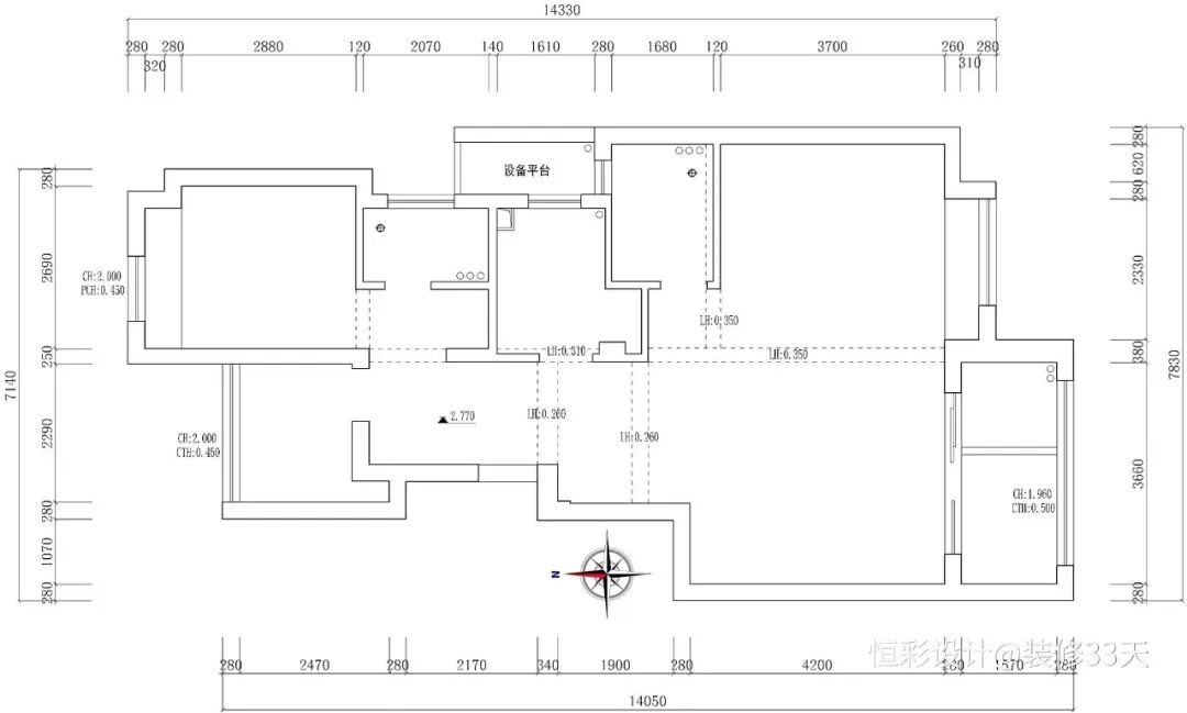
▲ 原始结构图
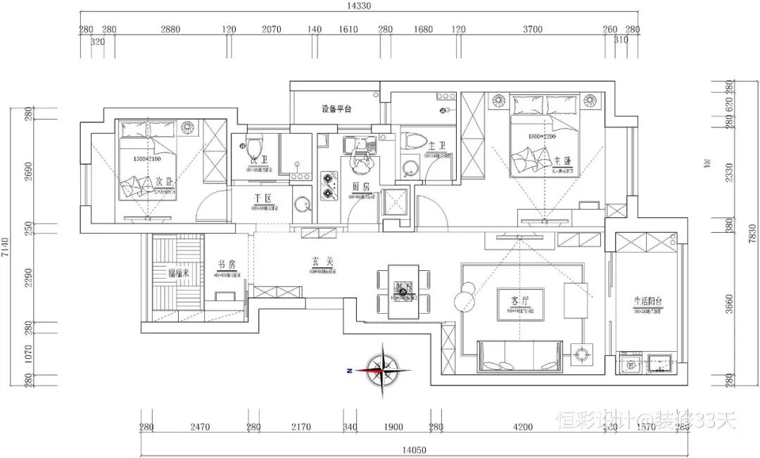
▲ 平面布置图
▲ 客厅,灰色哑光地砖搭配灰色地毯,墨绿色窗帘与金色灯饰提升空间质感
▲ 浅色系背景墙搭配简单不规则的装饰画,休闲随意,利用侧面打造置顶柜体补充客厅收纳
▲ 电视背景没有过多造型与装饰,纯色墙面搭配木色柜体,简约实用
▲ 客厅望向餐厅
▲ 餐厅,粉色绒面餐椅和金色网格餐椅质感丰富,通过粉色系装饰画与金色灯饰呼应营造就餐氛围
▲ 墙面设计洞洞板,既可以作为简单的收纳使用,也可以用来装饰
▲ 厨房以黑白灰为主,灰色系墙地砖搭配白色橱柜,呈现干净简约的料理空间
▲ 书房+榻榻米的设计,可实现多功能,同时也最大化的利用空间
▲ 粉色系主卧加入棕褐色家具,甜而不腻,点缀金色灯饰
▲ 裸粉色背景墙搭配简约装饰画随意摆放,时尚休闲
▲ 大面积柜体搭配落地镜,可以充当衣帽间的功能
▲ 粉色系飘窗成为卧室休憩一角
▲ 主卫,用浴帘做隔断,经济实用不占空间
文字编辑 | 东东
设计 | 恒彩设计(杭州)
微信:18968018121
后台回复「恒彩」可以看更多作品
媒体转载请注明装修33天并保留设计师联系方式
欢迎业主、设计师、装修公司免费投稿照片
装修33天商务合作微信:king194316
松爷店铺掌柜微信:yejia1703
恒彩设计其他作品推荐
实用装修指南
装修33天 🏡 实用装修指南
你点的每个赞,都是对我们的支持