▲ 使用面积100平,造价20万,房子为典型的小三室户型,考虑到屋主父母来住的需求,决定保留原三室的结构,并通过对空间的部分整改提升业主的居住质量
▲ 原始结构图
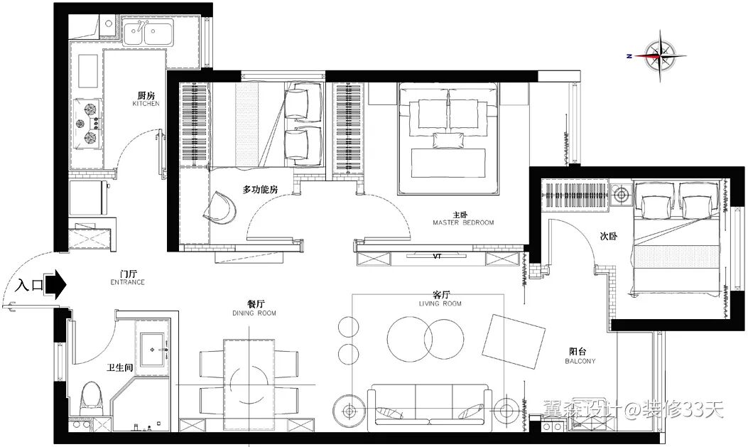
▲ 平面布置图
▲ 玄关,打造分体式鞋柜,中部与底部留空嵌入灯带,方便日常使用
▲ 将次卧墙体内推,阳台拓展为长型阳台,增加了客厅采光面积
▲ 布置米色皮沙发搭配大理石茶几,背景墙铺贴浅色壁布修饰复古装饰画,空间加入金色元素点缀,整体呈现简美轻奢格调
▲ 定制收纳型电视墙,提前刻槽留线做隐形式收纳,下方抽屉及两侧收纳柜,视觉上对称整齐
▲ 客厅望向餐厅
▲ 餐厅,选用大理石造型餐桌搭配绿色丝绒餐椅,背景定制对称餐边柜,高于餐桌10cm处设置隔板方便收纳
▲ 厨房以浅色系为主,并新建薄墙放置冰箱,再将厨房门内推(平面图可见),使空间整体更加整齐
▲ 改变了两个卧室的开门方向(平面图可见),新建走廊并通过陈设手法添置小景
▲ 多功能房,定制榻榻米+收纳柜+书桌一体化设计,实现一房多用
▲ 次卧,素雅的墙面搭配灰色高背床与窗帘,加入舒适的床品,简单温馨
▲ 床侧打造了置顶衣柜,增添了空间收纳功能
▲ 主卧选用经典的美式高背床,通过壁灯、挂画、地毯等单品营造舒适氛围
▲ 床头一角,金色元素点缀提升质感
▲ 卫生间,设计钻石型淋浴房更加节省空间,利用包管空间设置壁龛
文字编辑 | 东东
设计 | 翼森设计(西安)
电话:400-029-1118
公众号:翼森设计
客服微信:esnvip01
后台回复「翼森」可以看更多作品
媒体转载请注明装修33天并保留设计师联系方式
欢迎业主、设计师、装修公司免费投稿照片
装修33天商务合作微信:king194316
松爷店铺掌柜微信:yejia1703
翼森设计其他作品推荐
115平混搭三室 深色调好看有质感
实用装修指南
装修33天 🏡 实用装修指南
你每次点赞和转朋友圈,都是对我们的支持