▲ 使用面积110平,三代同堂的五口之家,入户打造分体式玄关柜,轻盈耐看又实用,一黑一白,在视觉上形成强烈对比
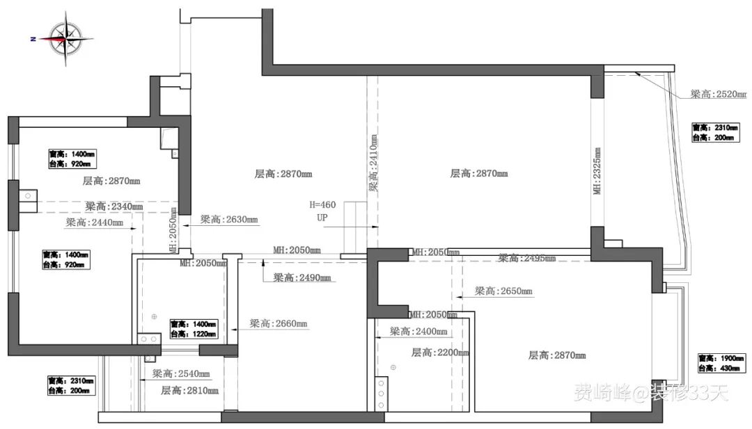
▲ 原始结构图
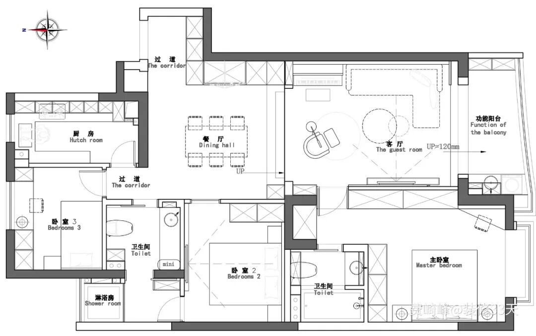
▲ 平面布置图
▲ 经过玄关来到餐厅空间,右边用了灰色烤漆玻璃做视觉延伸,正对面的白色烤漆磁性玻璃方便女儿在这边画画,中间还隐藏着次卧门
▲ 餐厅选用灰色岩板餐桌搭配咖色软包餐椅,背景打造整面收纳柜,并嵌入冰箱
▲ 厨房U型布局,操作动线流畅,灰色墙地砖与白色烤漆柜门,方便打理,左侧设计隔板取代吊柜更显宽敞
▲ 客厅主卧和餐厅次卧厨房区域有460左右的高度差,用了不锈钢收口做了黑色垭口套,并嵌入了灯带增添设计感
▲ 客厅没有过多的家具布置,合理、可变又灵活的空间分配,使得房间在无形中获得了扩容
▲ 客厅纳入阳台,大面落地窗提供充足采光,灰色艺术漆顶面搭配大面积留白传达出极简的状态
▲ 灰色皮沙发慵懒舒适,墙上的小型壁灯也是极为精致
▲ 电视墙新建白色块面与灰色墙面结合,灰色的悬浮电视柜带来轻盈感,右侧黑色的隐形门完美藏身于块面交织的平面
▲ 阳台一侧打造实用的洗衣区,另一侧置顶柜体用于收纳清洁用品
▲ 阳台望向客餐厅视角
▲ 老人房整体色调沉稳舒适,胡桃木色背景与侧面的柜体呼应,简约又耐看
▲ 背景嵌入暖光灯带,方便起夜照明
▲ 床尾的门通向客卫,方便老人日常生活
▲ 客卫双开门设计形成洄游动线,十分便捷实用
▲ 主卧延续极简格调,床头点缀异形壁灯,让空间时尚活跃起来,深色窗帘与床品营造静谧氛围
▲ 角落做斜面梳妆台,不影响行走动线,上方异形的镜面柜可收纳护肤品
▲ 床尾和侧面打造大面积收纳柜,让空间时刻保持整洁
▲ 卫生间干湿分区,淋浴房采用玻璃移门隔断,更加通透、舒适
文字编辑 | 东东
设计 | FF INTERIOR DESIGN 费崎峰(上海)
微信:18601793539
后台回复「费崎峰」可以看更多作品
媒体转载请注明装修33天并保留设计师联系方式
欢迎业主、设计师、装修公司免费投稿照片
装修33天商务合作微信:king194316
松爷店铺掌柜微信:yejia1703
FF INTERIOR DESIGN 费崎峰其他作品推荐
实用装修指南
装修33天 🏡 实用装修指南
你每次点赞和转朋友圈,都是对我们的支持