▲ 建筑面积90平,半包7.2万,总造价30万,本案为平层住宅,面朝大江,户型紧凑,三代五口人居住,空间功能及储物要求均需兼顾
▲ 平面结构图
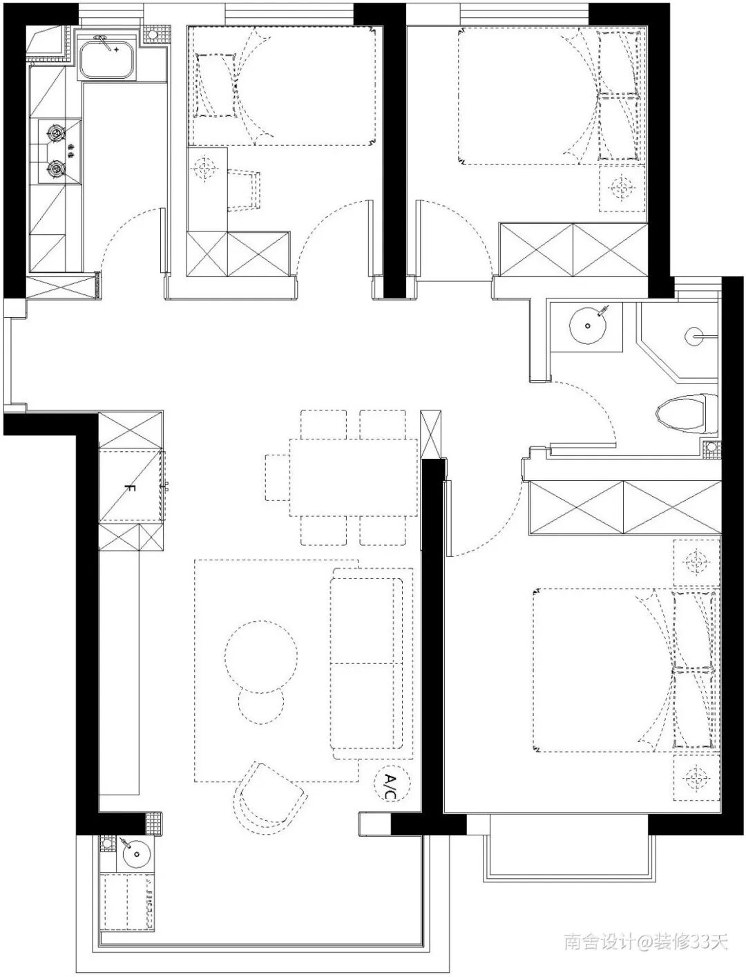
▲ 平面布置图
▲ 入户一侧设计嵌入式收纳柜,兼具储物与鞋柜的机能,中部留空辅以木色格子,方便随手置物
▲ 客厅纳入阳台,扩大使用面积确保公领域采光,设计风格和配色融合现代简约与北欧的简洁与舒适
▲ 通过黑白及原木色的二维及三维对比,纯粹且颇有张力,不同材质的家具与软装丰富空间质感
▲ 棕咖色的皮质沙发搭配黑白纹理靠枕,格调简约时尚
▲ 客厅小景
▲ 电视背景墙采用留白手法,木色悬空电视柜,与一侧的黑色竖柜形成对比
▲ 客厅与餐厅互通,由竖柜延伸出的L型木皮包裹出餐厅场域,柜体部分预留双开门冰箱的位置,解放厨房空间
▲ 餐厅,餐桌的弧线对应餐椅的柔和造型,木皮背景的一侧镂空设计错落展示区,并兼具隔断作用
▲ 厨房,深灰色的防滑地砖搭配工字铺白色地铁砖,浅浅的灰褐色橱柜门,耐看耐脏也显高级
▲ 厨房一角
▲ 次卧,低饱和的用色搭配白色的极简家具,窗框也做成白色,让整个空间变得纯粹明快
▲ 主卧,采用不同层次的蓝色基调搭配灰色床品与木色大床,运用流行色配比表达业主对生活的理解和审美偏好
▲ 主卧一角,银灰色玻璃线性吊灯搭配复古音响与白色玫瑰,简单的一角呈现时尚的杂志风格
▲ 卫生间的硬装与厨房硬装呼应,延续灰地砖配白色墙砖,黑色的家具与五金加深空间层次感
文字编辑 | 深深
设计 | 南舍设计(南京)
微信:LilyDesign1987
微信公众号:nanshekongjiandesign
后台回复「南舍」可以看更多作品
媒体转载请注明装修33天并保留设计师联系方式
欢迎业主、设计师、装修公司免费投稿照片
装修33天商务合作微信:king194316
松爷店铺掌柜微信:yejia1703
南舍设计其他作品推荐
实用装修指南
装修33天 🏡 实用装修指南
你每次点赞和转朋友圈,都是对我们的支持