▲ 使用面积83平,总造价20万(硬装+家电+软装),一家三口居住,业主喜欢简约风,希望能感受阳光洒在屋子每个角落
▲ 原始结构图
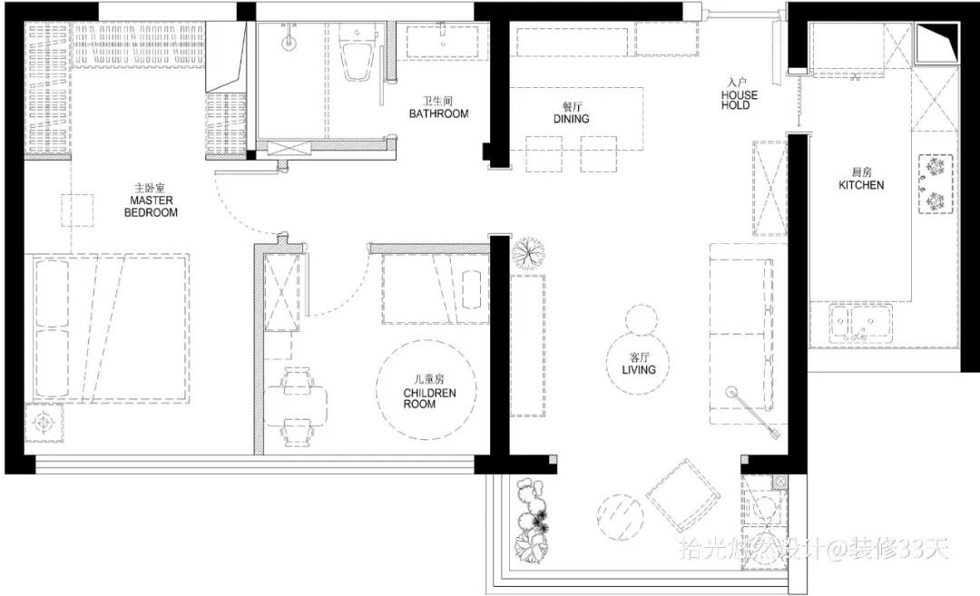
▲ 平面布置图
▲ 客厅整体以雾霾蓝与白色为主,搭配木地板与绿植点缀,给人舒适温馨的感觉
▲ 沙发边上设置成品装饰柜,补充收纳功能,黑色折叠摇臂灯满足沙发看书照明,同时也是很好的装饰
▲ 阳台放一把舒适的躺椅作为休憩区
▲ 考虑到从小培养宝宝的良好习惯,业主决定客厅暂时不安装电视,简约的电视柜上随意摆放两幅装饰画点缀
▲ 客厅望向餐厅与玄关
▲ 餐厅设计为储物卡座+吊柜的模式,兼具鞋柜功能,雾霾蓝背景墙设计隔板做置物装饰
▲ 厨房纳入阳台,扩大使用空间,吊柜局部留空方便收纳常用物品,结合壁挂五金的设计,保持台面干净整洁
▲ 儿童房整体配色清新舒适,墙面的浅蓝色区域为可随意涂画的黑板漆,让孩子拥有自由创想发挥的空间
▲ 宝宝还小跟父母一起睡,所以设计折叠床可以腾出更多的空间作为宝宝玩耍的开阔区域
▲ 主卧以灰蓝色与粉色为主,整个空间看似简单,却在各种不经意的细节里打造了一种舒适的慵懒
▲ 主卧纳入阳台后,拥有足够的空间规划出U型衣帽间
▲ 衣帽间打造不同功能的柜体,做到合理分类,让衣帽间井然有序
▲ 卫生间干湿分区设计,背景墙铺贴彩色瓷砖,结合灯带的设计,给人带来愉悦的感受
▲ 湿区,肌理感丰富的白色墙砖搭配拼色六边形地砖,在通透的玻璃隔断下,整个空间都显得简约而干净
文字编辑 | 东东
设计 | 拾光悠然设计(成都)
微信:shiguang3277653
后台回复「拾光悠然」可以看更多作品
媒体转载请注明装修33天并保留设计师联系方式
欢迎业主、设计师、装修公司免费投稿照片
装修33天商务合作微信:king194316
松爷店铺掌柜微信:yejia1703
拾光悠然设计其他作品推荐
实用装修指南
装修33天 🏡 实用装修指南
你每次点赞和转朋友圈,都是对我们的支持