▲ 使用面积82平,精装改造总价15万,三女之家(1母2女)希望通过空间软硬装的改造实现增加收纳空间,统一风格
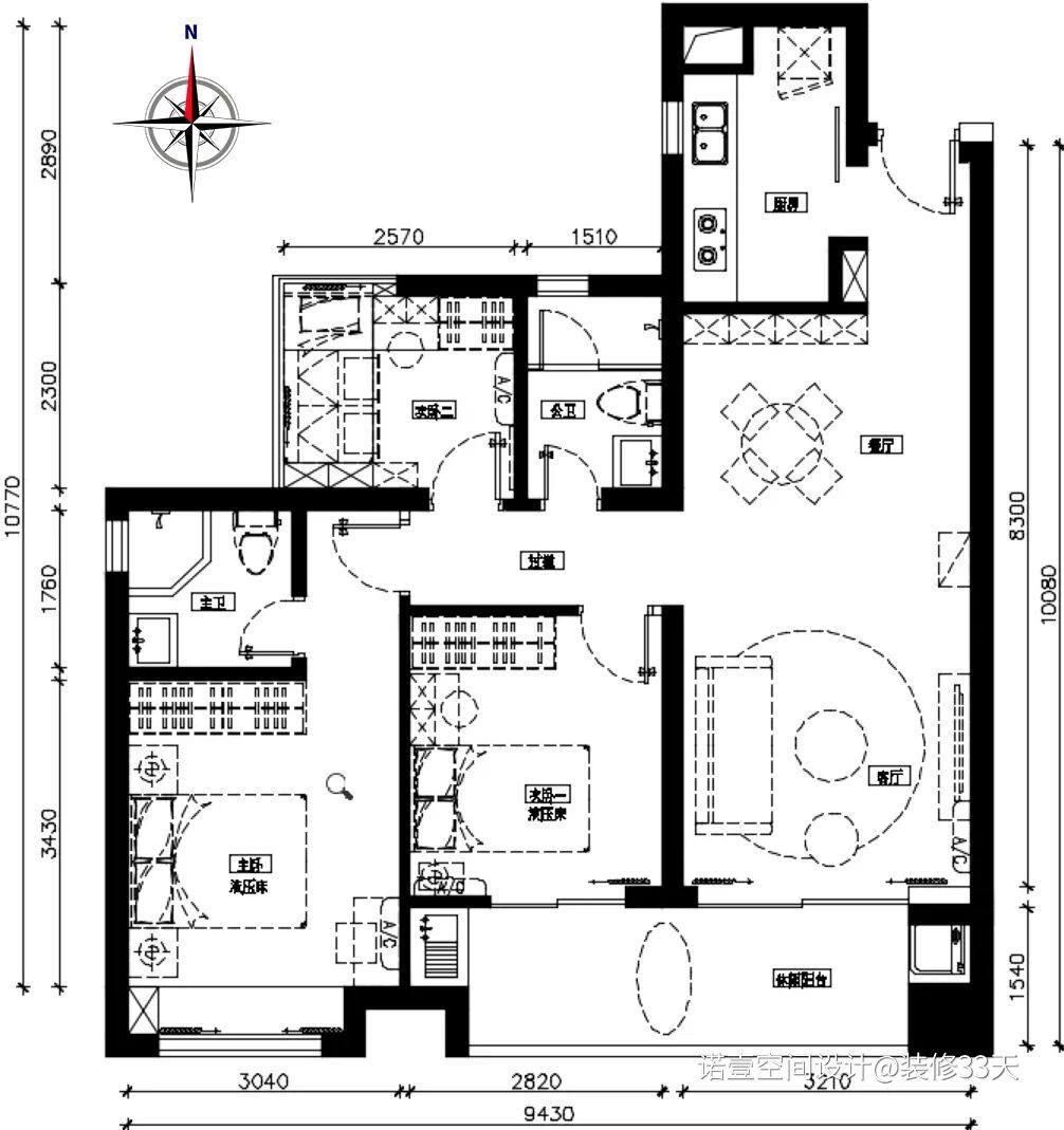
▲ 平面布置图
▲ 沿着入户动线,即见客餐厅互通的公领域空间,整个空间以原木色为主调,灰粉点缀,打造日式温馨的居家格调
▲ 客厅,采用大张拼色地毯遮盖原有地面,以米白色墙面为基调,辅以软装的褐色,粉灰作为点缀
▲ 沙发采用耐磨的科技皮搭配原木元素,配上灰粉色的靠枕,用两幅不对称的装饰画修饰出空间的艺术格调
▲ 灯光除主灯以外采用造型艺术感的落地灯与线性吊灯局部点亮空间,同时又起到装饰作用
▲ 温和的乳胶漆墙面搭配可伸缩款木质成品电视柜,便于日常使用,也能灵活变化
▲ 客厅与餐厅互通,在过厅处特地为信佛的业主增加需要的神柜
▲ 餐厅,实木圆桌+四椅满足一家三口使用,大面积木色点缀灰粉色调,整体基调与客厅呼应,并在餐边增加一组大柜子,满足餐边收纳与鞋柜功能
▲ 通往私领域动线
▲ 妹妹卧室,小面积尽量利用空间高度增加收纳机能,空间内均以定制柜体为主,最大化的利用每一寸空间
▲ 妹妹卧室的另一端,通高的大衣柜,门口利用墙身安装日式挂衣钩,点缀装饰画
▲ 姐姐卧室,空间不大,采用浅色与轻盈的家具,加上明亮采光,简单不显拥挤
▲ 书桌上方安装半开放式的吊柜,方便藏书与收纳杂物
▲ 主卧,整体用色与格调和整屋统一,利用飘窗增加收纳空间
▲ 床背景的装饰画与整室用色匹配,床左侧用一个多层梯级收纳柜取代传统床头柜,粉色台灯营造温润氛围
▲ 卫生间,基本没有动原本的精装,只是安装智能马桶盖+电热毛巾架,为洗漱空间做了一个简单的升级
文字编辑 | 深深
设计 | 诺壹空间设计(广州)
微信:13450484809
后台回复「诺壹」可以看更多作品
媒体转载请注明装修33天并保留设计师联系方式
欢迎业主、设计师、装修公司免费投稿照片
装修33天商务合作微信:king194316
松爷店铺掌柜微信:yejia1703
诺壹空间设计其他作品推荐
实用装修指南
装修33天 🏡 实用装修指南
喜欢我们的文章就随手转发到您朋友圈吧