▲ 建筑面积77平,现代时尚北欧风,入户一侧整墙的鞋柜,最下端做开放式可放置拖鞋,鞋柜+换鞋凳+挂钩+穿衣镜,功能布置恰到好处
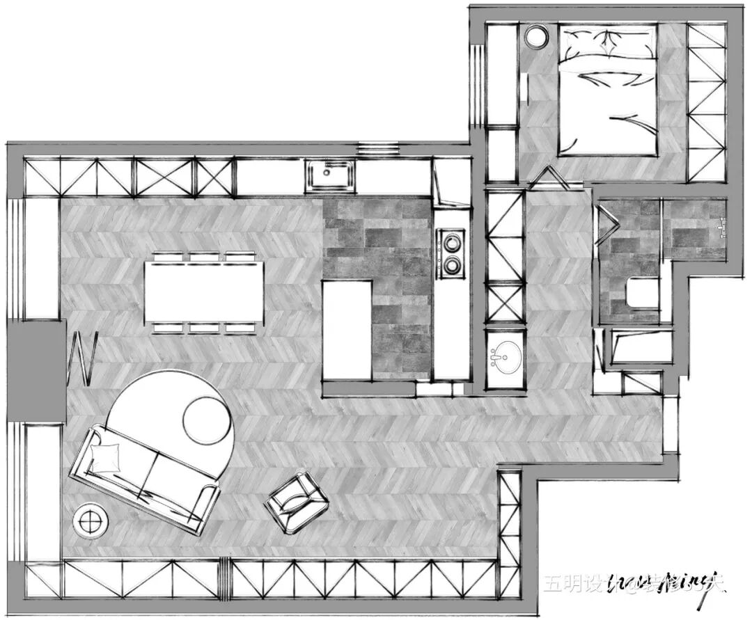
▲ 平面布置图
▲ 布置变化图
▲ 从玄关往里走,只要一眼就探得配色上的小心思,浅灰+深蓝+脏粉,艺术气质的高级感扑面而来
▲ 脏粉色背景墙,架子与搁板上点缀业主的小收藏,疲惫生活之余对自己的讨好方式
▲ 拆掉原始主卧,打开厨房,一起合并为餐厨空间,餐厅+厨房成为这个家的主角(因为屋主是美食博主,餐厨很重要)
▲ 餐厨一侧设置飘窗,刷成和橱柜一致的深蓝色,搭配大理石台面,呈现高颜值休闲一隅
▲ 餐厅望向厨房视角
▲ 厨房,白色六角砖+黑色美缝,搭配蓝色橱柜与灰色高低台面,实用又具高颜值
▲ 额外增加一个方便做烘培的操作台,台面下属于厨房的一侧做柜体收纳,靠近餐厅一侧做搁板开放式收纳
▲ 开放式的大厨房+有自然光的餐厅+舒适可变的客厅,即使这是一个仅有70多平的两室一厅,也存在无限可能
▲ 客厅,整墙储物柜作背景,延续墙体的浅灰调,柜体无脚线,无把手,简洁的造型如背景板,实际储物机能超强
▲ 深蓝色天鹅绒小细腿沙发,高贵而优雅,靠窗一侧打造飘窗,整面墙刷成深蓝色,既是背景,也自成一体
▲ 客厅背景墙的柜体打开就是一张双人床,收放自如,柜体内还可收纳床品
▲ 通过可移动隔墙+玻璃折叠门,巧妙实现客厅变身相对独立而私密的客卧
▲ 玻璃门顶部还内嵌投影幕布,无论是坐在餐厅还是客厅,都可以自在观影
▲ 走廊靠墙一侧布置洗手台+储物柜+内嵌洗衣机与烘干机,洗手台外移,实现干湿分离
▲ 柜体内部根据收纳需求做细致的功能分区,有序的收纳让生活变得更加便利
▲ 改造后走廊空间精打细算,卧室和卫生间安装折叠门,把每一寸空间的利用率提高到最大
▲ 卧室布置地台,放置床垫,木地板上墙作床头,靠墙设置一排平开门衣柜实现卧室收纳
▲ 床的另一侧布置一张木面小桌,作阅读办公机能,IKEA款蓝色推车取代床头柜与桌边收纳
▲ 卫生间延续采用白色六角砖+美缝,壁挂马桶空间简洁利索,利用隐藏式水箱上方合理布局收纳
▲ 视频
设计 | 五明原创设计(北京)
微信:136503506
后台回复「五明」可以看更多作品
媒体转载请注明装修33天并保留设计师联系方式
欢迎业主、设计师、装修公司免费投稿照片
装修33天商务合作微信:king194316
松爷店铺掌柜微信:yejia1703
实用装修指南
装修33天 🏡 实用装修指南
你每次点赞和转朋友圈,都是对我们的支持