▲ 使用面积140平,造价40万,本案是一对年轻夫妻的新居,两人曾同于日本留学,现在拥有了共同的家,依存于业主的生活步调与习惯,设计师重新规划空间结构
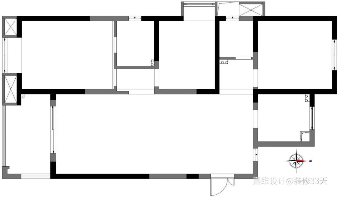
▲ 原始结构图
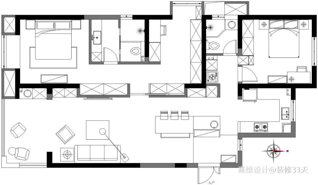
▲ 平面布置图
▲ 入户增加一处鞋柜,与餐厅岛台结合起来,既节省空间又很好的划分区域,起到了玄关的作用
▲ 进门右手边打造白色柜体补充收纳,底部留空嵌入灯带,可放置常用鞋
▲ 客餐厅一体化布局,留白墙顶面,宽敞的空间感,采用置物架与杂志架装饰过道
▲ 客厅纳入阳台,扩大使用面积与采光,水泥灰地砖加铺大张花纹地毯,配上懒人沙发,惬意舒适
▲ 一盏折叠摇臂灯满足客厅阅读照明和背景装饰
▲ 客餐厅之间的过道通往主卧套房,白色门的设计使视觉更加整体
▲ 留白电视墙与主卧之间采用S墙设计,浅胡桃木色的柜体以吊柜的形式放置在左上角,底部安装的雾化壁炉营造氛围
▲ 阳台的落地窗令光线洒落全室,窗帘选择雪纺质地,光的行进有了柔和的转折
▲ 阳台一侧新砌水泥地台,搭配绿植盆栽与圆木桩,空间洋溢自然气息
▲ 另一侧定制阳台柜,以白色为主体降低存在感,融于全白的墙面之中
▲ 入户门正餐厅,餐桌与岛台结合,极简的线条和配色,更显简练大气
▲ 原木餐桌流露着自然肌理,配上北欧餐椅,点缀黑色线性吊灯
▲ 岛台兼顾吧台以及西厨功能,同时解决了餐边收纳问题
▲ 换个角度看客餐厅
▲ 厨房U型布局,提高空间利用率,黑色橱柜搭配灰色地面,耐脏易打理
▲ 将洗衣机与烘干机设置在原来的客卫干区,四周打造柜体方便收纳脏衣篓与洗衣用品
▲ 次卧,素色搭配营造出静谧舒适的氛围
▲ 主卧睡眠区做地台加高设计
▲ 选择矮床降低居室重心,是受在日本生活多年的影响,也顺应卧室应有的温馨、舒适、私密的氛围
▲ 将原本与主卧相邻的次卧处理成主卧套房内的衣帽间,衣柜的折叠门开合灵活自由
▲ 扩大主卫面积,改变门的朝向,内部采取三分离模式,水磨石从地面铺贴至腰线处,方便日常清洁,视觉效果也有了层次的丰富与变化
文字编辑 | 东东
设计 | 熹维设计(南京)
微信:237017933 QQ:1605115626
联系:17705195115 / 18651909851
后台回复「熹维」可以看更多作品
媒体转载请注明装修33天并保留设计师联系方式
欢迎业主、设计师、装修公司免费投稿照片
装修33天商务合作微信:king194316
松爷店铺掌柜微信:yejia1703
熹维设计其他作品推荐
实用装修指南
装修33天 🏡 实用装修指南
你每次点赞和转朋友圈,都是对我们的支持