▲ 建筑面积128平,两室两厅户型,地址:浙江杭州 · 财和湘域湾,完工时间:2020年年初,设计师运用黑白灰搭配木色,呈现简约耐看又不失格调的居家空间
▲ 平面结构图
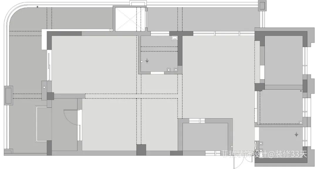
▲ 平面布置图
▲ 入户即见客餐厅,给人开阔的空间体验,极简的线条与黑白灰的基调,通过木饰面的电视背景加注空间温度
▲ 客厅,地面通铺灰色石纹瓷砖,顶面采用无主灯设计,三组独立百叶帘做客厅与阳台的隔断,确保隐私
▲ 灰色的转角布艺沙发搭配不同大小,不同色彩的靠枕,背景墙大面积留白,通过色彩与室内呼应的装饰画点缀修饰
▲ 圆形茶几与边几,轻盈实用,方便移动
▲ 茶几的灰玻镜面,显得通透又高级
▲ 客餐厅互通格局,利用地面铺贴不同色的瓷砖来分隔场域,同时在厨房与走廊打造大量收纳柜,确保空间储物
▲ 餐厅,餐桌与西餐岛台穿插相连,黑色桌脚、餐椅、吊灯与开放式竖柜等形成黑色系的呼应
▲ 客厅进入书房的动线,在木饰面中采用清玻移门,延展空间视觉,且不影响各空间采光
▲ 书房,延用灰色瓷砖,白色墙面与百叶窗的设计,一面赋有科技色彩的墙布做主题,搭配原木桌面,融合了现代与自然的元素
▲ 通往私领域过道
▲ 儿童房,原木色木地板搭配卡其色墙面,白色无拉手置顶衣柜满足空间收纳需求
▲ 主卧端景,黑白木的色块搭配花束点缀出视觉灵魂
▲ 主卧,木地板搭配点光源顶面,黑白灰仍然是空间主调,设计师利用L型承重墙结合黑色木饰面打造悬浮视觉的电视背景墙
▲ 黑白灰中加入一面青绿色床背景,用一幅小尺寸的装饰画点缀
▲ 主卧室空间连通阳台,设计成休闲兼具储物区域
▲ 将主卧的转角阳台与电视背景墙,切分出就寝区,休闲区和主卧书房
▲ 电视背景墙的另一面,打造出实用有格调的多用途空间
▲ 卫生间,大尺寸的灰色石纹瓷砖搭配防潮石膏顶面,简洁大气,淋浴区采用深色系与干区的灰色形成场域区分
文字编辑 | 深深
设计 | 菲拉装饰设计(杭州)
电话:400-117-5155
后台回复「菲拉」可以看更多作品
媒体转载请注明装修33天并保留设计师联系方式
欢迎业主、设计师、装修公司免费投稿照片
装修33天商务合作微信:king194316
松爷店铺掌柜微信:yejia1703
菲拉装饰设计其他作品推荐
实用装修指南
装修33天 🏡 实用装修指南
你每次点赞和转朋友圈,都是对我们的支持