▲ 使用面积180平,造价70万(不含家电),业主购入学区房,外用功能性较明确,同时希望给家中的两位小公主,营造品质与舒适度兼顾的成长环境
▲ 平面结构图
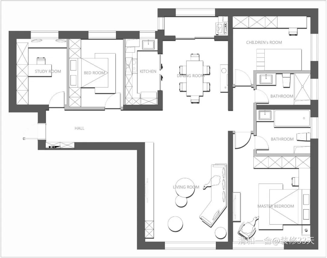
▲ 平面布置图
▲ 入户以餐厅与客厅形成过厅结合木饰墙面为端景,自然的木纹结合暖意灯光,给人一种温馨的归家感
▲ 客厅,灰色的瓷砖地面铺烟灰色大张地毯,顶面极简造型,取消主灯以点光源的形式展现局部照明,空间之内多元材质各有想要表述的语言,温暖的布艺,硬朗的烤漆,温润的木,质感的砖,共同融合成舒适的居家
▲ 米白色的墙面硬包铺陈温暖的基调,最大限度利用空间纵深,孩子们尽情地在这里玩耍,数不尽的欢声笑语,光线是最好的修饰
▲ 米色的折角布艺沙发,与硬包背景基调呼应,搭配简约纤薄的茶几边几,低饱和的蓝色窗帘为空间增添色彩
▲ 亲子一刻
▲ 电视嵌入大理石背景墙,烤漆材质扩出电视柜,延伸到左侧的通顶展示储物格,留给孩子活动的空间更开阔
▲ 从走廊看向餐厅视角,过道上造型独特的装饰挂钟与整室风格呼应,化解大面积白墙带来的单调性
▲ 餐桌纹理有别于茶几,以黑胡桃衬托,视线由舒适的客厅转移,至此又是另一番风景
▲ 客厅木饰面背景延伸至餐厅,深色描金现代风边柜,通过装饰画与小摆件带出一丝艺术氛围
▲ 黑色玻璃推拉门视觉通透,灰色瓷砖搭配白色橱柜门简单利落
▲ 木饰面围合的区域,设计笔触至此依然干净利落,由此进入卧室
▲ 隐形门之内,主卧是业主的『私人领地』
▲ 儿童房没有花哨的颜色,姐妹二人共同使用,白色衣柜明亮整洁,黑胡桃写字桌在空间中虽略显沉稳,但更容易让人集中注意力,书柜、纱帘、窗帘上,落成的粉色与蓝色,是给两个女孩的甜蜜礼物
▲ 主卧,大面积的棕色为底,配合低饱和度的灰,完完全全属于自我的静谧感
▲ 卫生间,整体通铺灰色石纹瓷砖,石膏吊顶简单大气,浴缸与淋浴结合节省空间的同时兼具功能
文字编辑 | 深深
设计 | 清和一舍(天津)
微信:13212042262/13207637460
后台回复「清和」可以看更多作品
媒体转载请注明装修33天并保留设计师联系方式
欢迎业主、设计师、装修公司免费投稿照片
装修33天商务合作微信:king194316
松爷店铺掌柜微信:yejia1703
清和一舍其他作品推荐
实用装修指南
装修33天 🏡 实用装修指南
你每次点赞和转朋友圈,都是对我们的支持