▲ 套内面积80平,造价23万(不含家电),项目地点:成都兴元华盛,完工时间:2019年,女主曾留学欧洲,爱好是逛博物馆和画廊,希望新家能在满足空间功能诉求的基础上融入一些博物馆的仪式感和戏剧性元素,让TA能有代表自己的审美符号,玄关在满足储物需求的基础上兼具艺术气息
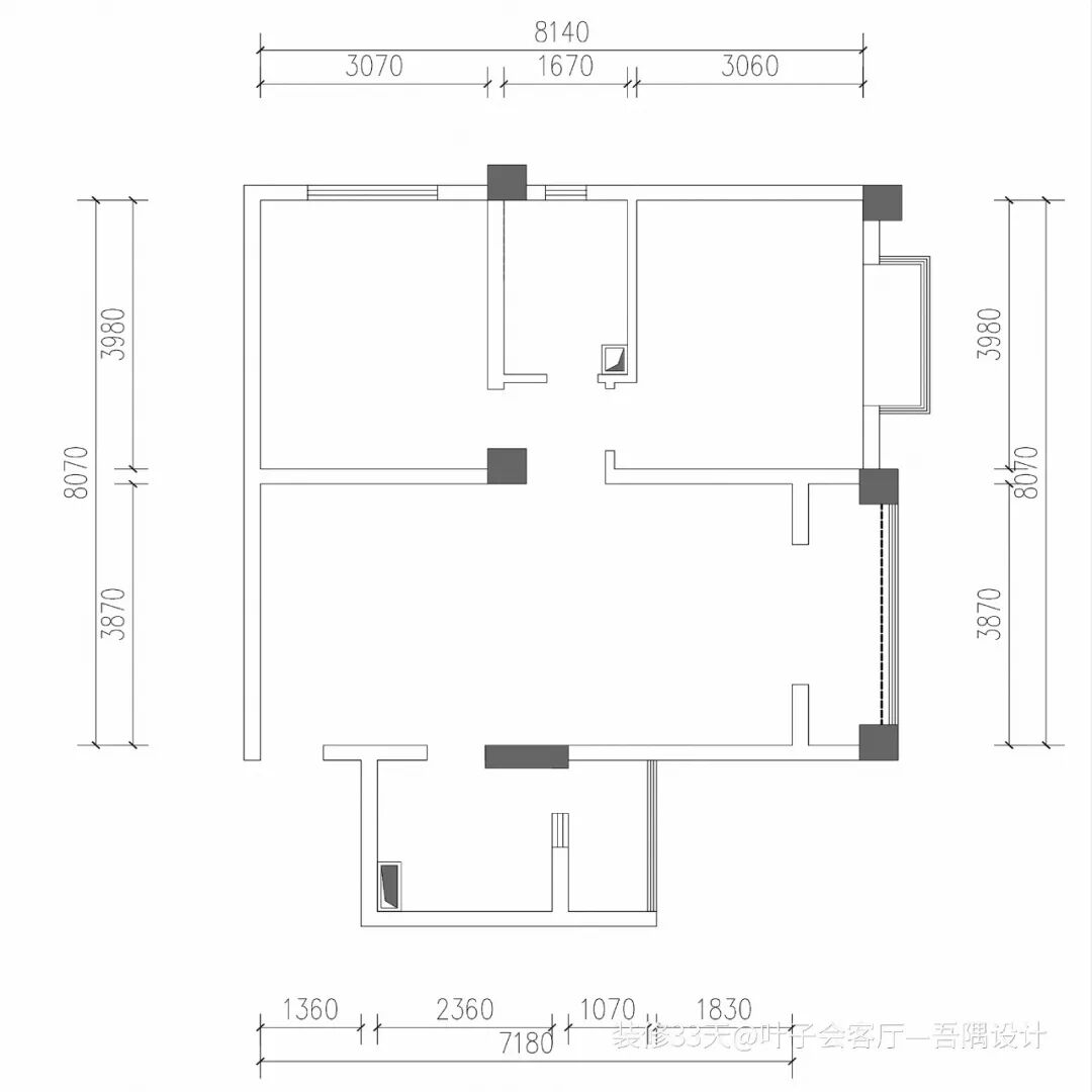
▲ 平面结构图
▲ 平面布置图
▲ 定制款可旋转的半圆镜遮蔽配电箱,出门前整理一下妆容十分便利
▲ 客厅通过墙面和顶面的分色起到视觉的导向性,在端景的位置特别采用大块面的分色和装饰
▲ 客厅纳入阳台,拓展空间,增加采光与通透性
▲ 背景复古装饰画,呼应了空间的色调,让色彩在空间游走,而不凌乱
▲ 色彩的吊顶、大理石小吊灯,优雅的矮柜,以及散发着勃勃生机的绿植,仿佛组成了独属于这个客厅的唯美乐章
▲ 餐厅恰是可以表达仪式感的地方,黑色的餐桌椅加上金属元素、绿植的点缀,让这一区域更具高级感
▲ 餐区对面是L型玄关柜中的吧台设计,软装中多处采用圆弧线条,镜面增加通透感,同时成为空间中的高光点缀
▲ 餐区与玄关形成多功能 box 的概念,通过 box 的不同朝向面,分别实现屋主的不同功能诉求,同时起到分流作用,形成玄关到餐区的洄游动线
▲ 多功能 box 中的酒柜面是女主最喜欢的,酒架设计也是做了拱形元素的呼应,柜门做下翻设计,便于调酒时放置杯子
▲ 厨房,用长虹玻璃隔断取代原有厨房和餐区隔墙,增加空间通透度,光在两个空间可以相互渗透
▲ 次卧,主要作客房和收纳,满足父母和朋友小住使用,榻榻米床下方是收纳空间,床头留出开架充当床头柜功能使用
▲ 主卧,深海蓝是在美术馆运作较多的背景色,印象最深刻的是梵高美术馆的《向日葵》画背景就是深蓝,安静舒缓与暖色搭配能表达出华丽感的悦动性
▲ 金色的吊灯起到装饰的同时,点亮空间暗角
▲ 利用主卧的开间优势,用长虹玻璃隔断将休息区和化妆更衣区分隔开来,相对独立,互不干扰,实现屋主希望的独立化妆台
▲ 卫生间,借用原来次卧的一部分空间拓展面积,利用浴缸尾部空间设置凹龛的置物架,便于沐浴用品和毛巾的收纳拿放,独立的马桶间、靠窗的浴缸、黄铜质地的五金件与墨绿色、粉色的墙面互相呼应,让空间精致有质感
文字编辑 | 深深
设计 | 叶子会客厅—吾隅设计(成都)
微信:lomo542988
媒体转载请注明装修33天并保留设计师联系方式
欢迎业主、设计师、装修公司免费投稿照片
装修33天商务合作微信:king194316
松爷店铺掌柜微信:yejia1703
实用装修指南
装修33天 🏡 实用装修指南
你每次点赞和转朋友圈,都是对我们的支持