▲ 建筑面积89平,项目地址:深圳-鸿荣源·尚峰,完工时间:2019年6月,业主成员:夫妻+可爱的小女儿+父母一同居住,一家人希望新家简洁舒适,有文艺气息,又干净实用
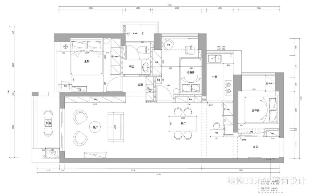
▲ 平面布置图
▲ 玄关,白色六边砖+六边花砖铺贴落尘区,与木地板进行拼铺设计,让人一进门就被吸引,穿衣镜、挂衣钩、换鞋凳功能一个不落
▲ 室内整体以自然环保的原木材质为基调,有着清新自然的舒适风格,电视背景墙整面书柜的造型,增加收纳空间
▲ 木地板加铺米白色棉织地毯,材质与沙发背景的墙饰以及靠枕相呼应,沙发也极具造型,给人眼前一亮的感觉
▲ 客厅采光很好,每一件精挑细选的家具,都显得明朗、温暖,北欧风的绿植与整室风格也极为搭调
▲ 客餐厅统一使用的原木风格,舒适宜人,仿佛置身自然之中
▲ 餐厅开放式布局,更显得宽敞明亮,家具尺寸适中,不争不抢,顺其自然
▲ 整个空间地面通铺木地板,搭配木质家具,保证风格的统一性,玻璃吊灯营造就餐环境的同时增加空间层次感
▲ 设计上考虑业主的生活习惯,餐厅设计清新的收纳柜和操作台面,满足杂物和小电器的使用
▲ 厨房,L型布局,实用性强,木色+白色的橱柜,中部搭配花砖作背景
▲ 父母房空间有限,靠窗位置设计衣柜,墙面留白,干净舒适,并与玄关相连在一起,做推拉门设计,把自然光引入室内,增加玄关采光
▲ 儿童房,选择原木床搭配木地板,在脏粉色背景墙的衬托下,更显简约大方与素净
▲ 床尾规划写字台与休闲活动区域
▲ 打造入墙式木质书架,有效利用空间,屋顶形状小卡座,小主人会在这里看书玩耍,充满童趣
▲ 主卧,低饱和用色温和亲近自然,浅色纱帘和床品,朴素自然,床头一侧是化妆台,一侧是方便移动的置物边几
▲ 床侧的置顶大衣柜与过道的收纳柜,满足主卧的储物需求
▲ 卫生间干湿分区,提高使用效率,简约大方的经典配色,耐看好打理
文字编辑 | 深深
设计 | 薄荷设计(深圳)
微信:15989542697
后台回复「薄荷」可以看更多作品
媒体转载请注明装修33天并保留设计师联系方式
欢迎业主、设计师、装修公司免费投稿照片
装修33天商务合作微信:king194316
松爷店铺掌柜微信:yejia1703
薄荷设计其他作品推荐
实用装修指南
装修33天 🏡 实用装修指南
你每次点赞和转朋友圈,都是对我们的支持