▲ 项目使用面积108平,造价30万,坐标:安徽合肥,设计时间:2019年8月,完成时间:2020年5月,屋主90后夫妻俩,男主在高铁部门上班,是一位厨艺暖男,女主时尚阳光、活泼开朗,他们都喜欢自然温和的感觉
▲ 原始结构图
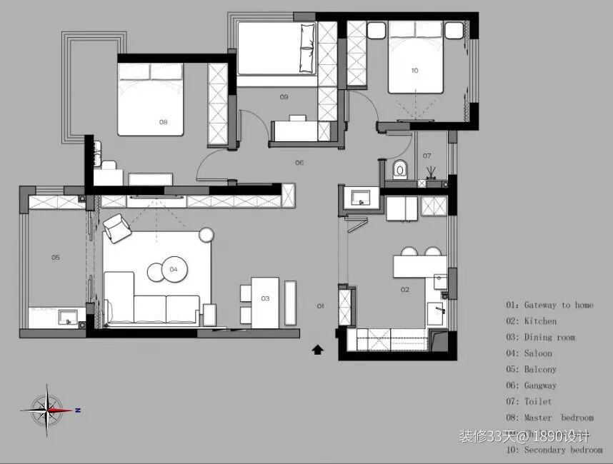
▲ 平面布置图
▲ 进门左手边为客餐厅区域,在原木+白色基调下,以墨绿抱枕与橙色矮凳点缀提亮
▲ 餐厅,选择餐桌椅搭配长凳的组合,更加灵活实用,一盏简约吊灯,自然而温馨
▲ 沙发背景的直线造型设计拉伸纵深感,结合木饰面半高护墙更显层次
▲ 定制整排收纳柜贯穿客餐厅,局部留空的设计让柜体不会显得厚重,兼顾了颜值与实用性
▲ 选用轻便小巧的茶几,方便移动腾出空间
▲ 在电视墙顶部增设了投影幕布,在闲暇时光和家人一起观看一部影片,恰是漫长时光中最美好的日常
▲ 厨房改造后增加西厨吧台,吧台可做简餐区,休闲区,也可用作收纳,每个角落利用完美无瑕
▲ 采用折叠玻璃门阻隔油烟,节省空间且灵活性强,用软木背景做为照片墙展示幸福瞬间
▲ 小白砖墙面搭配白色橱柜,干净清爽,吊柜中部留空增加置物功能
▲ 屋主喜欢榻榻米,通过踏步的抬高,让空间更有趣味的同时实现集睡眠、休闲、收纳等多元化功能
▲ 改变开门位置预留出办公区,以后也可以作为给孩子的书桌
▲ 主卧,留白墙顶面配合点光源设计,温馨简洁的软装布置,干净利落、恬静脱俗
▲ 白色纱帘衬托空间的静谧温柔
▲ 衣柜靠近床头的位置留空,下面做了抽屉式隔板,充当床头柜的功能
文字编辑 | 东东
设计 | 1890设计(合肥)
微信:yibajiulingkefu
QQ:3085466200
后台回复「1890」可以看更多作品
媒体转载请注明装修33天并保留设计师联系方式
欢迎业主、设计师、装修公司免费投稿照片
装修33天商务合作微信:king194316
松爷店铺掌柜微信:yejia1703
1890设计其他作品推荐
实用装修指南
装修33天 🏡 实用装修指南
你每次点赞和转朋友圈,都是对我们的支持