▲ 建筑面积95平,总造价50万,项目地址:北京,完工时间:2019年年底,男业主是一位猪猪boy,细节品质控,居家就应该符合主人的气质:精致时尚,干净利落,脱俗且又入世
▲ 平面结构图
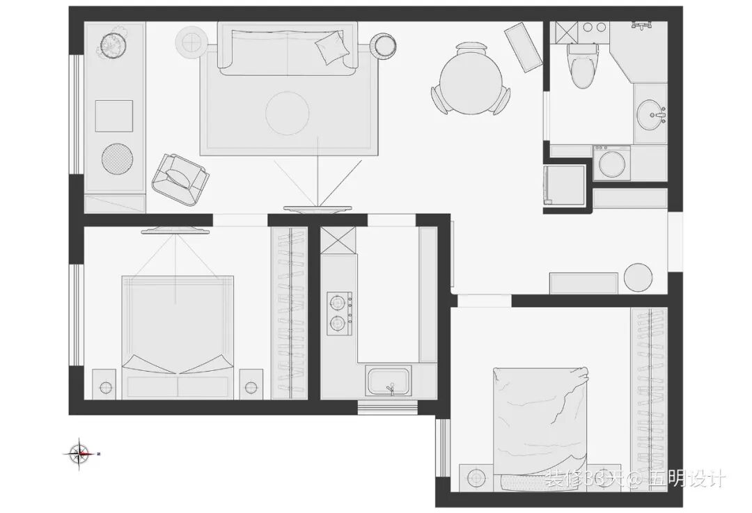
▲ 平面布置图
▲ 改造前的照片
▲ 门厅无自然采光,选猛男最爱的脏粉色,搭配白色的柜子中部黑框留空,顶面加灯带洗墙,一进门色调明快干净
▲ 房子目前是业主一人居住,沙发是一个三人位加一个单人位的组合方式,对角摆放,可以让客厅更有氛围
▲ 全屋运用很多大色块,和一些线条拉伸,局部用到一些金属、大理石、玻璃点缀,营造出一种轻奢、小复古的感觉
▲ 沙发一角
▲ 亚光质感的落地灯,配上金光闪闪的边几,单人位选一款通体千鸟格布纹,和蓝色主沙发形成对比
▲ 阳台打造深木色地台,一方面起到划分阳台与客厅的段落感,另一方面也在视觉上让客厅有个重心压住
▲ 茶几组丰富的石纹结合金属元素,质感丰富
▲ 电视墙整体刷淡淡的灰蓝色+定制款悬浮电视柜,一边搭配tata画布门
▲ 采用这种不对应空间区域,大块分割办法,化解背景过于狭长的弱点,让客餐厅错落有致,打造出整洁有序并附有色彩的一个家
▲ 客厅看餐厅,整个客厅餐厅由深蓝色护墙板包围起来,形成一个L形转角,餐厅边隐形门作为卫生间的入口,周围做同色的护墙板,保持和墙面色调一致
▲ 圆形餐桌搭配丝滑质感的餐椅,成品玻璃柜做餐边收纳,玻璃吊灯提升颜值与氛围
▲ 厨房门左移15公分,增加一排35公分的矮柜,浅米色瓷砖,搭配深灰色橱柜+白色台面,U型布局最大化利用有限空间
▲ 次卧整体和主卧大体不变,通过调整了一些细节,让整屋统一,又不重复
▲ 打开森系画布门进入主卧,门片局部色彩与床背景呼应
▲ 主卧,床背景满墙刷漆,造型干净,移门后做满墙衣柜,衣柜中间两扇门做玻璃门,给整个空间增加一些镜面质感,若隐若现的反射也起到一些拉伸空间的作用
▲ 选择一款有点小复古的壁灯,设计感强,光源通过灯罩反射到墙面,形成舒服的光感
▲ 卫生间,墙地面通铺偏灰色瓷砖,搭配和橱柜同款深灰柜门,淋浴房用的是圆弧推拉门,打开关闭都不占空间
文字编辑 | 深深
设计 | 五明原创设计(北京)
微信:136503506
后台回复「五明」可以看更多作品
媒体转载请注明装修33天并保留设计师联系方式
欢迎业主、设计师、装修公司免费投稿照片
装修33天商务合作微信:king194316
松爷店铺掌柜微信:yejia1703
五明原创设计其他作品推荐
实用装修指南
装修33天 🏡 实用装修指南
你每次点赞和转朋友圈,都是对我们的支持