▲ 使用面积150平,项目地址:江苏无锡,本案以简洁的家具造型为主,经典的黑白灰加入木质元素中和了冷暖感,显得空间温馨不沉闷,自然与优雅完美融合在一起
▲ 原始结构图
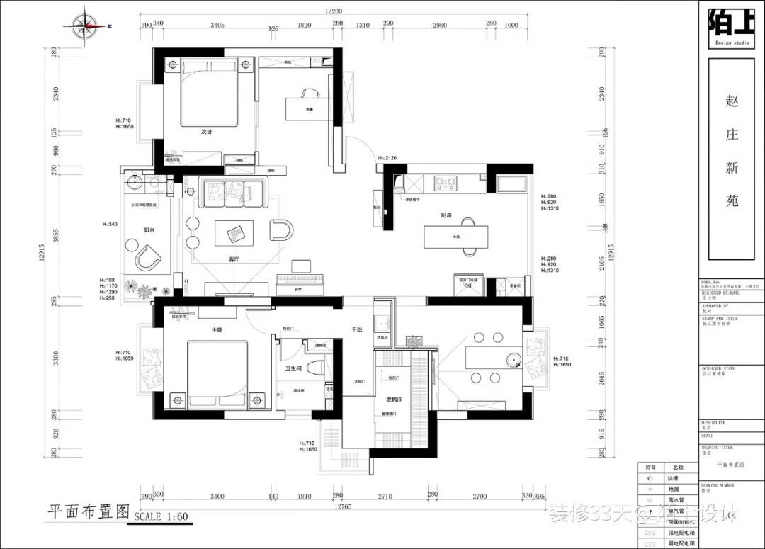
▲ 平面布置图
▲ 客厅极简顶面无主灯设计,做旧木地板加铺一张灰色棉麻地毯,丰富地面触感
▲ 客厅与次卧的墙体局部拆除,定制矮柜做隔断,缩小次卧空间规划出开放式书房
▲ 木质展示架作为沙发背景,角落的壁灯增添氛围
▲ 水泥漆电视墙搭配原木电视柜,具有层次又不失质感
▲ 电视墙左侧是钢琴区,作为客餐厅之间的过渡
▲ 餐厨一体设计,扩大了备餐的操作台面,木地板和瓷砖碰撞拼接,划分出不同的功能区
▲ 餐桌与岛台穿插相连,木质餐桌椅与橱柜有着质朴的舒适感,错落台面设计让使用更加人性化
▲ 茶室进门处,圆形镂空隔墙配合绿植盆栽,呈现层次之美
▲ 禅意茶室让人倍感悠然惬意
▲ 次卧,纯色墙面搭配原木家具,简简单单却洋溢着轻松舒适
▲ 床尾做了置顶书架,下方可用于储物,移门外是开放式书房
▲ 主卧以白色和灰色为基调,水泥漆背景墙延伸至顶面,营造出静谧氛围
▲ 层次感背景墙预留出了床的位置,墙上点缀艺术挂画
▲ 卫生间干湿分离,移门后是衣帽间
文字编辑 | 东东
设计 | 陌上设计(杭州)
微信:MS969173
后台回复「陌上」可以看更多作品
媒体转载请注明装修33天并保留设计师联系方式
欢迎业主、设计师、装修公司免费投稿照片
装修33天商务合作微信:king194316
松爷店铺掌柜微信:yejia1703
陌上设计其他作品推荐
实用装修指南
装修33天 🏡 实用装修指南
你每次点赞和转朋友圈,都是对我们的支持