▲ 建筑面积95平,造价25万(不含家电),项目地址:成都-娇子一号,完工时间:2020年6月,生活在都市森林中的业主喜欢原生态木质风格为主的日式居家,追求木心先生所言那种随性而悠然自得的生活境界
▲ 平面结构图
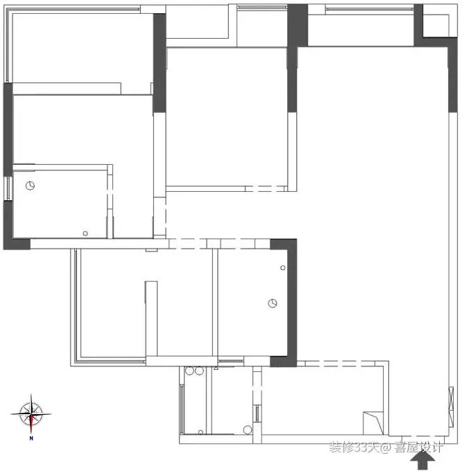
▲ 平面布置图
▲ 客厅,目之所及处是不同程度木质纹理的自然表达,柔和醇厚的质感、天然温润的色彩、婉约和暖的温度,自然清新的勾勒出宁静豁达的生活态度和居家温情
▲ 整个空间通铺原木纹地板,墙顶留白,因为简单、纯粹、经得起时间的打磨,成为这个喧嚣繁复时代所渴望的那一份淡雅纯真
▲ 通过不同层次的木色搭配鸦青与灰色的沙发,小小的一撮绿植增添生机
▲ 传统日式的设计上强调空间形态、物体单纯和抽象化的同时还必须重视空间各物体的相关性,置物架放置的场所是否与客厅电视柜和餐厅形成一个有关联的纽带,也要考虑它是否具有存在的意义
▲ 客厅望向餐厨视角
▲ 打开餐厅与厨房,将两个区域连接起来,通过对空间比例、材质纹理及装饰细节的推敲,重新定义质朴日式的调性,提升生活的实用性和舒适性
▲ 天然的纹理,柔和的色彩,原始的生命力,在餐桌上尽显
▲ 餐桌对面的木色置顶餐边柜,预留双开门冰箱与大型厨电的空间,一边采用成品铁件收纳架留出合理的过道空间
▲ L型的厨房操作台连接生活阳台,材质上的软硬对比,颜色上的冷暖撞击,线条上的纵横交错,平衡稳定立面比例并重整成为厨房简洁凝练的温差感
▲ 从餐厨区域望向客厅方向
▲ 客卫,墙面与地面通铺白灰仿大理石瓷砖,加上一组木皮台盆柜,底部架空打扫方便
▲ 多功能室,打造榻榻米地台连接收纳柜的形式,满足客卧和储物的功能。
▲ 原木书桌,满足办公阅读的需求,原木是对日式风格的尊重,更是对返璞归真的追求
▲ 主卧拥有超大L型视野窗,真实而自然的原木色调,搭配灰色系软饰品
▲ 白墙床背安装复古摇臂灯,营造氛围,方便睡前阅读
▲ 主卫,墙面和地面采用相同花色的瓷砖,木色一体台盆柜
文字编辑 | 深深
设计 | 喜屋设计(成都)
联系:18828266993
微信:xiwusheji
后台回复「喜屋」可以看更多作品
媒体转载请注明装修33天并保留设计师联系方式
欢迎业主、设计师、装修公司免费投稿照片
装修33天商务合作微信:king194316
松爷店铺掌柜微信:yejia1703
喜屋设计其他作品推荐
实用装修指南
装修33天 🏡 实用装修指南
你每次点赞和转朋友圈,都是对我们的支持