▲ 使用面积111平,造价42万,项目地址:陕西西安,完工时间:2020年2月,母女二人居住,原始户型又黑又小且通风巨差,业主希望家是静、纯净、有故事的,温暖、通透、轻松,无需过多装饰,有大量的储物空间,两个次卧能合并,尽量扩大孩子房间的面积
▲ 原始结构图
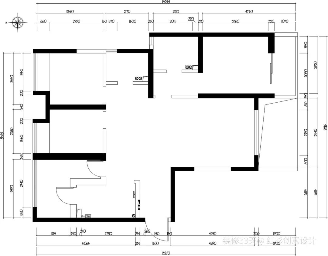
▲ 平面布置图
1.打掉原来的墙体,重新构建了厨房与餐厅的关系;
2.原来的三间卧室被改成了两卧+多功能厅的结构,放弃了一间卧室而解决客厅的采光和通风;
3.变更了客卫的位置和布局,最大限度的增加女儿房面积;
4.改变调整主卧入口,增加mini洗衣及卫浴收纳;
▲ 玄关,定制鞋柜侧面专门留了置物区,随手放些小件的钥匙、零钱很方便
▲ 门口的穿衣镜里可以看到餐厅一角及厨房的铁艺门
▲ 拆除了厨房与阳台的墙体,重新组织出玄关、中厨、岛台区、洗衣及小家电操作区,室内的门窗洞边缘都处理成小圆角,这样一来光线的转折处就变得很柔和,整个屋子的氛围也跟着温柔起来
▲ 餐桌与岛台一体设计,与餐边柜之间的距离只有70公分,所以选用实木长凳取代餐椅,不会显得空间局促,同时不影响柜门开合
▲ 鞋柜左侧预留复古小冰箱位置
▲ 卫生间比较小,不得已把洗衣机放在了餐厅,形成小家电操作台面
▲ 厨房采用双开门铁艺玻璃门隔离油烟,确保空间通透
▲ 厨房纳入北阳台形成U型布局,业主习惯用电磁炉和烤箱做饭,油烟比较少,所以厨房墙面没有贴砖,采用防水乳胶漆来处理,灶台处用了同款橱柜实木颗粒板保护墙面免受油烟困扰
▲ 透过精心设计的拱门和小窗可以看向客厅
▲ 客厅大面积留白处理,地面通铺水磨石,做了整面储物柜解决客厅收纳,吊顶暗藏了电动投影幕布
▲ 布置灰色布艺沙发搭配造型独特的落地灯
▲ 墙面点缀几幅简单的装饰画
▲ 储物柜靠近窗口处做了颜色和形式的调整,设置了四层抽屉+吊柜,方便收纳小物件和书籍
▲ 将原来的mini客卧改成开放式多功能室,使采光和通风都得到了很大的改善
▲ 背景设计嵌入式书架,充满人文气息的摆件和书籍是业主的最爱
▲ 坐在飘窗上望向客厅
▲ 客卫,壁挂式马桶上方打造一组小型储物柜,台盆侧面设计壁龛置物
▲ 女儿房,将原来的客卫挪出去以后面积扩大了不少,1.5m宽的榻榻米连接着飘窗和书桌,可以留出更多的活动空间
▲ 女儿房拥有强大的收纳功能
▲ 原结构主卧阳台是露天的,通过搭建把它并入室内,拆掉阳台与卧室的推拉门,尽量扩大卧室的面积
▲ 业主喜欢1.8m有包围感的大床,加上床围床体的实际宽度基本上都在2m左右,为了给这个宽度1.95m的床让路,特意选了轻巧的床头边几,又用边柜代替大衣柜,日常放些小件衣物足够用
▲ MCM风格挂墙柜系统的运用,让阳台再也不是凌乱杂物的堆积地,看着花花草草晒着太阳惬意极了
▲ 主卫墙顶面全部选用芬琳专用防水乳胶漆,悬挑浴室柜、墙排龙头、台下盆、墙排花洒都可以减少卫生死角
▲ 视频
文字编辑 | 东东
设计 | 红杉创意设计(西安)
微信:hscy-2012
后台回复「红杉」可以看更多作品
媒体转载请注明装修33天并保留设计师联系方式
欢迎业主、设计师、装修公司免费投稿照片
装修33天商务合作微信:king194316
松爷店铺掌柜微信:yejia1703
红杉创意设计其他作品推荐
实用装修指南
装修33天 🏡 实用装修指南
你每次点赞和转朋友圈,都是对我们的支持