▲ 项目面积147平,造价43万(不含家电),项目地址:成都桂溪苑,完工时间:2019年年初,本案一个汽车工程师,一个兼职淘宝店主,两只猫,他们想要的是更开阔自由的格局,不受空间束缚,随心所欲,把最爱的颜色都交融到一起,让彼此享受其中
▲ 平面结构图
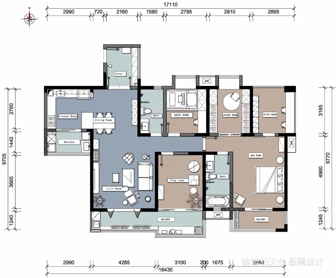
▲ 平面布置图
▲ 入户花园换独立玄关,1200*600mm的白色水磨石瓷砖铺装地面和墙裙,上方搭配浅粉色,靠近换鞋凳的地方设置开放格方便置物,挂画及绿植来弱化墙面电箱的存在
▲ 客厅阳台黑框折叠门上部分采用清玻下半部分采用不透明的长虹玻璃,阳光可以完全照射进来,同种材质机理上的变化给空间带来一丝趣味性
▲ 选择易于挪动的细腿家具,让空间有更多可能性
▲ 分色墙背景搭配艺术装饰画,软装与空间构成点线面的穿插,简单利落,提升空间层次感
▲ 电视背景墙与沙发背景保持呼应,用水磨石挂钟与实木电视柜以及铁件花架满足生活所需,角落用蒲葵填充,室内也能感受到满满绿意,让人放松其中
▲ 从走廊望向起居室视角
▲ 打通原本入户到餐厅的隔墙,用双开平推门代替,把入户花园采光延伸到餐区,视线也可以直接穿透到餐厅,放大空间感
▲ 黑灰基调的餐边柜让人心情平和,蓝灰和粉色的背景把画直接贴上墙,觉得一切都恰到好处
▲ 餐厅望向开放式厨房,岛台既界定厨房与餐厅的功能,又起到过渡作用,增强两个空间的互动
▲ 厨房,以蓝灰和裸粉活泼了整个空间,考虑到女主喜欢做料理烘焙,岛台背面嵌入烤箱,在非料理时刻也可以做简餐台和备餐台使用
▲ 打掉厨房与餐厅的墙垛,用开架柜体代替,既增加实用性又化解柜体侧面本身厚度的厚重感,让开架柜体和厨房高柜形成一体
▲ 阳台铺上户外地板,植物以蔷薇科花卉为主,在花季的时候,阳台美不胜收
▲ 客卫采光相对较弱,用仿爵士白和仿水磨石铺贴墙面地面,让小空间显得明亮开阔,用浴帘取代玻璃隔断,节约成本又便于打理
▲ 多功能房与客厅共享阳台,作为主人与两只猫的娱乐空间以及瑜伽室,房间里没有设置固定家具,让空间有更多的可能性
▲ 客卧采用榻榻米连接衣柜的形式,增强其储藏功能,同时也能兼做卧室,一旁放置宜家款书桌满足休闲办公的需要
▲ 主卧,床背景选择深蓝和棕粉的基调,木质波浪板代替成品床背,加上棕粉色乳胶漆,通过平面分割按一定比例把色彩植入到卧室,Vita 羽毛灯吊灯让整个空间变得柔软,放松
▲ 五斗柜的加入让收纳更有弹性,同时做到了充分利用空间
▲ 主卧书房延续公领域的色彩,与卧室的棕粉色形成对比又和谐相融,靠窗设置长 2800mm,深 600mm 的书桌,可供两人同时使用
▲ 主卧衣帽间,两排衣柜平行布置,一侧无门,柜体下方设计两层通拉抽屉,对面衣柜为带门,收纳低频率使用衣物和换季床品
▲ 主卫,从地面延伸至墙面的千鸟格纹砖让空间更具仪式感和整体性,盥洗、如厕、淋浴、泡澡功能一字排开,入墙龙头更有高级感
文字编辑 | 深深
设计 | 吾隅设计(成都)
微信:lomo542988
媒体转载请注明装修33天并保留设计师联系方式
欢迎业主、设计师、装修公司免费投稿照片
装修33天商务合作微信:king194316
松爷店铺掌柜微信:yejia1703
吾隅设计其他作品推荐,点击下图查看
实用装修指南
装修33天 🏡 实用装修指南
你每次点赞和转朋友圈,都是对我们的支持