▲ 使用面积120平,造价50万,项目地址:杭州,本案设计是由客户对于房屋一个很有趣的要求去延伸的,“圆”是整个家无所不在的一个元素,整个空间其实是方形结构,但运用了弧形及圆形的一些元素后,柔化了空间,也是对空间的主题做一个传达
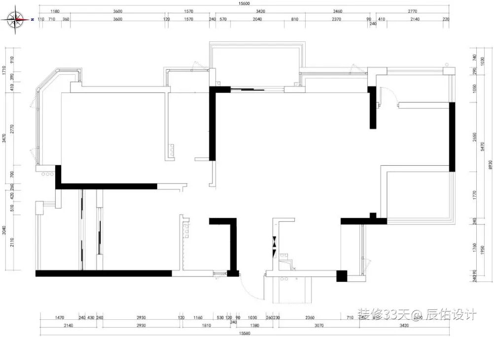
▲ 原始结构图
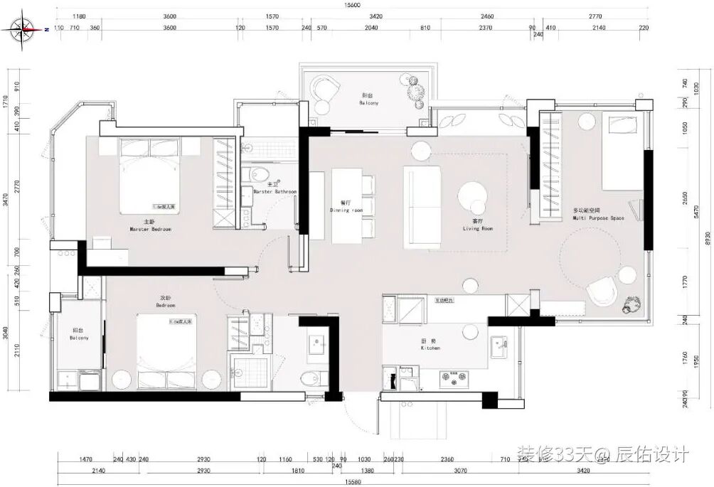
▲ 平面布置图
▲ 客餐厅为横厅格局,地面通铺人字拼木地板,纱帘柔和了光线,体现舒适的居家氛围
▲ 餐厅,一套复古餐桌椅搭配墙上的艺术装饰画,显得简洁又高档
▲ 留白背景墙用石膏线条勾勒,边角还有雕花设计,华丽优雅
▲ 不论是色彩择选,还是材料质感的呈现,设计师都试图创造一种轻松、随意的生活状态
▲ 开放式厨房设计,定制的吧台搭配复古白色三角凳,为空间增添了情调
▲ 厨房以深色调为主,每一处设计细节都是具有特色的存在, 石英石台面、内嵌式家电、金属收纳架以及墙面的黑色小砖,各种材质结合营造出独特的烹饪环境
▲ 为了实现屋主心中复古静雅的休闲空间,设计师特意将门洞做成宽1.5米的拱形,以扩大空间的视觉效果
▲ 多功能房靠窗布置阅读区,百叶帘让自然光富有变化,随着光线暗淡,为阅读带来静谧和纯粹
▲ 人字拼地板引导着空间向画室过渡,采用玻璃折叠门隔断,需要时可当临时客卧使用
▲ 客卫设计长虹玻璃移门,透光不透影
▲ 次卧,大面积的留白与柔软的床品、窗帘相呼应,移门外是生活阳台
▲ 一组装饰画点缀空间浓重的艺术气息
▲ 主卧整体搭配简单温馨,L型飘窗采光好,兼具休闲功能,上浅下深的墙面配色具有层次
▲ 折叠壁灯为睡前阅读提供照明
▲ 床尾利用立面定制悬空书桌和层架,不占空间又实用
▲ 主卫,墙排龙头、壁挂式台盆、智能马桶的造型选择都不表达着屋主对复古风格的喜爱,墙面粉色与深蓝色的釉面陶瓷撞色,使得整个空间放眼望去充满活力
文字编辑 | 东东
设计 | 辰佑设计(杭州)
微信:vi0619
QQ:6077718
后台回复「辰佑」可以看更多作品
媒体转载请注明装修33天并保留设计师联系方式
欢迎业主、设计师、装修公司免费投稿照片
装修33天商务合作微信:king194316
松爷店铺掌柜微信:yejia1703
辰佑设计其他作品推荐
实用装修指南
装修33天 🏡 实用装修指南
你每次点赞和转朋友圈,都是对我们的支持