▲ 建筑面积99平,项目地址:深圳-金港豪庭,完工时间:2020年8月,本案有爱的一家人希望新家有充足的收纳,阅读的书籍要随处可取,无需电视沙发,简单的要求呈现温馨使用的居家环境
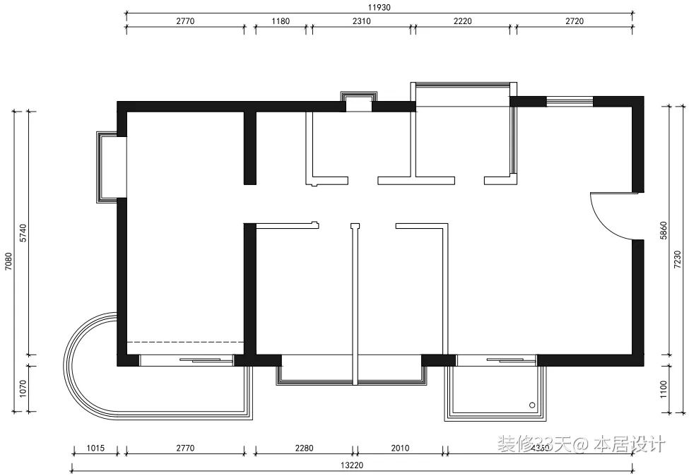
▲ 平面结构图
▲ 平面布置图
▲ 入户右侧设计整面柜体,兼具玄关鞋柜+餐边柜及置物功能的多样功能收纳,柜体的斜侧角设计,也体现设计师对安全居家的考量,白色搭配原木色,实用性兼具高颜值
▲ 客厅无沙发电视背景墙设计,取代的是两面顶天立地的书柜,空间设计优化到极致,即使有限的空间,也可以越住越大
▲ 多功能混合的客厅空间,即使没有电视,娱乐功能也不能丢,以投影幕布取代电视,必要时亦可作为私人的家庭影院
▲ 客餐厨互通,实现多元化的起居空间,让小空间更加开阔,同时相互融合的场域设计也确保家人间的互动
▲ 餐厅,原木餐桌椅+长凳,功能柜体中间的镂空部分连接延伸至窗边的木质台面,一盏吊灯营造场域氛围,这里可就餐,也可会客,可工作,可休闲
▲ 打通封闭的厨房空间,用多扇对角推拉门做成可分可合式,增强客餐厨空间的交互性,也使得整个布局也变得更加活泼丰富,厨房吧台靠餐桌一边设计两排小的置书架,方便随手取阅
▲ 厨房,白色与木色的搭配呼应餐厅空间,而极致的收纳,也在厨房中得到充分的体现
▲ 过道为避免空间的浪费,在走廊的两侧附加三个功能区:1.厨房外置大冰箱2.干湿分区卫生间3.电系洗衣家政区
▲ 儿童房是满满童真的趣味空间,考虑到小朋友现在还很小,暂没有设计单独的床铺,现阶段主要作为一个玩耍的空间
▲ 次卧,飘窗紧靠榻榻米,留出足够的空间动线,还可以放下一个大书柜,留白+原木,搭配灰蓝色床品,彰显着成熟与稳重
▲ 主卧,纯白的主色调配搭着木质底色,将卧室空间打造的优雅而舒缓,咖色的条纹床品搭配趣味松果吊灯
▲ 主卧尽头是整面L型的柜体,结合收纳飘窗部分,可以充当衣帽间与休闲区的功能
▲ 超大的主卧全景阳台,视野极佳,闲暇时在此捧上一本书或一杯清茶,享受生活的惬意
▲ 家政区完美结合的整体洗护区,也是家里幸福指数提升的一大关键
▲ 分离式卫浴设计,满足多人同时使用
▲ 视频
文字编辑 | 深深
设计 | 本居设计(深圳)
微信:benjudesign2
后台回复「本居」可以看更多作品
媒体转载请注明装修33天并保留设计师联系方式
欢迎业主、设计师、装修公司免费投稿照片
装修33天商务合作微信:king194316
松爷店铺掌柜微信:yejia1703
本居设计其他作品推荐
实用装修指南
装修33天 🏡 实用装修指南
你每次点赞和转朋友圈,都是对我们的支持