▲ 使用面积192平,造价160万,项目坐标:广东深圳,这是一个即将迎来第二个宝宝的四口之家,屋主夫妻对于居家生活有着较高的品质追求,偏向于简约美式,希望可以在家中找到想要的归属感,因此空间设计以灰白色定调,塑造出悠闲放松的气氛
▲ 原始结构图
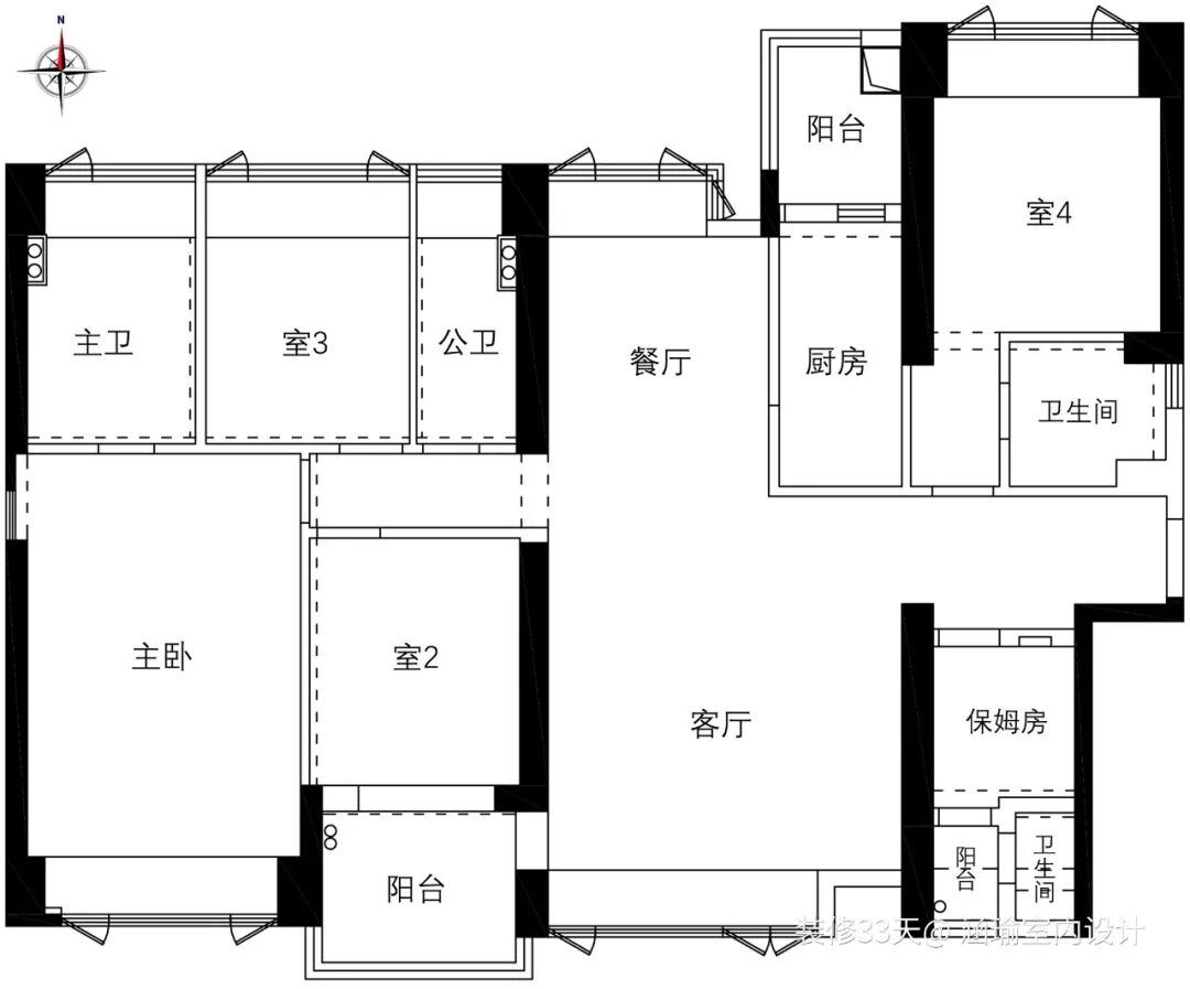
▲ 平面布置图:
1.将入户区右侧的房间全部打通,改造成书房,墙体拆除并内移做了玻璃门隔断,入户区域变得开阔大气;
2.改造了原来的保姆房,兼储物和洗衣房功能,并做了独立的玄关鞋柜;
3.连通餐厅和厨房区域,增加岛台;
4.过道两旁的卧室及公卫墙体做了内移,过道更显宽敞;
5.原先主卧的空间比例不合适,取一部分的空间作为衣帽间,流畅了生活动线;
▲ 改造后的玄关开阔大气,将左边杂物间的两面墙做了储物柜和鞋柜,增加了许多收纳空间
▲ 进门右手边是书房,设计玻璃双开门保证采光通透
▲ 进门左手边的洗衣房,即便有烘干机,也做了巧妙简易的晾晒区,就算是怀着宝宝的女主,也能轻易安装拆除
▲ 经过玄关来到客餐厅,整体以高级灰为主色调,空间质感低调柔和,优雅不张扬
▲ 客厅无主灯顶面设计,简洁大气,大张浅灰色地毯来缓解瓷砖的冰冷感觉
▲ 简单的线条勾出客厅立体感,布置米白色布艺沙发、深灰色单椅,以及八边形茶几,平静柔和的灰色,好看又舒服
▲ 朦胧悠远的艺术挂画,映衬出强烈的艺术氛围
▲ 打造壁炉式电视背景墙,增添美式气息
▲ 客厅望向餐厅
▲ 餐厅,白色岩板餐桌搭配棉麻餐椅,结合水晶吊灯呈现出宁静淡雅的用餐格调
▲ 打通餐厅和原厨房区域,增加岛台,背后做了整面储物柜和内嵌式冰箱,并将蒸烤箱设备纳入,岛台左侧长虹玻璃门后是中厨区
▲ 次卧定制榻榻米结合衣柜的形式,增加储物功能,同时也是老人午睡小憩的独立空间,床上方设计开放格充当床头柜的功能
▲ 女儿房以粉色为主,家具都是靠墙摆放,留出足够的儿童活动学习空间
▲ 打通了原来的阳台区域,整面落地窗带来足够的自然光线,利用角落规划钢琴区
▲ 布置一把儿童沙发椅,童趣满满
▲ 主卧,素雅干净的灰色系,让人身心放松,有利于睡眠
▲ 利用飘窗侧面设计一列开放格,可以摆放一些常看书籍
▲ 主卧改造后具备衣帽间功能
▲ 主卫双台盆设计,设置独立淋浴区与坐便区,均采用玻璃隔断,更加通透明亮
文字编辑 | 东东
设计 | 涵瑜室内设计(深圳)
QQ:2263471
电话/微信:18603065125
网址:www.hydsign.com
公众号:HY-DESIGNS
后台回复「涵瑜」可以看更多作品
媒体转载请注明装修33天并保留设计师联系方式
欢迎业主、设计师、装修公司免费投稿照片
装修33天商务合作微信:king194316
松爷店铺掌柜微信:yejia1703
涵瑜室内设计其他作品推荐
实用装修指南
装修33天 🏡 实用装修指南
你每次点赞和转朋友圈,都是对我们的支持