▲ 建筑面积122平,精装改造价27万(不含家电),项目地址:成都天府新区,完工时间:2020年8月,本案屋主二人都是建筑设计师,平常的工作强度很高,正因为如此,才更需要一个慵懒且舒适的居住环境,调性上业主喜欢轻奢加一点复古和温馨的感觉,能带来舒适优质的居住体验
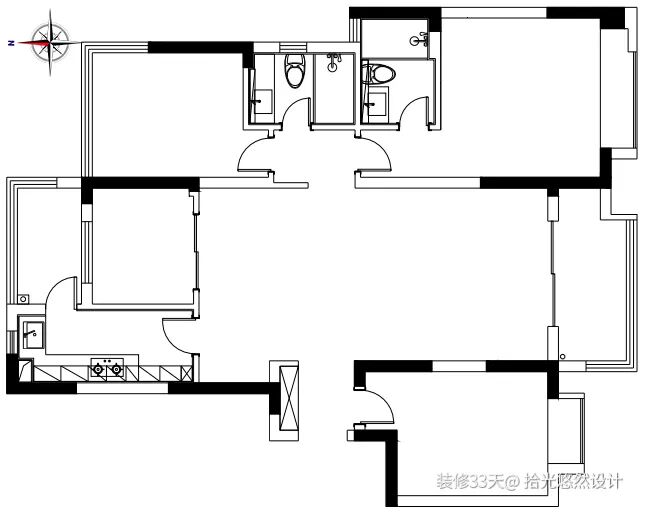
▲ 平面结构图
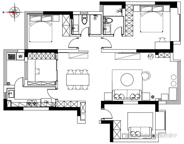
▲ 平面布置图
▲ 视频
▲ 玄关,拆除原始鞋柜,根据实际需求和使用习惯进行新的柜体设计,增加洞洞板+玄关柜的组合设计,收纳一些日常随身携带的小物件、包包、雨伞
▲ 客餐厅在原始基础上,拆除踢脚线,拆除并重组吊顶部分,电视背景墙连通餐厅的墙面采用海基布加乳胶漆的处理方法
▲ 棕色皮质主沙发搭配黑色边柜,金属元素在细节上增加轻奢格调
▲ 客厅的沙发背景墙则做石膏线造型,强化线条美感,同时也跟业主喜欢的空间调性相契合
▲ 厨房保留原始结构,更换橱柜的柜门拉手,餐厅也增加餐边储物功能,餐桌椅与餐边柜的布置营造中古风
▲ 餐厅背景搭配暖光台灯,窝在家里放下所有疲惫
▲ 将原来的一间空余的房间改造成影音室,墙面有半墙黑板漆,增加趣味性
▲ 影音室可坐可躺,简单的家具,温馨的灯光,度过一个舒适的夜晚
▲ 书房,转角书桌台面,加上满墙书架,可以把书籍和收集的潮玩手办都通通收纳,整体胡桃木色的柜体和白色木百叶的搭配相得益彰
▲ 次卧主要是留给双方父母偶尔来住,整体色调采用清新的绿色,墙面乳胶漆的颜色搭配床头墙布,空间简洁明亮
▲ 脏粉色的绒面床背搭配灰色台灯与亚麻色床品,打造轻柔的舒眠环境
▲ 主卧,少女粉的丝绒床,墙面是大面积的暖粉色,加上床头壁纸的点缀,时髦又温暖
▲ 拆除原有的深色踢脚线和木地板,换成更符合整体调性的白色木质踢脚线,以及带点复古味道的鱼骨拼木地板
▲ 床尾规划一处女主梳妆台,飘窗台成为两只喵主子休闲嬉戏的地方
文字编辑 | 深深
设计 | 拾光悠然设计(成都)
微信:shiguang3277653
后台回复「拾光悠然」可以看更多作品
媒体转载请注明装修33天并保留设计师联系方式
欢迎业主、设计师、装修公司免费投稿照片
装修33天商务合作微信:king194316
松爷店铺掌柜微信:yejia1703
拾光悠然设计其他作品推荐
实用装修指南
装修33天 🏡 实用装修指南
你每次点赞和转朋友圈,都是对我们的支持