▲ 套内面积140平,项目坐标:陕西西安,这个空间的温度,设计师巧妙的化劣势为优势,帮助客户创建了家庭成员互动交流的新鲜模式
▲ 原始结构图
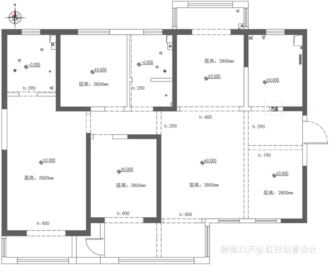
▲ 平面布置图
▲ 打破以电视为中心的客厅布局,空间的一切都是围绕互动展开
▲ 大面积留白处理更显通透明亮,沙发背景做了整面储物柜,保持空间干净整洁
▲ 储物柜前方需要留出柜门开启位置和过道,所以选择 Muuto 的 Outline sofa 系列沙发,看起来又轻又薄
▲ 旋转茶几是 Menu 最具代表性的设计之一,用旋转的桌面打开茶几的储物空间极具创意又坚固实用
▲ 将原来南向的阳台打造成一个相对独立的和室空间
▲ 可以喝茶,做瑜伽,看书,养植物,在逢年过节也可成为亲朋的临时卧榻
▲ 西厨部分以岛台为中心,但又没有明确功能定义,它可以是吧台、早餐厅、亲子活动间、甚至是书房
▲ 原来封闭的中厨打开,与餐厅之间有了互动交流,同时将厨房操作台延长,可作为传菜口
▲ 利用推拉门两侧的位置增加了储物柜,低位的木质抽屉,是按照小朋友的身高使用,放置他常看的绘本和玩具,高处放置男女主人要求常看的书籍、杯具、收藏物品等
▲ 从此厨房不再是一个人单打独斗的地方
▲ U型厨房,以白色为主,搭配浅绿色地柜,呈现出干净清爽的烹饪环境
▲ 厨房望向餐厅
▲ 把原来的小书房改成次卧,让老人在家里也能有一个舒适且实用的卧室
▲ 儿童房打造钢结构树屋,在如此小的开间进深中,变幻出充满想象力的,全新的体验,满足孩子及未来宝宝的专属空间
▲ 迷彩图案+沼泽色的不规则地毯,是孩子的小天地,楼梯下方是带万向轮的收纳箱
▲ 树屋内,局部镂空的设计保证采光,开放格具备床头柜功能
▲ 靠窗设置一字型隔板书桌,右侧拱形门后是卫生间
▲ 原结构的客卫够大,设计师多划分出一个卫生间,并且共享一个淋浴间(平面图可见),满足未来二胎,包括同住的长辈的使用需求,也能保证孩子成长过程中的独立和私密
▲ 主卧延续极简格调,床尾定制整排衣柜,满足收纳需求
▲ Montana 的壁挂床头柜,小巧实用
▲ 主卧通往主卫之间做了弧形处理,让空间多了几分柔和
▲ 主卫干湿分离,配色清新养眼,利用立面设计隔板,让台面不再堆满瓶瓶罐罐
▲ 在弧形部分做了相应的置物功能
▲ 左手边门后是坐便区,往前走是淋浴区与泡澡区
文字编辑 | 东东
设计 | 红杉创意设计(西安)
微信:hscy-2012
后台回复「红杉」可以看更多作品
媒体转载请注明装修33天并保留设计师联系方式
欢迎业主、设计师、装修公司免费投稿照片
装修33天商务合作微信:king194316
松爷店铺掌柜微信:yejia1703
红杉创意设计其他作品推荐
实用装修指南
装修33天 🏡 实用装修指南
你每次点赞和转朋友圈,都是对我们的支持