“惠南镇规三路(人民东路-规一路)新建工程”
规划设计方案正在公示
一起来看看吧!
建设单位:
上海市惠南镇人民政府
建设工程名称:
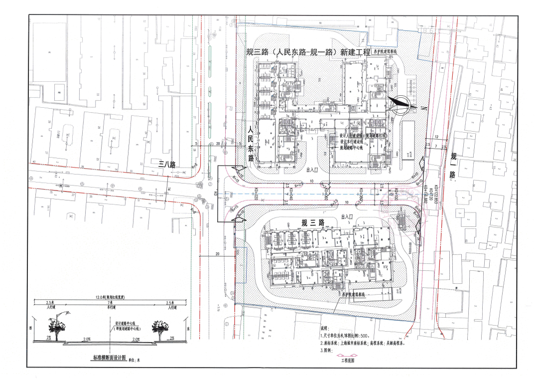
惠南镇规三路(人民东路-规一路)新建工程
道路红线宽度:12米
道路设计标准横断面
公示方式:本次公示由浦东新区规划资源局和项目所在地的街镇共同组织,项目单位配合。公示采取网上及现场同步公示的方式,公示网址:www.pudong.gov.cn/gtj/,现场公示地址:惠南镇人民东路与规三路路口西北侧及惠南镇政府。
公示时间:2022年1月21日至2022年1月30日
本次公示采取书面信函方式听取公众意见,收集意见的信函请寄:
编辑:吴婷