好消息!
浦东又要新添几个商场啦!
航头镇C9、G4、G5地块
都将新建商业项目,
这3个地块的项目总建筑面积
将超过70000平方米,
将同时配套建设绿化、道路、广场等
更多详情快和小布一起来看吧~
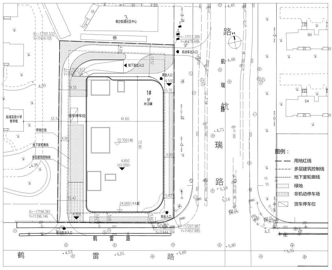
航头镇C9地块新建商业项目工程
■建设单位:
上海浦商航城商业管理有限公司
■项目名称:
航头C9地块新建商业项目
△点击可查看高清大图
四至范围
项目位于航头镇,地块:
东至航瑞路
南至鹤雷路紧临河道
西至上海市浦东新区航城实验小学
北至鹤沙航城社区中心
建设内容
该项目拟建:
▷ 1栋5层商业建筑
▷ 连廊、地下车库和设备用房等
同时配套建设绿化、道路、广场等总体工程设施。
用地性质:商业用地
工程性质:新建
C9总体经济技术指标
建设用地面积:5948.2㎡
总建筑面积:17954.4㎡
其中,地上建筑面积(计容):11896.4㎡
地上建筑面积(不计容):1538㎡
地下建筑面积(不计容):4520㎡
容积率:2.0
建筑密度:45.26%
绿地率:20.13%
建筑高度:不大于24米
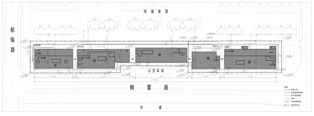
航头镇G4、G5地块新建商业项目工程
■建设单位:
上海浦商航锦商业管理有限公司
■项目名称:
航头G4G5地块新建商业项目
△点击可查看高清大图
四至范围
项目位于航头镇,地块:
东至G6地块
南至鹤雷路
西至航瑞路
北邻恒福家园
建设内容
该项目拟建:
▷ 2栋6层商业建筑
▷ 1栋4层商业建筑
▷ 2栋5层商业建筑
▷ 连廊、地下车库和设备用房等
同时配套建设绿化、道路、广场等总体工程设施。
用地性质:商业用地
工程性质:新建
G4G5总体经济技术指标
用地面积:17048.1㎡
总建筑面积:53734.38㎡
其中,地上建筑面积(计容):36157.38㎡
地上建筑面积(不计容):4677㎡
地下建筑面积(不计容):12900㎡
建筑密度:50%
绿地率:20.02%
建筑高度:不大于24米
建筑层数:商业地上1-6层,地下一层
C9、G4、G5地块商业项目建成后,将成为鹤沙航城大型居住社区商业中心。后期,随着轨交18号线建成投入使用、北横河景观绿地改造,鹤雷路沿线将一跃成为鹤沙航城社区的繁华地段,呈现航头别样商圈景致。
公示详情
如对规划草案有反馈意见,请于2020年10月17日前(以寄出邮戳为准)将书面意见邮寄或电邮至张江科学城建设管理办公室行政审批处,也可到项目所在地相关镇、街道反映。
反馈意见的邮寄地址:上海市张东路1158号3号楼(注明项目方案公示意见),邮编:201203
电子邮箱:zjgh@pudong.gov.cn
编辑:李志豪
近期热文
* 总建筑面积超70000㎡!楔形绿地里的住宅楼和配套商业,你期待吗?
* 浦东旅游恢复到去年同期近九成!有两个点逆市上扬,看看是哪里
* 1个小区16个楼栋启动加梯!鼓励有条件的小区成片加装电梯