小伙伴们注意啦!
浦兴社区Y000901单元02-01A地块项目
规划设计方案新鲜出炉
赶紧来了解一下!
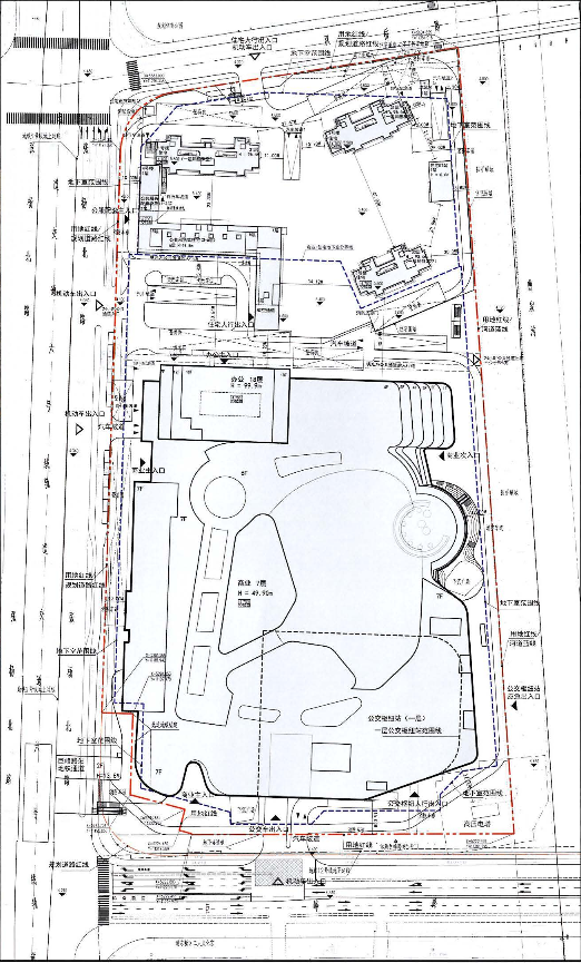
浦东新区浦兴社区Y000901单元
02-01A地块项目
规划用地面积:66059.5平方米
总建筑面积:428123. 69平方米
地上建筑面积:共263732.59平方米
地下建筑面积:共164391.10平方米
容积率:3. 82
绿地率:住宅35%, 商办20%
建筑高度:99.9米(控规限高120米)
建设内容:地上包含一栋办公塔楼及其商业裙房,三栋住宅楼,一栋公共租赁房及公共服务配套楼。住宅地下室两层,商办地下室三层。
项目建设地址:东至曹家沟,南至巨峰路,西至张杨北路,北至双桥路。
项目位于“金色中环发展带”,包含商业、办公、住宅、公共服务等多种功能,总建筑面积超40万平方米,期待规划设计方案的早日落地,“金色中环发展带”再添一位实力“新成员”!
意见反馈
反馈意见截止日期:2022年1月16日,信件以寄出邮戳为准。
采取网上和现场同步公示的方式
现场公示地址:浦兴路街道办事处、项目现场围墙(张杨北路巨峰路交叉口以东约100米)
公示网址:浦东新区规划和自然资源局官网
本次公示采用网上和现场公示听取公众意见。
反馈意见的信函请寄:浦东新区金桥路27号14号楼,上海金桥经济技术开发区管委会行政审批服务处,邮编:201206,并在信函封面上注明 “项目公示意见”。
编辑:顾佳伟
* 转载请注明来自浦东发布官方微信
* 这家幼儿园落户新片区,预计2024年秋季招生!效果图抢先看→