最近爱范儿的线下社区未来社 HOUSE 正式亮相,这是一个探索明日生活方式的社区实验场,其本身就是一场 KEEP PATCHING 的社区实验。
数字潮牌爱范儿和致力于在日常中创造奇迹的全球本地化先锋建筑设计事务所 Wutopia Lab 共同打造了这颗工业遗址世界里的橙色糖果。Wutopia Lab 创始人俞挺分享了设计背后的故事和理念,或许可以让你更好地了解我们为什么要做这件事。
期待和你在这个社区不期而遇。
Popped Orange
数字潮牌爱范儿(ifanr)委托 Wutopia Lab 在广州 TIT 创意园中创作了 Popped Orange——未来社 HOUSE 于 2022 年 9 月落成开放。这个以「光塔」为枢纽,以「糖」为隐喻的垂直微型社交综合体是爱范儿联合 Wutopia Lab 以一次开放的设计实验方式进行的,以一次名为 Keep Patching 的城市社区和生活方式更新活动,它是一个探索咖啡,酒吧,展览,剧场及观光等灵活场景于一体的社区试验场。它也是 Wutopia Lab 自 2015 年推行的城市微空间复兴计划的第一个广州样板。
Popped Orange
Popped Orange
爱范儿 ifanr
爱范儿的创始人 Wilson 认为,「人生何尝不是一个打补丁的过程,凡事未必都得推倒重来」。补丁(.Patch)并不只是修补,也是构筑明日生活方式的武器;自我更新(self-augmenting)也是一种生活哲学。最后这个观点被抽象为著名科技和生活方式媒体爱范儿的价值主张:Keep Patching(无限更新),并形成了涵盖 People、Art、Tech,City,Howto(Tool)五个领域的「 Patch_in LAB 社区实验」。
爱范儿在这些领域集中探寻:什么是更智能和高效的生活,更可持续的生活,更注重美感的生活,更平等包容的生活……Wilson 认为社区实验既是我们探索明日生活的方法,而本身就是一种明日生活方式。
Wutopia Lab 创始人 Shanghailander 俞挺相信复杂系统这个新范式可以打破以经典力学为基本范式的建筑学内卷的状态。我一直把接受的项目看成具有超文本链接的复杂系统。建筑不仅仅是我们习惯讨论的那些陈词滥调,它和多样多元的身份以及生活甚至我们试图隐藏的各种思绪还有庞大的虚拟空间都有着重要的联系。建筑不是作为物体而是作为事件而存在。
Popped Orange
两位不同领域的创始人,Wilson 和 Shanghailander 在不同的方向思考并取得共识,最后决定在未来社 HOUSE 这个项目上合作。
开放的设计不意味着冒险
未来社 HOUSE 总平面航拍
未来社HOUSE @广州TIT创意园
未来社 HOUSE 一边是广州纺织机械厂原址改造而成的 TIT 创意园,另一边则是将要建成的大型城市公共建筑广州科技馆,美术馆。它正好位于边界。你可以把未来社 HOUSE 看成是城市更新迭代中的一个橙色补丁:介于过往与未来,跨越线上与线下。
日本社区设计师山琦亮说过:不是设计只让 100 万人来访 1 次的岛屿,而是规划能让 1 万人重访 100 次的岛屿。所以我决定在丰富多样生长的TIT园区里创造一个抽象纯粹的椭圆形岛——白花园。而岛上的主体就是作为一颗糖的立方体未来社 HOUSE。这是我设定的最初的 Plot。但我没有强化细化每个细节,因为我决定做一个开放设计的实验。它规则简单。可以容错,可以容纳不同人的意见甚至小情绪,可以升级,可以创造我不知道不理解的事件。多样多元,通过打补丁,它甚至是一场永远不会结束的设计实验。作为 Plot 的「未来社 HOUSE」是这个复杂系统基础程序。它可以不断打补丁,更新升级。有固定的部分,也有生长延展,设计代码被有机的组合在一起形成一套具有完整形象但不断扩张生长的可持续的复杂系统。
未来社HOUSE 建筑生成
作为基础程序的未来社 HOUSE 有三层
分解轴测图
1F可开合的咖啡空间
Talllk café中岛吧台
第一层_底层
Sunset Room:
日落俱乐部
不同橙色嵌入墙壁
镜像落日
未来社HOUSE 剖面图
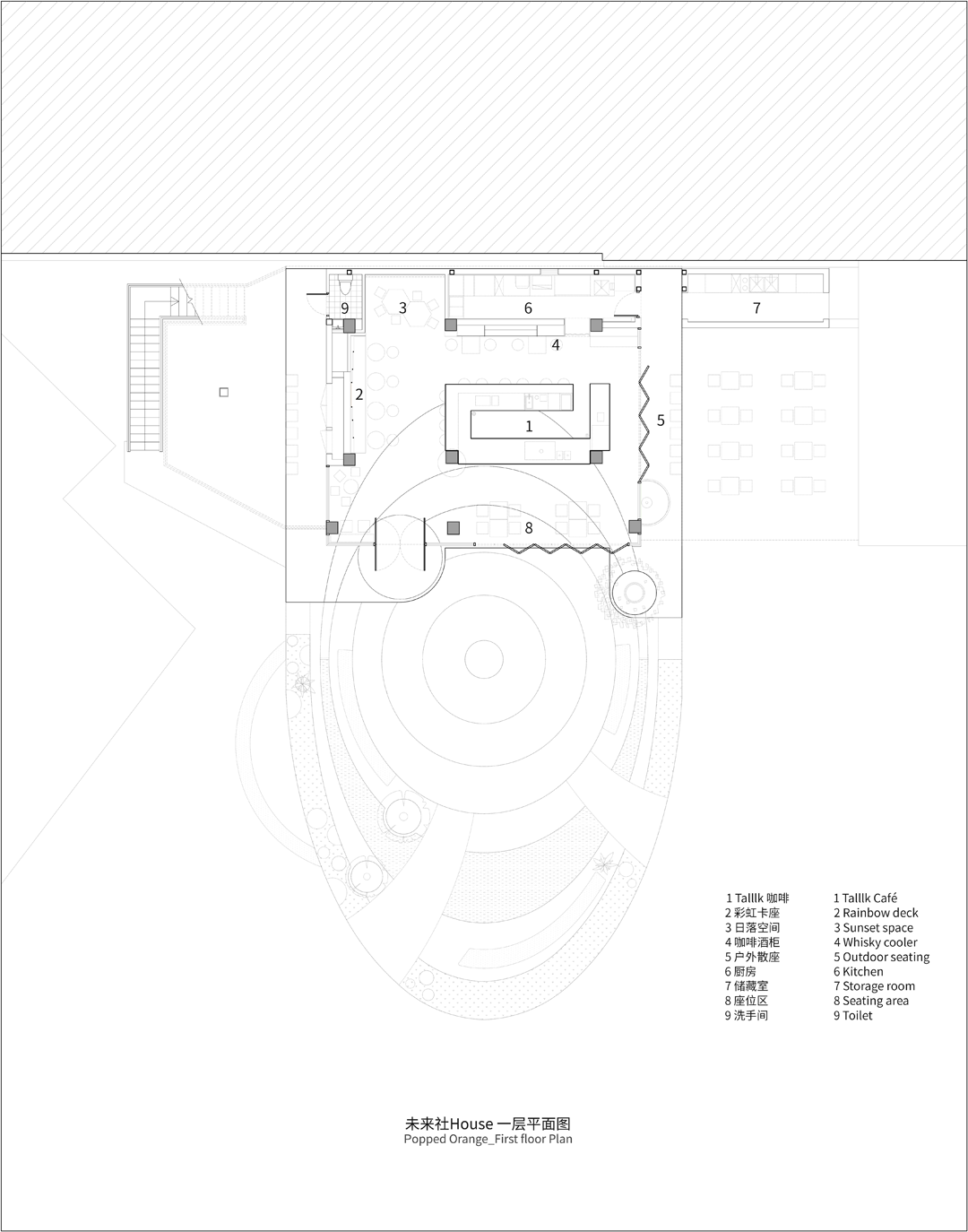
未来社HOUSE 一层平面图
TALLLK Café 及「日落俱乐部」— Sunset Club
首层的日常运行是 TALLLK Café、Black Host(手冲咖啡)、Spirit Line(酒)。而特别运行可以依据不同品牌合作/快闪在这个场所举行多元经营和运营的实验。爱范儿刚刚发布的产品品牌「制糖工厂」在这里开展了一个生活场景与桌面周边结合展示的 ReMake.Space「桌面计划」。
一颗橙色水果糖
第二层_中层
中层是漂浮于白花园之上的橙色立方体,是建筑的主要实体,象征着爱范儿的产品理念「好产品就是一颗糖」,未来社 HOUSE 就是 TIT 创意园里的一颗橙色水果糖。
Air Show 天台美术馆
Air Show 天台美术馆
Air Show 天台美术馆
Air Show 天台美术馆空间变化
Shot on iPhone ©ifanr
(活动照片向右滑动查看更多)
未来社HOUSE 二层平面图
Air Show—天台美术馆 :
二层的日常运行是 Air Show 天台美术馆(展览空间),应特别运行可以变身 LiveHouse、分享空间,表演空间和 Party 空间。
到达屋顶的路径A
未来社HOUSE 北立面
到达屋顶的路径B
未来社HOUSE 南立面
第三层_顶层
Secret Roof:
与天空连接的光塔
与天空连接的光塔
广州塔就在不远处
屋顶活动©ifanr
未来社 HOUSE 总平面图
Port与天空连接 :
屋顶的日常运行是 Moon Camp(月光营地),而特别运行是 Port(光塔),是有趣、有仪式感的场所更可以是 Party 舞池,露台营地,尽情烧烤撸串。
人生是一段不断打补丁的旅程
开放的设计就意味着在设计过程中需要随时应对现场情况做出不改变设计原先框架的调整,这就是打补丁。
KEEP PATCHING ©ifanr
光塔
光塔钢柱
白色钢梯
半透明阳光板
光塔
半透明的光塔既作为垂直交通联系了未来社 HOUSE 的三层空间,同时也是一座户外立体公园或者是户外展廊。楼梯围绕结构钢柱盘旋上升,形成四个方向的休息平台,休息平台悬挑无支点,梯段互为支承共同作用,这样的空间结构受力复杂,与常规的平面结构不同的是需要有足够的抗扭刚度,老胡按空间结构进行计算分析和设计。特将钢踏步板置于两根梯段梁的内侧并焊牢,钢踏步成为整体受力的一部分。以空间 3D 建模计算更好的模拟了实际受力状况,保证设计出来的构件截面更轻巧。游客经过二层的展厅和三层的天台后可以继续到达光塔的顶部。这时的楼梯功能独立成一个眺望远方的景观位,于是广州塔,赤岗塔,TIT 水塔,以及正在建造的广州科技馆、美术馆以及花园里三棵树的微微摆动的树梢都在视线掌握之中了。
椭圆形白花园
白花园座椅
白花园一隅
白花园的树
ifland 如果宇宙
白花园
其次需要通过测绘保留树木位置和土层标高,使之与花园改造高度匹配。精细的地勘察测绘可以避免改造过程中临时遇到的现场旧有设施的冲突导致设计无法保证执行。建筑师通过缝隙式排水沟的应用,景观线性灯带的暗藏,水景溢水口与排水口设置于景观桥底等一系列对不利于景观效果的设施与元素进行针对性细部设计即设备消失术的方法,保证了一个完整纯粹的白花园镶嵌在 TIT 园区中。
我坚持用了白色水洗石做地坪。用红色水洗石做舞台地面。经过比较,接受 Wilson 和阿兔的建议,放弃了天蓝色水洗石做水池。白花园中这条白色月牙形的水池,区分了花园的内外场。游客可以跨过拱桥到达被弧形座椅环绕的内广场,进入爱范儿(ifanr)的「ifland 如果宇宙」。树池和建筑入口的圆形元素,就是小宇宙中的一颗颗行星。
白花园一侧的快闪空间
未来社 HOUSE 开幕活动 ©ifanr
(活动照片向右滑动查看更多)
未来社HOUSE开幕活动 ©ifanr
(活动照片向右滑动查看更多)
平日里,可以端一杯柠檬冷萃,坐在树下享受独处,亦可以三五好友下班后,来听一场露天音乐会,到周末更有未来社多样丰富的社区活动:集市、脱口秀、Yoga、Swing Dance。这里是有趣人类事件发生地,而当室内帷幕落下,花园又成为了观众看台。ifanr 的多元的运营模式,打破了行业边界。KEEP PATCHING,于是这个花园一定不是一成不变的,她将不断生长,更新,保持「未完成」的状态。
未来社 HOUSE 夜间模式
配合不同橙色的暖光
夜间卡座区 ©ifanr
夜间吧台区
《女神音乐厅的吧台》
Lighting
室内照明则兼顾商业展示和社区生活双重需求。首先灯光勾勒出原有结构线条,营造温柔自然的光线基调;接着用轨道灯对主角「吧台」进行重点刻画,如剧场追光,顾客可欣赏咖啡师拉花,调酒师摇酒,加强表演属性。卡座区立体灯光组合,形成富有节奏的空间光影;在临窗的座位区,控制合适的亮度与外界相融,避免较高的照度破坏舒适度与空间氛围。
未来社 HOUSE 活动照明 ©ifanr
(活动照片向右滑动查看更多)
未来社HOUSE活动照明 ©ifanr
(活动照片向右滑动查看更多)
基于 ifanr 对于未来社区的探索和塑造有着强烈的先锋意识,照明提供了触摸未来形态的载体。未来社 HOUSE的Lighting.path 将建筑设计、景观设计、运营活动以及场地象征调和在一起,而构建出有生命力的光与影。
白色立面 ©ifanr
Popped Orange
橙色条纹的屋顶
条纹屋顶
未来社 HOUSE 东立面
东立面外廊
东立面的凹凸肌理
未来社 HOUSE 东立面
东立面
胶布人
胶布化的日落俱乐部
未来社 HOUSE 西立面
胶布人:HELLO,I’m .Patch
胶布人.patch ©ifanr
(胶布人向右滑动查看更多)
开理解和尊重才是甲乙方应该有的基础
未来社HOUSE 桥
甲方如同君王主宰乙方,或者于此相对,乙方顽固地拒绝甲方的任何意见。我认为这两种关系都是不正常。尽管 Wilson 是个建筑爱好者,但他理解尊重我。尽管我有些行业名气,但我乐意学习和倾听 Wilson 许多有趣的不止于建筑的想法。我尊重他的信任,并从他的想法中激发自己未开发的思考而创作出超乎他想象的作品。这种甲乙方相互激励理解尊重的关系才是保证这个开放的设计不是一种冒险的基础。
落成仅仅是开始
好产品是一颗糖 ©ifanr (点击上图👆🏻即可入手)
联名限量版周边 ©ifanr(点击上图👆🏻即可入手)
(充电头照片向右滑动查看更多)
Popped Orange/ 未来社 HOUSE 作为一个令人向往的社区,必然是可以让志趣相投的灵魂相识相知,源源不断迸发出新鲜的创意和灵感。它落成的当天仅仅是更有趣的开端。Wutopia Lab 联合爱范儿的制糖工厂发布了限量版硬糖充电头。这个吸收了未来社 HOUSE 视觉特征的充电头是建筑设计的一次周边化。而未来,建筑设计并不拘泥于所谓的物理空间场所而能够以更细微的触角进入我们的生活而影响我们。
建筑是一件华丽的工具
帮助我们创造
日常的奇迹
——Wutopia Lab
项目名称:Popped Orange/未来社HOUSE
设计公司:Wutopia Lab(建筑、室内、景观)
主持建筑师:俞挺(Shanghailander)
项目建筑师:李灏(阿兔)
设计团队:王志铮,蒋心平(实习)
照明顾问:张宸露,尉诗羽,杜雨轩
深化公司:上海三益建筑设计有限公司
建筑专业:祝宇梅,杨佳
结构专业:胡文晓
机电专业:石佳莹,毛浡,茅娅倩,邹雨恒
室内设计:于兵,沈睿,邵彬
景观设计:王粲,郭雨琪
摄影:吴嗣铭,ifanr
视频:吴嗣铭
(未备注 ©ifanr 均为吴嗣铭拍摄)
建设单位:爱范儿
施工单位:河源市御宸居装饰有限公司
景观施工单位:珠海御园景观工程有限公司
项目地址:中国,广东省,广州市T.I.T创意园
建筑面积:177.8㎡
设计时间:2021.12-2022.1
竣工时间:2022.8
题图由 @KUMAknight 提供
▎Wutopia Lab
Wutopia Lab,由俞挺和闵而尼于 2013 年创立于上海,以魔幻现实主义,创造日常奇迹的全球本土化先锋建筑设计事务所。