![]()
潮前府规划了2幢16F高层,近距1号线九堡站、国芳天街、东城外国语实验学校;整盘精装限价3.34万元/㎡,主力户型约89-127㎡,一次性加推120套,总价起步约243万元。运晓花映里南侧大片处在整建之中,近距4号线平安桥站,后续大概率还有地铁四期15号线的加持;整盘规划了7幢高层,精装限价3万元/㎡,首开84套,主力户型约96-106㎡,总价起步约244万元。
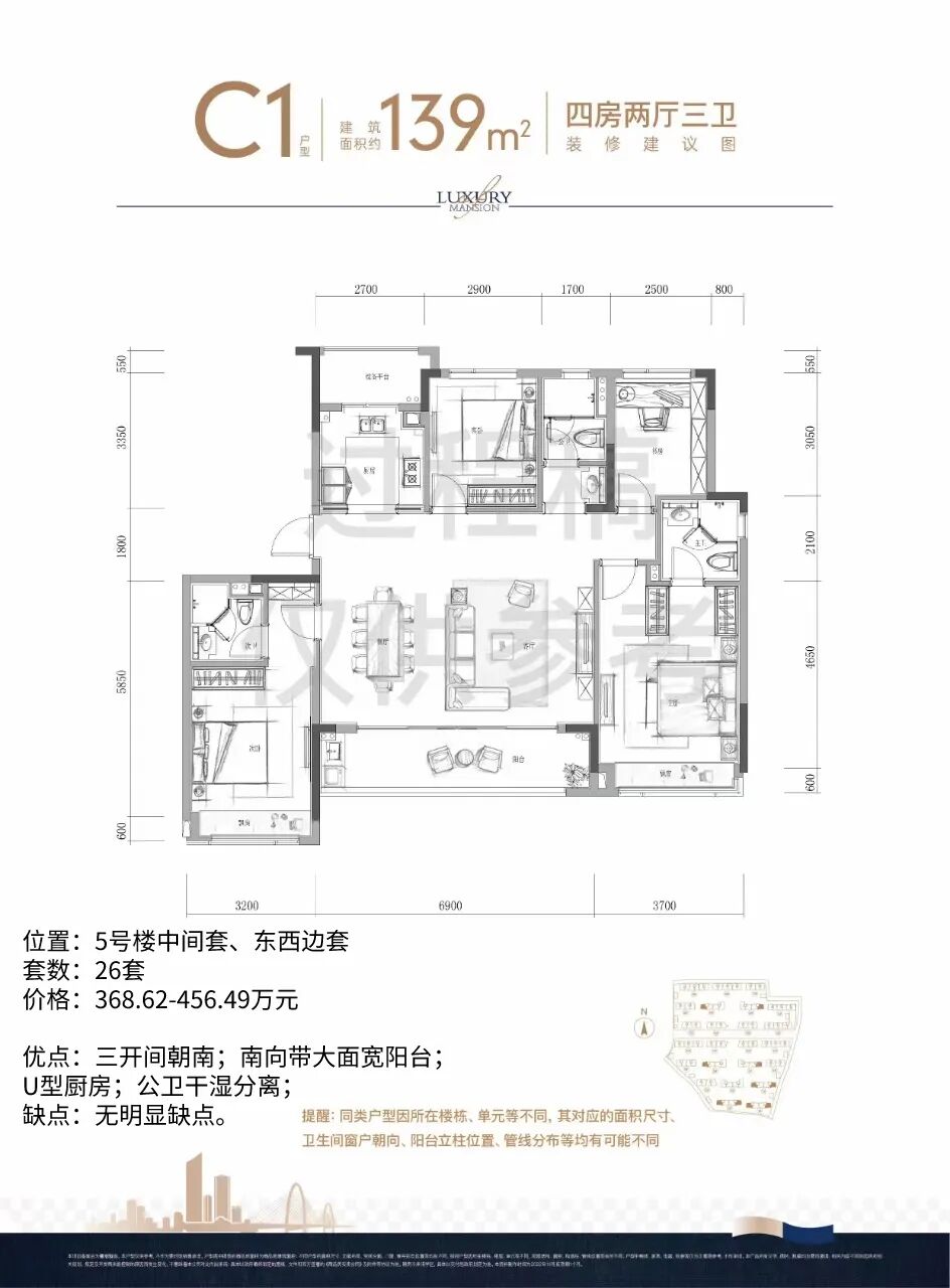
杭曜置地中心处在5、10号线换乘站和睦站旁,自带万象综合体;住宅部分共22幢高层,分成南北两区,整盘精装限价4.62万元/㎡;加推196套,主力户型约118-139㎡,总价起步约442万元。
![]()
云萃天和城处在整建之中的富春湾新城,自带超6万方购物中心、约5千方商业街区、及写字楼、酒店等;
整盘精装限价1.88万元/㎡,加推108套,主力户型约98-123㎡,总价起步约159万元。
![]()
翠堤春华轩与1号线湘湖站之间步行可达,南侧近临东白马湖,靠近彩虹快速路,开车快捷方便;
楼盘楼盘规划了8幢住宅,含洋房、小高层、高层三种业态,精装限价33950元/㎡,收官套数为114套,主力户型约104-139㎡,总价起步约288万元。
![]()
欣翠里规划了10幢21-26F高层和1座购物中心,住宅部分由新汉路分成东西两区,东西区均带有景观水池;楼盘近距7号线新汉路站、新农都;精装限价2.7万元/㎡,加推275套,主力户型约97-131㎡,总价起步约200万元。叠潮雅庭规划了24幢7F洋房和1座购物中心,住宅部分由市政道路分为南北两区,两区均带景观水池;购物中心处在住宅部分西侧;楼盘近距钱塘江、闻堰老街、闻堰小学、闻堰体育馆等,精装限价30860元/㎡,首开96套,主力户型约118-139㎡,总价起步约281万元(最小面积约114㎡)。
![]()
福翠里规划了7幢22-26F高层,外立面采用封阳台式的公建化立面,阳台落地玻璃设计,内部规划了景观水池;楼盘西南侧为规划幼儿园,东侧与沈括小学一路之隔,近距4号线好运街站、在建星创综合体;整盘精装限价3.12万元/㎡,收官套数为396套,主力户型约99-139㎡,总价起步约264万元。
枫翠云轩处在火车西站云门西南侧,自带云城高规格光环;近邻杭师大附属仓前实验中学、仓前中心小学;整盘精装限价3.61万元/㎡,加推152套,主力户型约139-168㎡,总价起步约396万元。
星图光年轩近邻新交付的良渚红盘和光尘樾,与2号线良渚站之间距离约500m;规划了19幢高层,采用包阳台式的公建化立面;
整盘精装限价2.91万元/㎡,加推100套,主力户型约105-139㎡,总价起步约276万元。
馥香园规划了25幢14-17F高层,内部配套有恒温泳池、地下会所等;与5号线萍水街站、10号线北大桥站、大悦城之间步行可达;周边近距登云育才小学、杭州师范大学文晖实验学校、锦绣中学等学校;
整盘精装限价5.5万元/㎡,首开186套,主力户型约175-245㎡,总价起步约778万元。
宸颂轩可享丰收湖公园、龙湖天街、杭师大东城教育集团东城实验学校等配套,未来预计可近享18号线;
整盘规划了7幢13-14F高层、1幢12F公租房10号楼和2幢10层办公楼,精装限价3.34万元/㎡,收官套数为56套,主力户型约108-139㎡,总价起步约288万元。
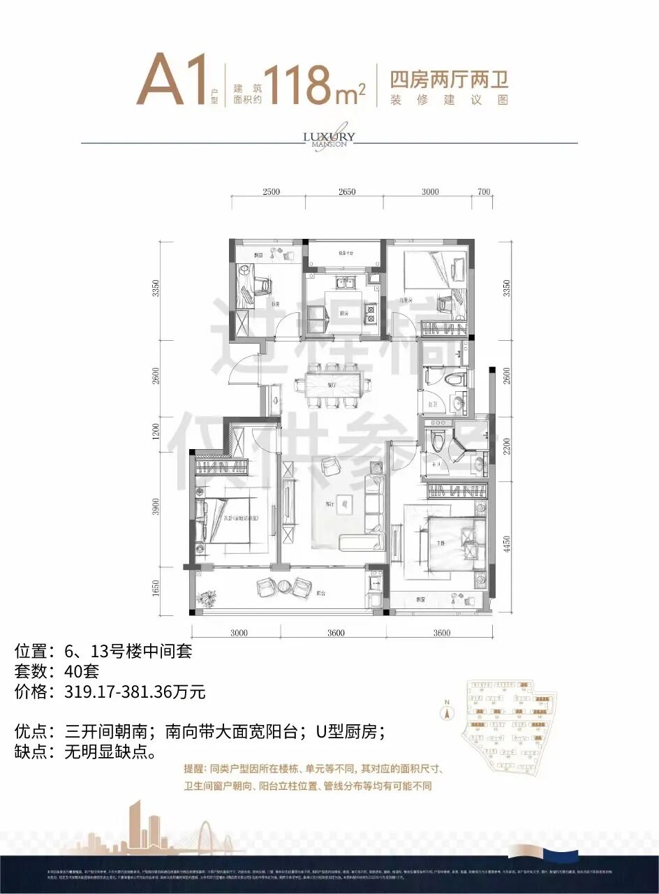
江翠轩规划了8幢15F高层和1幢公租房2号楼,内部配套了蓝宝石景观水池等;楼盘西南侧为李宁体育公园,楼盘东侧为规划幼儿园、东南侧为规划小学,与1号线七堡站之间步行可达,与澎诚中学之间距离约500m;精装限价4.44万元/㎡,首开140套,主力户型约129-165㎡,总价起步约475万元。均价:精装限价33400元/㎡,装修标准3500元/㎡主力户型:约89㎡户型60套,约127㎡户型60套| 配套介绍 |
楼盘规划了2幢16F高层,小区主出入口设在1号楼西北侧。楼盘与1号线九堡站之间距离约430m,与国芳天街之间距离约700m,与东城外国语实验学校之间距离约530m。楼盘东侧靠近杭海路,北侧、西侧靠近在建合生创展名邸,南侧现为海天公寓。西北侧为小区出入口;北侧设有地面机动车停车位、消防登高场地;西侧设有非机动车坡道;南侧设有化粪池;北侧设有消防登高场地及回车场;东北侧设有防爆波电缆井。| PART 3 |
一房一价、噪声表、选房建议
1. 所处位置:均处在1、2号楼,约89㎡为中间套,约127㎡为东西边套;5. 价格因素:总价最高在次顶楼,往下至7F每层之间价差约1万元,特殊数字13、14F有一定优惠,不介意可考虑。选择127㎡时,建议优选1号楼东边套,2号楼西边套,再次选择1号楼西边套,再次选择2号楼东边套;1、2号楼建议优选中高楼层,采光视野较好;顶楼价格介于4、5F,建议优先于4F前选择。均价:精装限价30000元/㎡,装修标准3000元/㎡配套介绍&楼幢、户型分析
| 配套介绍 |
楼盘规划了7幢22-26F高层,西北侧规划了社区居委会等,小区出入口设在1、7号楼之间和5、6号楼之间。楼盘与4号线平安桥之间距离约600m,与文渊小学(康桥校区)之间距离约600m,与康桥中学之间距离约750m;未来大概率还将近享15号线站点。楼盘周边现多为规划用地,西侧靠近拱康路,南侧现为河道。西侧设有非机动车地下车库出入口、配电房;北侧设有消防登高场地。
![]()
| 约96㎡、106㎡选房建议 | →
1. 所处位置:均处在3号楼,约96㎡为中间套,约106㎡为东西边套;5. 价格因素:总价最高在次顶楼及下一层,每层之间价差约1-2万元,特殊数字14、18F有一定优惠,不介意可考虑。建议优选中高楼层,采光视野较好,预算有限也不排斥优选中低楼层;东边套高于西边套约13万元,预算充足优选东边套;均价:高层精装限价46200元/㎡,装修标准4000元/㎡主力户型:高层约118㎡户型98套,139㎡户型98套验资门槛:冻结资金首套150万,二套200万,一次性500万![]()
项目由三宗地块组成,北侧地块为一区,规划了12幢高层;中间地块为二区,规划了10幢高层及1幢31F办公楼;南侧地块为万象综合体。
此次加推为北侧一区,与5、10号线换乘站和睦站之间距离约600m,东北侧一河之隔为运河大剧院。
楼盘东南侧隔萍水东路为和睦新村,西北侧为在建杭樾润府和星瓒颂锦府。
| PART 3 |
一房一价、噪声表、日照表、选房建议
1. 所处位置:均处在11、12号楼,约118㎡为中间套,约139㎡为东西边套;5. 价格因素:总价最高在次顶楼及下两层,每层之间价差约2-6万元。在选择118㎡时,建议优选12号楼,其次选择11号楼;在选择139㎡时,建议优选12号楼西边套,预算充足也不排斥优选11号楼东边套,再次选择12号楼东边套,再次选择11号楼西边套;11、12号楼建议优选中高楼层,尤其是12号楼东边套、11号楼西边套;顶楼价格偏高,优先于3F前选择。均价:精装限价18800元/㎡,装修标准2500元/㎡主力户型:约98㎡户型54套,106㎡户型27套,123㎡户型27套楼盘规划了14幢18-27F高层,其中西南角5号楼为公租房,住宅小区出入口设在南门和北门位置;此外自带超6万方购物中心、约5千方商业街区、及写字楼、酒店等。楼盘与富阳高铁站之间距离约1.6km,与春江中心幼儿园之间距离约1.2km,与在建富春湾未来小学之间距离约1km。楼盘东侧为亭山渠及竹简路,路对面为工商市场监管局、街道办公等机构;南侧为蔡伦路,一路之隔为在建办公楼和小型公园;东南侧在建省人民医院;北侧为富阳江南医院。附近设有非机动车坡道、地下变电所、开闭所、消防登高场地、垃圾收集点。1. 所处位置:均处在6号楼,约98㎡为中间套,约106㎡为西边套,约123㎡为东边套;5. 价格因素:总价最高在24-26F,每层之间价差约1-2万元。
在南侧有一定采光影响的情况下,优选中间楼层;顶楼价格偏高,仅优先于3F前选择。摇号房源:3、5、6号楼(2-10F)、7号楼(2-16F)均价:精装限价33950元/㎡,装修标准3500元/㎡主力户型:约104㎡户型30套,128㎡户型30套,139㎡户型54套验资门槛:冻结资金首套80万,二套110万,一次性280万| 配套介绍 |
楼盘规划了8幢住宅,其中2幢7F洋房、4幢10F小高层、1幢15F和1幢16F高层。小区主出入口设在4、5号楼之间,车行出入口设在南侧,人行出入口设在东侧。楼盘与1号线湘湖站之间距离约1km,西南侧为规划小学、幼儿园用地。楼盘东侧为西兴路,路对面为规划商业用地(现为停车场);南侧为规划思学路,再往南即为东白马湖;西侧靠近河道,隔河为科技园及在建湖望庐;北侧靠近滨文路及彩虹快速路。东侧设有地面非机动车停车位;南侧为小区出入口,设有机动车地下车库坡道;北侧设有专变配电房、垃圾房;| 约104㎡、128㎡、139㎡选房建议 | →1. 所处位置:约104㎡为7号楼中间套,约128㎡为7号楼东西边套,约139㎡为3、5、6号楼东西边套;3. 噪声因素:5号楼东侧有一定道路噪声影响,7号楼北侧噪声影响较大;5. 价格因素:3、5、6号楼总价最高在次顶楼及下一层,每层之间价差较明显;7号楼总价最高在次顶楼,往下至6F每层之间价差约2-3万元,10、14F价差明显,不介意可考虑。
7号楼为高层,单价上有一定优势,但北侧靠近彩虹快速路,噪声影响相对较大;3、5、6号楼为洋房、小高层,舒适性较好;小区南侧有景观优势。在选择7号楼时,优先从次顶楼往下选;边套优选西边套;顶楼可适当优先于中低楼层;在选择3、5、6号楼时,优选3、6号楼西边套,再次选择3、6号楼东边套、5号楼西边套,再次选择5号楼东边套;建议从次顶楼往下选;3、5、6号楼顶楼价格相当于5F,优先于2F前选择;7号楼顶楼价格偏高,偏好景观可以适当优先,一般可优先于5F前选择。均价:高层精装限价27000元/㎡,装修标准3000元/㎡主力户型:约97㎡户型100套,109㎡户型25套,119㎡户型100套,131㎡户型50套验资门槛:冻结资金首套60万,二套80万,一次性200万
楼盘规划了10幢21-26F高层和1座购物中心;住宅部分由新汉路分成东西两区,东西区均带有景观水池;
东区主出入口设在1号楼东侧和6号楼侧,次出入口设在8号楼东北侧和2号楼东北侧。
楼盘与7号线新汉路站之间距离约100m,与新农都之间距离约150m;楼盘西南侧为在建大平层明彩城,东南侧为安置房。
| 楼幢分析 |
3号楼 →
南侧设有公变配电房、化粪池;西侧设有地面机动车停车位;
| 约97㎡、109㎡、119㎡、131㎡选房建议 | →1. 所处位置:约97㎡为3、8号楼中间套,约109㎡为4号楼中间套,约119㎡为3、8号楼东西边套,约131㎡为4号楼东西边套;3. 噪声因素:3、8号楼西、南侧有一定道路噪声影响;5. 价格因素:总价最高在20F,往上、往下至9F每层之间价差约1-2万元,特殊数字14、18F有一定优惠,不介意可考虑。选择小户型时,优先选择4号楼109㎡,建议优选采光视野更好的中高楼层;其次选择97㎡小户型,可优选3号楼;选择119㎡时,预算充足建议优选3号楼东边套、8号楼东边套,再次选择3号楼西边套、8号楼西边套;选择131㎡时,预算充足优选东边套,其次选择西边套;在高层采光视野较好的情况下,可优选中高楼层,3、8号楼不排斥优选中间楼层;顶楼价格介于5、6F之间,建议优先于4F前选择。均价:精装限价30860元/㎡,装修标准3500元/㎡主力户型:约118㎡户型40套,约126㎡户型24套,约139㎡户型26套,特殊户型114㎡3套,109㎡1套,131㎡2套验资门槛:冻结资金首套60万,二套80万,一次性200万配套介绍&楼幢、户型分析
| 配套介绍 |
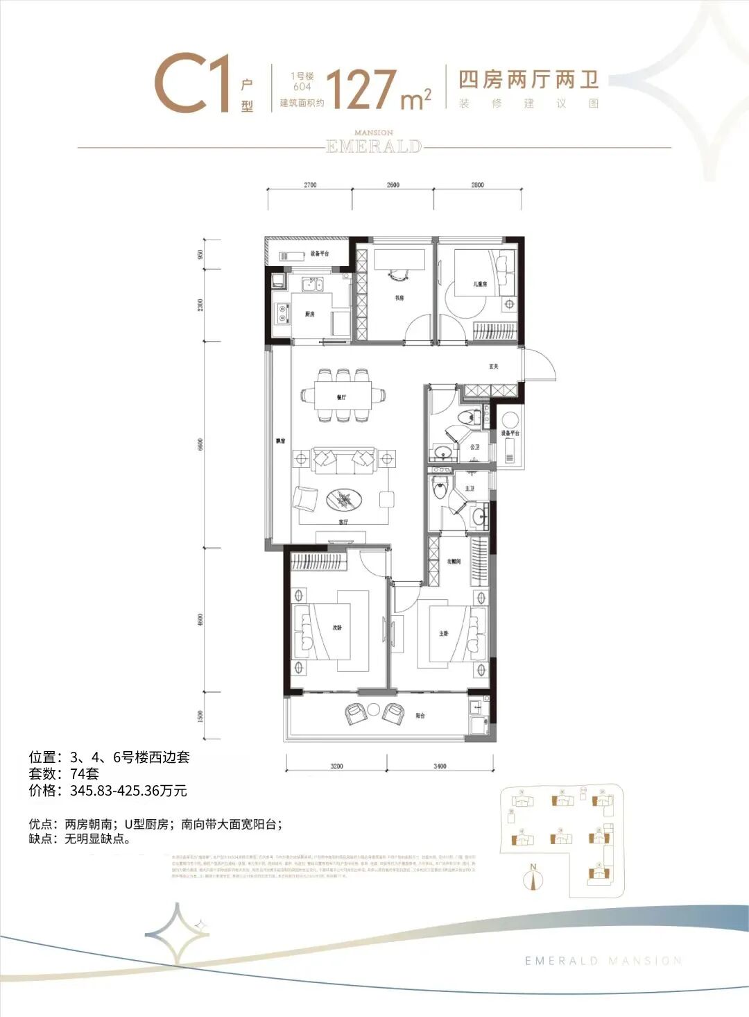
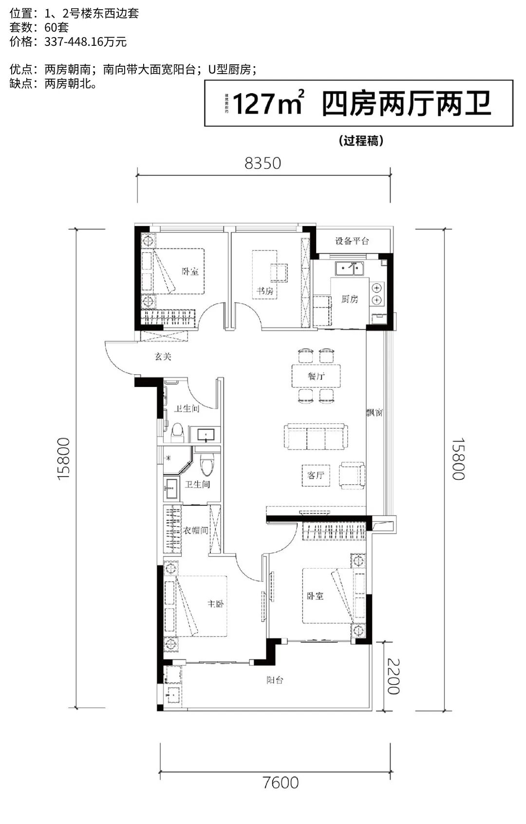
楼盘规划了24幢7F洋房和1座购物中心,住宅部分由市政道路分为南北两区,两区均带景观水池;购物中心处在住宅部分西侧;住宅北区车行出入口设在16、17号楼之间和14、15号楼之间,人行出入口设在15、16号楼之间;南区车行、人行出入口设在11、12号楼之间。楼盘东北角建有邮政局闻堰支局,东北侧约300m为闻堰小学,东侧约800m为闻堰体育馆,约1.1km为闻堰初级中学,西侧约500m为钱塘江。楼盘东侧为三江新村,北侧为隐龙湾及江南摩卡,西侧靠近闻堰老街。南侧设有开闭所;北侧设有配电房;屋顶设有5G基站;| 约118㎡、126㎡、139㎡选房建议 | →1. 所处位置:约118㎡为6、13号楼中间套,约126㎡为6、13号楼东西边套,约139㎡为5号楼中间套、东西边套;3. 噪声因素:5、6、13号楼东侧有一定道路噪声影响;13号楼北侧有一定道路噪声影响;5. 价格因素:总价最高在次顶楼,5、6F之间价差约1-2万元,4、5F之间价差约5-6万元,3、4F之间价差约2-3万元。在选择118㎡时,建议选择6号楼,再次选择13号楼;在选择126㎡时,预算充足建议优选6号楼西边套,再次选择13号楼西边套,再次选择6号楼东边套,再次选择13号楼东边套;5、6、13号楼不排斥优选中低楼层;顶楼价格介于2、3F之间,建议优先于2F前选择。摇号房源:3号楼(2-25F)、4、6、7号楼(2-26F)均价:高层精装限价31200元/㎡,装修标准3500元/㎡主力户型:约99㎡户型198套,约105㎡户型25套,约127㎡户型74套,约139㎡户型99套楼盘规划了7幢22-26F高层,外立面采用封阳台式的公建化立面,阳台落地玻璃设计,内部规划了景观水池;小区主出入口设在2号楼东北侧,次出入口设在1号楼西南侧;楼盘西南侧为规划幼儿园,东侧与沈括小学一路之隔,往南约300m为4号线好运街站,与在建星创综合体之间距离约380m;楼盘南侧为在建运翠轩,东南侧待建有一幢办公楼;西侧为待出让地块。东侧设有垃圾收集点、地面停车位、非机动车库出入口;屋顶设有消防水箱;北侧设有地面停车位、消防登高场地;西侧设有地面停车位;西南侧设有变电所;北侧设有地面停车位、消防登高场地;西侧设有非机动车库出入口;西北侧设有化粪池。| 约99㎡、105㎡、127㎡、139㎡选房建议 | →1. 所处位置:约99㎡为3、4、6、7号楼中间套,约105㎡为7号楼西边套,约127㎡为3、4、6号楼西边套,约139㎡为3、4、6、7号楼东边套;2. 采光因素:6、7号楼南侧低楼层有一定采光影响;3. 噪声因素:3、4号楼南侧有一定学校噪声影响;4、7号楼西侧、6、7号楼北侧有一定道路噪声影响;5. 价格因素:总价最高在22F,每层之间价差控制在1-2万元,特殊数字13、14、18F有一定优惠,不介意可考虑。在选择99㎡时,3、6、4、7号楼依次选择,6、7号楼优先中高楼层;在选择127㎡时,建议优选3号楼西边套,再次选择6号楼西边套,再次选择4号楼西边套;在选择139㎡时,建议优选3、4号楼东边套,再次选择6、7号楼;在楼层选择上,建议优选中高楼层,4号楼及3号楼西边套不排斥选择中间楼层;摇号房源:2号楼(2-20F)、3、5号楼(2-19F)、9号楼(2-22F)均价:高层精装限价36100元/㎡,装修标准4000元/㎡主力户型:约139㎡户型75套,约168㎡户型77套| 配套介绍 |
楼盘规划了12幢高层,中间由云门大街分成南北两区;北区配置了露天水系;车行出入口位于1号楼西侧、4、5号楼之间、6、12号楼之间和7号楼南侧;人行出入口位于1号楼西侧、3、4号楼之间、6、12号楼之间和7号楼南侧。楼盘处在火车西站云门西南侧,东南侧为杭师大附属仓前实验中学,西南侧为仓前中心小学。楼盘北侧约100m为铁路,云门大街和西侧杭韵东路规划为下穿隧道。西侧设有地面非机动车停车位;东北侧设有配电房;北侧设有消防登高场地;南侧设有人行出入口、消防登高场地;西侧设有地面非机动车停车位、燃气调压站;东侧设有车行出入口、机动车地下车库出入口、开闭所、配电房、垃圾投放点;西南侧设有地面机动车停车位;东北侧设有地面非机动车停车位;屋顶设有5G基站;南侧设有消防登高场地、防爆波电缆井;西北侧设有化粪池;北侧设有人行出入口、消防登高场地;西侧设有非机动车地下车库出入口、地面非机动车停车位、垃圾收集点。
1. 所处位置:约139㎡为3、9号楼西边套、5号楼东西边套,约168㎡为2号楼东西边套、3、9号楼东边套;3. 噪声因素:3、5号楼北侧、9号楼南侧有一定道路噪声影响;5. 价格因素:2、3、5号楼总价最高在17F,每层之间价差约2-4万元,特殊数字13、14、18F有一定优惠,不介意可考虑;9号楼总价最高在19、20F,每层之间价差约2-3万元,特殊数字13、14、18F有一定优惠,不介意可考虑。在选择139㎡时,建议优选3号楼西边套,再次选择5号楼东西边套,再次选择9号楼西边套;在选择168㎡时,优选2号楼东西边套,以东边套优先;再次选择3号楼东边套,再次选择9号楼东边套;2、3、5、9号楼不排斥优选中间楼层,2号楼西边套建议优选中高楼层;顶楼价格偏高,建议仅优先于3F前选择。均价:精装限价29100元/㎡,装修标准3000元/㎡主力户型:约105㎡户型50套,约128㎡户型25套,约139㎡户型25套验资门槛:冻结资金首套75万,其他100万(参考上期冻资额)楼盘规划了19幢22-26F高层,小区出入口设在5、7号楼之间和16、20号楼之间。楼盘外立面采用包阳台式的公建化立面,且除南侧一排局部架空外,其余楼幢均首层架空;楼盘与2号线良渚站之间距离约500m,西侧良渚一小在建,与永旺城之间距离约1.3km,与未来之光小藤街之间距离约950m。
楼盘东侧为融信澜天,南侧为待出让的良渚客厅商务、商业组团地块,西南侧为和光尘樾,北侧为板块东西主干道之一104国道。
![]()
| 楼幢分析 |
15号楼 →
北侧设有消防登高场地及回车场。
| 约105㎡、128㎡、139㎡选房建议 | →1. 所处位置:均处在15号楼,约105㎡为中间套,约128㎡为西边套,约139㎡为东边套;5. 价格因素:总价最高在20F,中高楼层每层之间价差约1-2万元,中低楼层价差较明显,14F价差明显,不介意可考虑。南侧采光有一定影响,建议优选中高楼层;顶楼价格接近于4F,建议优先于4F前选择。摇号房源:3、25号楼(2-16F)、13、14、19、20号楼(2-17F)均价:精装限价55000元/㎡,装修标准4500元/㎡主力户型:约175㎡户型62套,199㎡户型64套,245㎡户型60套
| 配套介绍 |
楼盘规划了25幢14-17F高层,内部配套有恒温泳池、地下会所等;小区人行出入口设在1、2号楼之间、20、21号楼之间、4号楼北侧、12号楼西侧、16号楼北侧;车行出入口设在20号楼南侧、2号楼南侧。楼盘与5号线萍水街站之间距离约900m,与10号线北大桥站、大悦城之间距离约1km;北侧为登云育才小学,东南侧约500m为杭州师范大学文晖实验学校,西侧为锦绣中学;西南侧为邻里中心,西北侧为天荟,东北侧为在建揽云锦绣里,东南侧为金茂府。南侧设有开闭所、配电房、垃圾收集点、消防登高场地;东侧设有非机动车坡道、地下车库出入口;北侧设有消防登高场地;北侧设有消防登高场地;东侧设有人行出入口;南侧设有车行出入口;西侧设有配电房、地下车库出入口;| 约175㎡、199㎡、245㎡选房建议 | →1. 所处位置:约175㎡为19、20号楼东西边套,约199㎡为13号楼东西边套、14号楼东西边套,约245㎡为3、25号楼东西边套;2. 采光因素:3、14、25号楼南侧低楼层有一定采光影响;3. 噪声因素:19、20号楼南侧、14号楼西侧有一定道路噪声影响;5. 价格因素:3、13、14、20、25号楼总价最高在次顶楼,19号楼总价最高在15F或及16F,往下至7F每层之间价差不大,特殊数字13、14F有一定优惠,不介意可考虑。在选择175㎡时,优选20号楼东边套,再次选择19号楼东边套,再次选择20号楼西边套,再次选择19号楼西边套;在选择199㎡时,优选13、14号楼东边套,再次选择13号楼西边套,再次选择14号楼西边套;在选择245㎡时,优选25号楼东边套,再次选择25号楼西边套,再次选择3号楼东西边套;在南侧采光有一定影响时,优选中高楼层;顶楼价格介于4、5F,建议优先于4F前选择。均价:精装限价33400元/㎡,装修标准3500元/㎡主力户型:约108㎡户型28套,约129㎡户型14套,约139㎡户型14套验资门槛:冻结资金首套90万,二套120万,一次性300万楼盘规划了7幢13-14F高层、1幢12F公租房10号楼和2幢10层办公楼;小区出入口设在1、6号楼之间和9、10号楼之间。
楼盘在地铁四期中预计可近享18号线,与杭师大东城教育集团东城实验学校之间距离约450m。
楼盘东侧靠近河道,东北角规划公园绿地、社会停车场用地,北侧为多立方公寓,西侧为规划商业、住宅用地,南侧为杭海路。南侧设有地面机动车停车位、垃圾收集点、消防登高场地。| PART 3 |
一房一价、噪声表、日照表、选房建议
| 约108㎡、129㎡、139㎡选房建议 | →1. 所处位置:均处在5号楼,约108㎡为中间套,约129㎡为西边套,约139㎡为东边套;5. 价格因素:总价最高在12F,每层之间价差约1-2万元,13F或及14F有一定优惠,不介意可考虑。在南侧有一定采光影响的情况下,优选中高楼层;顶楼价格相当于5F,可优先于4F前选择。均价:精装限价44400元/㎡,装修标准4000元/㎡主力户型:约129㎡户型28套,136㎡户型56套,139㎡户型28套,165㎡户型28套| 配套介绍 |
楼盘规划了8幢15F高层和1幢公租房2号楼,内部配套了蓝宝石景观水池等。楼盘西南侧为李宁体育公园,与1号线七堡站之间距离约900m,与澎诚中学之间距离约500m,楼盘东侧为规划幼儿园、东南侧为规划小学;西侧为小区出入口;北侧设有机动车停车位、非机动车停车位、垃圾房、开闭所、燃气调压站、生化池;南侧设有消防登高场地;东侧设有非机动车地下车库出入口、垃圾收集点;北侧设有消防登高场地;北侧为小区出入口,设有消防登高场地;屋顶设有消防水箱;西侧设有机动车地下车库出入口。| 约129㎡、136㎡、139㎡、165㎡选房建议 | →1. 所处位置:约129㎡为4号楼中间套,约136㎡为8、9号楼东西边套,约139㎡为4号楼东西边套,约165㎡为5号楼东西边套;2. 采光因素:5、9号楼南侧、4号楼东西边套低楼层有一定采光影响;3. 噪声因素:8、9号楼西侧、4号楼北侧有一定道路噪声影响;5. 价格因素:总价最高在12-14F,每层价差约2-4万元。在选择136㎡、139㎡时,建议优选9号楼东边套,再次选择4号楼东西边套,再次选择9号楼西边套,再次选择8号楼东西边套;在选择165㎡时,建议优选5号楼西边套,再次选择5号楼东边套;在高楼层采光视野较好的情况下,建议优选中高楼层,尤其是5号楼、9号楼东边套、4号楼东西边套;顶楼价格介于4、5F,建议优先于4F前选择。
文/阿寻 编辑/阿寻
本文相关内容不排除因政府相关规划、规定及开发商未能控制的原因发生变化。以政府部门最终批准文件图则、(商品房买卖合同)及附件等协议为准。开发商保留对宣传资料修改的权利,敬请留意最新资料。本文面积如无特殊说明均为建筑面积。
赢取条件:留言,且被移入精选、点赞数超过5,请加房叔个人微信hangzhoufangshu10获取。
PS:更多往期回顾可进入房叔公众号后台,点击、右上角搜索键(放大镜),搜索楼盘名,或相关词条
点个在看,让房叔更好看。![]()