共5盘预售公示、登记,列表见文末↓
河语光年周边处在整建之中,与京杭运河距离较近,有着万科品牌背书;整盘精装3.8万元/㎡,收官套数为298套,主力户型约108-165㎡,总价起步约379万元。
临之锦处在较为成熟的临平城区,与妇幼保健院、9号线临平站、临平银泰城等配套均较近;洋房毛坯均价约2.9万元/㎡,一次梭哈套数为52套,主力户型约90-132㎡,总价起步约227万元。
秦望府所处地段属富阳核心,由滨江、金茂联手打造的改善项目;精装均价约3.2万元/㎡,加推63套,主力户型约186㎡,总价起步约524万元。
河语光年
| PART 1 |
摇号信息
摇号房源:1号楼(2-26F)、6号楼(1-26F)、7号楼(2-25F)、8号楼(1-24F)
均价:高层精装限价38000元/㎡,装修标准4000元/㎡
主力户型:约105㎡户型101套,127㎡户型101套,139㎡户型48套,165㎡户型48套
无房户倾斜:30%比例,约89户
人才倾斜:15%比例,约44户
验资门槛:冻结资金首套125万,其他250万
登记时间:2021.12.30-2022.1.1
| PART 2 |
配套介绍
楼盘规划了14幢高层,其中西南角2号楼为自持。
小区车行出入口设在1、4号楼之间和9、12号楼之间,人行出入口设在6、9号楼之间、2号楼东侧和14号楼西南侧。
楼盘最大亮点是西侧靠近大运河,交通上临近即将建成通车的省内首个双层隧道丽水路。
楼盘东侧为在建上河公元及幼儿园、上海世外领办公办小学;南侧为侯圣路,对面为在建云澜天第;西侧为丽水路,对面目前为谢村渣土中转码头;北侧为金昌路及昌运桥引桥。
| PART 3 |
楼幢&户型分析
| 楼幢分析 |
1号楼 →
北侧为小区车行出入口、消防出入口、机动车地下车库出入口、公用变电所、消防登高场地;
西侧为非机动车地下车库出入口、公用变电所、开闭所、隔油池、防爆波电缆井;
西侧裙房设有可做餐饮的商业;
南侧设有地面机动车停车位、化粪池;
东侧设有地面机动车停车位;
6号楼 →
北侧为小区人行出入口;
东侧商业地面机动车停车位;
南侧设有公用变电所、消防登高场地;
南侧裙房设有可做餐饮的商业;
7号楼 →
南侧设有公用变电所;
北侧设有消防登高场地;
8号楼 →
南侧设有公用变电所;
北侧设有消防登高场地。
| 户型分析 |
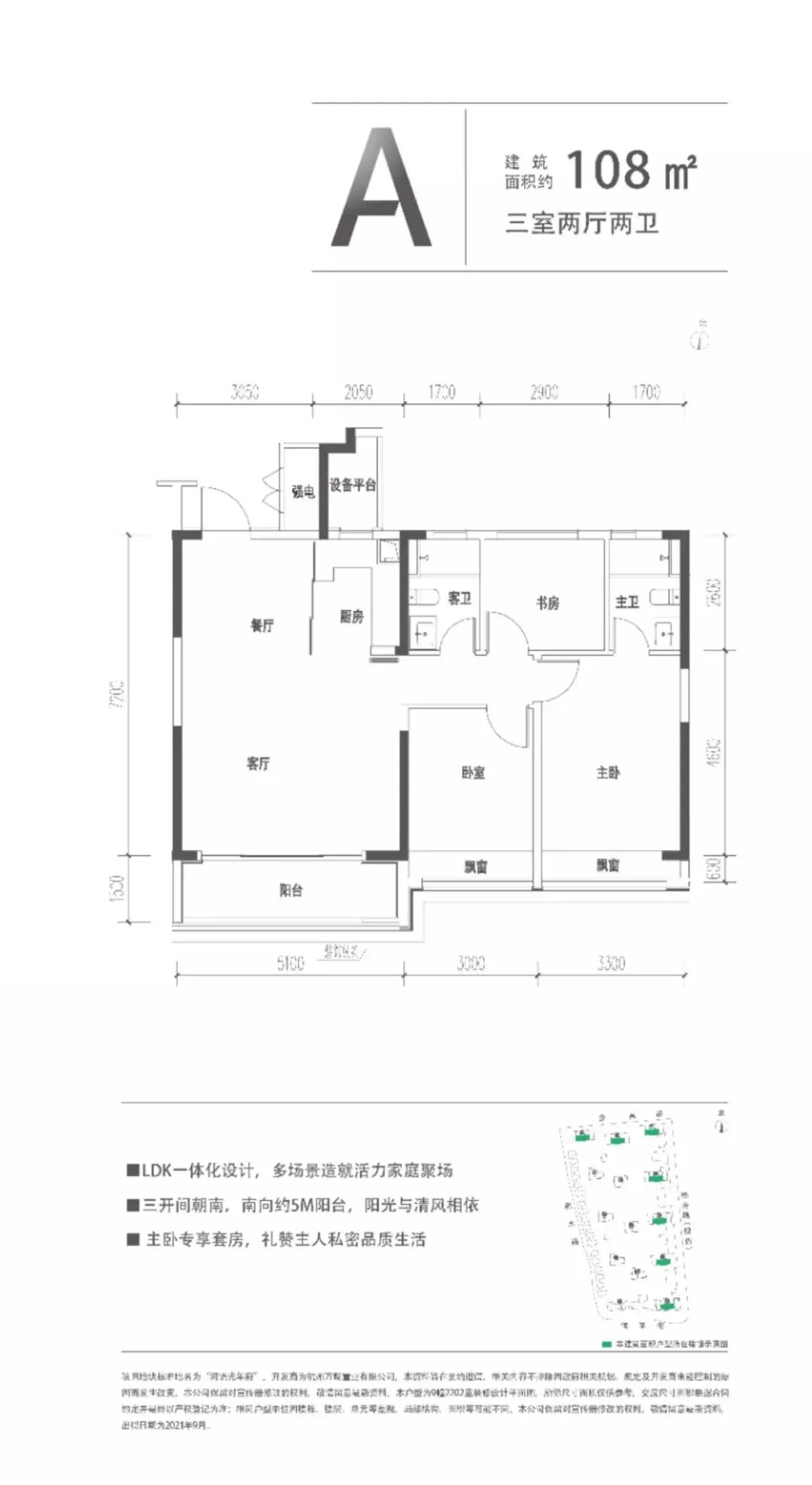
高层约108㎡三房两卫户型 →
位置:1、6号楼中间套
套数:101套
价格:378.52-426.15万元
优点:三开间朝南;大面宽客厅;南向带大面宽阳台;半开放式厨房;
缺点:北侧有消防走廊,隐私性以及通透性较差。
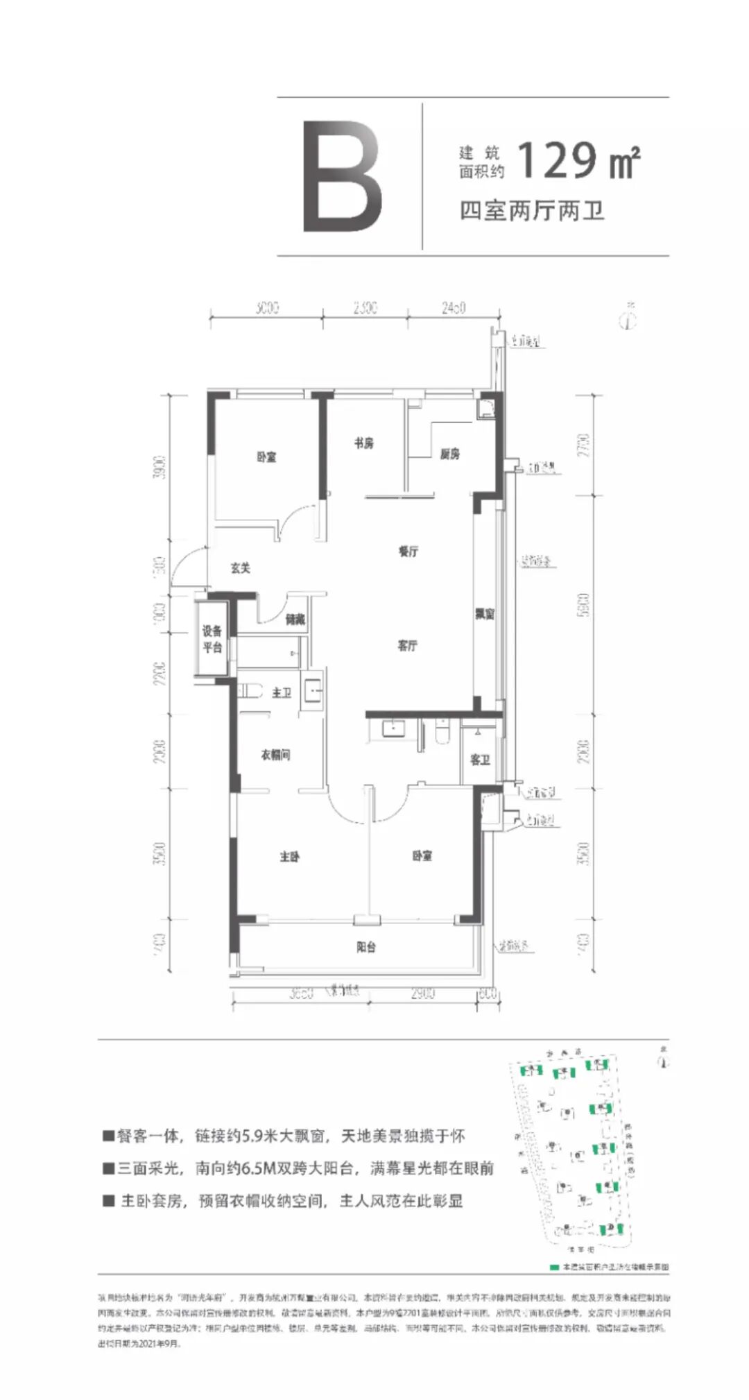
高层约129㎡四房两卫户型 →
位置:1、6号楼东西边套
套数:101套
价格:449.68-509.15万元
优点:南向带大面宽阳台;U型厨房;小储藏间设计;公卫干湿分离;
缺点:两房朝北;书房较小。
高层约139㎡四房两卫户型 →
位置:8号楼西边套
套数:24套
价格:481.15-545.03万元
优点:三开间三房朝南;南向带大面宽阳台;U型厨房;公卫干湿分离;独立玄关设计;
缺点:无明显缺点。
高层约139㎡四房两卫户型 →
位置:8号楼东边套
套数:24套
价格:455.44-539.67万元
优点:四开间三房朝南;南向带大面宽阳台;U型厨房;独立玄关设计;
缺点:无明显缺点。
高层约165㎡四房三卫户型 →
位置:7号楼东西边套
套数:48套
价格:605.73-642.04万元
优点:三开间三房朝南;南向带大面宽阳台;U型厨房;
缺点:主卫为暗卫。
| PART 4 |
一房一价、噪声表、日照表、选房建议
| 高层约108㎡、129㎡、139㎡、165㎡户型选房建议 | →
1. 所处位置:约108㎡为1、6号楼中间套,约129㎡为1、6号楼东西边套,约139㎡为8号楼东西边套,约165㎡为7号楼东西边套;
2. 采光因素:7号楼东西侧有一定采光影响;
3. 噪声因素:1号楼东侧、南侧、6号楼东侧、8号楼西侧有一定道路噪声影响;
4. 户型因素:通透性上边套优于中间套;
5. 价格因素:1、6、7号楼总价最高在22F,两层之间价差1-3万元不等,14、13或及12F价格一致;
8号楼总价最高在21F,两层之间价差1-2万元不等,12、13、14F价格一致。
在楼幢选择上,1、6号楼所含户型一致,优选6号楼,噪声影响相对较小;鉴于上下楼层价差较小,高楼层采光视野好,建议从次顶楼往下选;1号楼南侧采光影响较小,可优选低噪声的中低楼层,但鉴于底商可做餐饮,不宜选择过低楼层;
1、6号楼西边套高于东边套约3-4万元,建议优选噪声影响相对较小的西边套;
7号楼西边套高于东边套约11-12万元,预算充足建议优选景观优势明显的西边套;
8号楼西边套高于东边套约5万元,选择高楼层建议优选西边套,低楼层可优选东边套;
1号楼顶楼价格相当于10F,价格偏高,做3F后的备选;6、7、8号楼顶楼价格相当于7、8、9F,价格偏高,建议优先于5F前选择。
临之锦
| PART 1 |
摇号信息
摇号房源:1号楼(1-7F)、2号楼(2-7F)
均价:毛坯均价约29000元/㎡
主力户型:约90㎡户型26套,97㎡户型6套,106㎡户型6套,109㎡户型6套,132㎡户型6套,特殊户型89㎡1套,117㎡1套
无房户倾斜:50%比例,约26户
人才倾斜:10%比例,约5户
验资门槛:冻结资金首套60万,二套120万,一次性200万
登记时间:2022.1.4-2022.1.6
| PART 2 |
配套介绍
楼盘规划了2幢1-7F洋房,小区出入口设在2号楼西北侧;交付时间暂定在2022年10月底。
楼盘与9号线临平站、临平银泰城之间距离约600m,与信达外国语学校、临平第一小学、水景公园、人民公园距离均较近。
楼盘东侧建有小型公园,南侧有一小块菜地,西侧为派出所及停车场,北侧靠近人民大道,斜对面为妇幼保健院。
| PART 3 |
楼幢&户型分析
| 楼幢分析 |
1号楼 →
南侧设有机动车地下车库出入口;
2号楼 →
北侧靠近人民大道。
| 户型分析 |
约90㎡三房一卫户型 →
位置:1、2号楼中间套西单元
套数:13套
价格:226.55-276.89万元
优点:公卫干湿分离;三房功能性较好;
缺点:独卫;中间房间尺寸较小。
约90㎡三房一卫户型 →
位置:1、2号楼中间套东单元
套数:13套
价格:226.55-276.89万元
优点:公卫干湿分离;三房功能性较好;
缺点:独卫,次卧采光较差。
约97㎡两房一卫户型 →
位置:2号楼东边套
套数:6套
价格:271.74-323.18万元
优点:两房朝南;全明户型;
缺点:功能性较差。
约106㎡三房两卫户型 →
位置:1号楼西边套
套数:6套
价格:285.74-337.6万元
优点:两房朝南;U型厨房;
缺点:公卫为暗卫。
约109㎡三房两卫户型 →
位置:2号楼西边套
套数:6套
价格:300.02-341.48万元
优点:两房朝南;U型厨房;
缺点:公卫为暗卫。
约132㎡两房两卫户型 →
位置:1号楼东边套
套数:6套
价格:356.21-419.54万元
优点:U型厨房;餐客厅尺寸较大;
缺点:功能性较差。
| PART 4 |
一房一价、噪声表、选房建议
| 约90㎡、97㎡、106㎡、109㎡、132㎡户型选房建议 | →
1. 所处位置:约90㎡为1、2号楼中间套,约97㎡为2号楼东边套,约106㎡为1号楼西边套,约109㎡为2号楼西边套,约132㎡为1号楼东边套;
2. 采光因素:南侧采光影响较小;
3. 噪声因素:1号楼北侧道路噪声较大;
4. 户型因素:通透性上边套优于中间套;
5. 价格因素:总价最高在次顶楼,每层之间价差较明显,3、4F价格一致。
在楼幢选择上,建议优选1号楼,其次选择2号楼;在户型选择上,90㎡功能性相对较好,总价可控,做优选,其中东单元户型布局相对合理,做更优选;
106㎡与109㎡格局相似,可优选面积较小的106㎡;在南侧采光影响较小的情况下,建议从3F往上选;顶楼建议做3F前的选择。
秦望府
| PART 1 |
摇号信息
摇号房源:1号楼(1-32F)
均价:高层精装均价约31998.65元/㎡,装修标准3500元/㎡
主力户型:高层约186㎡户型63套
无房户倾斜:50%比例,约32户
人才倾斜:10%比例,约6户
验资门槛:冻结资金首套180万,其他360万
登记时间:2021.12.31-2022.1.2
| PART 2 |
配套介绍
| 楼幢分析 |
1号楼 →
北侧设有消防应急出入口、消防登高场地、燃气调压站;
西侧设有开闭所。
| 户型分析 |
高层约186㎡四房三卫户型 →
位置:1号楼东西边套
套数:63套
价格:523.84-605.8万元
优点:三开间三房朝南;南向带大面宽阳台;U型厨房;主卧带独立衣帽间设计;
缺点:主卫为暗卫。
| PART 4 |
一房一价、噪声表、选房建议
| 高层约186㎡户型选房建议 | →
1. 所处位置:约186㎡为1号楼东西边套
2. 采光因素:采光影响较小;
3. 噪声因素:南侧、东侧有一定道路噪声影响;
4. 户型因素:东西边套户型一致;
5. 价格因素:总层数为32F,总价最高在10F以上至次顶楼,再往下每层之间价差1-10万元不等。
高楼层采光、视野更佳,不介意高楼层可从次顶楼往下选;介意高楼层建议从20F往上选;顶楼价格偏高,在南侧采光影响较小的情况下,建议在3F之前优选。
| 今日公示楼盘 |
| 今日登记楼盘 |
-END-
文/阿寻 编辑/阿寻
本文相关内容不排除因政府相关规划、规定及开发商未能控制的原因发生变化。以政府部门最终批准文件图则、(商品房买卖合同)及附件等协议为准。开发商保留对宣传资料修改的权利,敬请留意最新资料。本文面积如无特殊说明均为建筑面积。
房叔说 | |
房叔选房 |
PS:更多往期回顾可进入房叔公众号后台,点击、右上角搜索键(放大镜),搜索楼盘名,或相关词条
点个在看,让房叔更好看。