共23盘预售公示、登记,列表见文末↓
顶豪期待已久的封面级项目杭州国际金融中心终于领证,基本顶格社保+5年限售没跑了;人才资格短社保都需要关注报名情况;
整盘精装限价6.98万元/㎡,首开232套,主力户型约158-192㎡及顶跃350㎡、405㎡,总价起步约1008万元。
主城少有的全洋房、小高层的楼盘春宸上府首开,规划了15幢可售住宅,内部配套有中央泳池、集中绿地等;
楼盘与6号线枸桔弄之间步行可达;西南侧靠近在建幼儿园,与采荷三小笕正小学之间近距离可达;
整盘精装限价约4.3万元/㎡,首开127套,主力户型约126-139㎡,总价起步约403万元。
创造过好几次低中签率及限售的智慧网谷迎来了滨江造改善盘滨萃悦府,规划了11幢可售高层,内部配套有景观水池;
楼盘近距4号线皋亭坝站、在建文澜二小、在建慧澜中学,近邻红缨二幼;
整盘精装限价3.6万元/㎡,首开288套,主力户型约128-187㎡,总价起步约402万元。
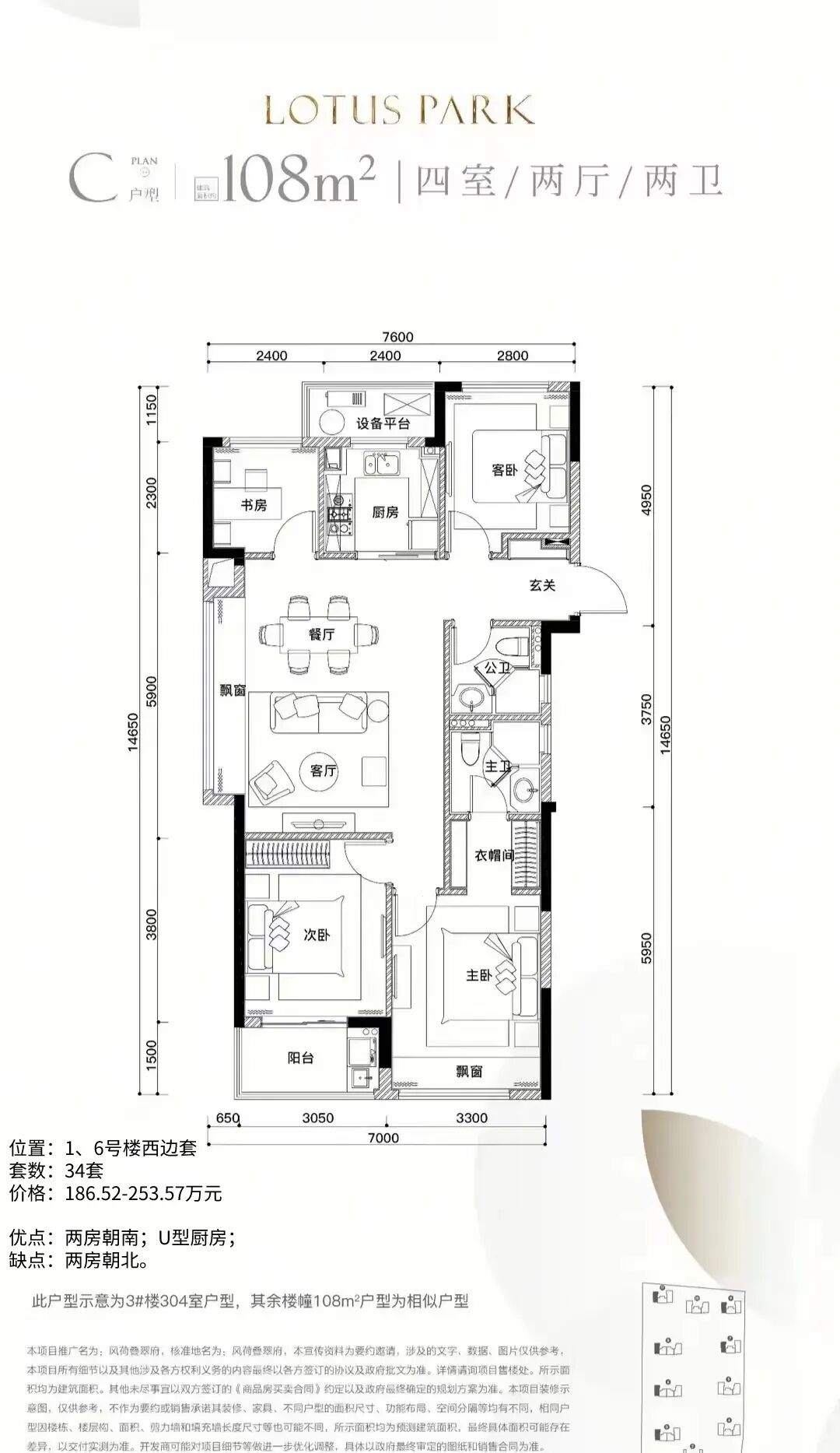
风荷叠翠府东侧紧挨河道及绿化,由滨江品牌打造;规划了10幢可售高层,内部配套有景观水池;
楼盘与9号线荷禹路站、万宝城之间步行距离约900m,周边环伺余杭高级中学、育才小学(荷花校区)等学校;
整盘精装限价2.26万元/㎡,首开185套,主力户型约95-130㎡,总价起步约163万元。
钱二纯新盘观翠揽月轩南侧有一定看到钱塘江的视野,在这波高预算楼盘分流中属易上车楼盘;非强社保积极关注;
楼盘规划了14幢可售高层,内部配套有景观水池;楼盘近距9号线御道站、御道幼儿园、钱江外国语学校、钱江贝赛思实验学校等及新增开办的天长小学观潮校区;
整盘精装限价6.75万元/㎡,首开326套,主力户型约144-195㎡,总价起步约699万元。
花栖云境里与5号线姑娘桥站之间步行可达;整盘精装限价2.56万元/㎡,加推120套,主力户型约100-116㎡,总价起步约229万元。
山澜桂语有着绿城品牌背书,且规划有89㎡小户型;整盘精装限价3.2万元/㎡,加推140套,主力户型约100-124㎡,总价起步约293万元。
之彩城属瓜沥未来社区组团,商业、镇政府等均处周边;整盘精装限价1.7万元/㎡,加推103套,主力户型约97-129㎡,总价起步约141万元。
临望宸府临近萧山二中,出行可借助风情大道及后期的时代大道;整盘精装限价1.61万元/㎡,加推154套,主力户型约97-128㎡,总价起步约135万元。
南部新城的枫翠岚湾由滨江打造,规划了5幢可售高层,近邻高桥小学(南江校区),350m外还有朝晖小学;
整盘精装限价3万元/㎡,首开214套,主力户型约96-125㎡,总价起步约234万元。
桃源的棠源美宸里与4号线桃源街站、宝龙广场距离较近;规划了11幢高层,近距福山外国语小学、斜对角桃源中学;
整盘精装限价3.4万元/㎡,首开400套,主力户型约98-120㎡,总价起步约271万元。
康桥运晓花望府南侧大片处在整建之中,楼盘规划了7幢高层,近距新城实验幼儿园,一路之隔文渊小学;
整盘精装限价2.95万元/㎡,首开188套,主力户型约100-128㎡,总价起步约258万元。
翠揽云境可享钱二发展一定红利,规划了23幢可售高层,与1号线七堡站、七堡花园城、澎汇小学步行可达;
整盘精装限价4.44万元/㎡,首开278套,主力户型约106-146㎡,总价起步约437万元。
杭州国际金融中心
| PART 1 |
摇号信息
摇号房源:3号楼(4-29F)、4号楼(4-37F)
均价:精装限价69800元/㎡,装修标准6000元/㎡
主力户型:约158㎡户型114套,177㎡户型52套,192㎡户型62套,顶跃405㎡2套,350㎡2套
无房户倾斜:预计30%比例,约70户
人才倾斜:预计15%比例,约35户
验资门槛:冻结资金首套360万,其他720万
登记时间:6.18-6.20
| PART 2 |
配套介绍&楼幢、户型分析
| 配套分析 |
项目住宅全部在汇东区块,共7幢超高楼;
楼盘与6、9号线换乘站三堡站之间距离约240m;周边近邻钱江贝赛思国际学校、钱江外国语实验学校等。
更多详细信息可参考:杭州豪宅天花板K11,IFC对撞,怎么选?| 房叔说No.467
| 楼幢分析 |
3号楼 →
北侧设有地面机动车停车位;南侧二楼平台设有消防登高场地及回车场;
4号楼 →
西侧设有非机动车地下车库出入口、化粪池;北侧设有机动车停车位、化粪池。
| 户型分析 | (点击图片放大观看)
| PART 3 |
一房一价、噪声表、选房建议
| 约158㎡、177㎡、192㎡户型选房建议 | →
1.所处位置:约158㎡为3号楼东边套、东侧中间套、4号楼中间套,约117㎡为3号楼西边套、西侧中间套,约192㎡为4号楼东西边套;
2.采光因素:3号楼南侧有一定采光和视野影响;
3.噪声因素:3、4号楼北侧有一定道路噪声影响;
4. 户型因素:通透性上边套优于中间套;
5. 价格因素:3、4号楼各自整体价差不大;4号楼29F有明显价差。
楼盘属于高端改善,景观、视野着重考虑;4号楼南侧采光和视野相对较好,4号楼西侧视野最佳;选房原则非常简单,看个人预算情况,景观视野优先,大户型优先,高楼层优先,顶跃最佳。
春宸上府
| PART 1 |
摇号信息
摇号房源:2、12号楼(1-9F)、6号楼(2-11F)
均价:精装限价42640元/㎡,装修标准4000元/㎡
主力户型:约126㎡户型68套,139㎡户型53套,特殊户型112㎡4套,126㎡2套
无房户倾斜:30%比例,约38户
人才倾斜:15%比例,约19户
验资门槛:冻结资金首套150万,其他300万
登记时间:6.16-6.18
| PART 2 |
配套介绍&楼幢、户型分析
| 配套介绍 |
楼盘规划了16幢7-11F洋房、小高层住宅;在西北角还有1幢公租房;内部配套有中央泳池、集中绿地等;
小区车行出入口设在5、6号楼之间和10、15号楼之间;人行主出入口设在5、6号楼之间。
楼盘与6号线枸桔弄之间距离约1km;西南侧靠近在建幼儿园,与采荷三小笕正小区之间距离约300m。
楼盘东南侧为蔡阳路,对面为玖樟台;西南侧为在建幼儿园及邻里中心,再往南为在建春来晓园;西北侧暂为空地,再往外有条货运铁路;东北侧开创路未通。
| 楼幢分析 |
2号楼 →
西北侧设有消防车行出入口;北侧设有配电房、消防登高场地;
6号楼 →
南侧为车行出入口、人行出入口;屋顶设有消防水箱;东北侧设有隔油池;东侧设有化粪池;
12号楼 →
北侧设有配电房、垃圾收集点。
| 户型分析 | (点击图片放大观看)
| PART 3 |
一房一价、噪声表、日照表、选房建议
| 约126㎡、139㎡户型选房建议 | →
1.所处位置:约126㎡为2号楼东西边套、中间套,约139㎡为6、12号楼东西边套、12号楼中间套;
2.采光因素:南侧采光影响较小;
3.噪声因素:2号楼南侧、西侧有一定道路噪声影响;6、12号楼东侧有一定道路噪声影响;
4. 户型因素:通透性上边套优于中间套;
5. 价格因素:总价最高在次顶楼,往下至5F每层之间价差约1-2万元,再往下价差明显。
选择小户型时,2号楼南侧、西侧靠近道路,建议从东往西、从高往低选;
选择大户型时,6号楼仅1个单元,相对12号楼较纯粹,建议优选6号楼西边套噪声相对较小,次选12号楼西边套;6、12号楼建议从西往东、从高往低选;6号楼屋顶设有消防水箱,介意的选择顶楼时优先选择12号楼;
顶楼价格介于2、3F之间,优先于3F前选择。
滨萃悦府
| PART 1 |
摇号信息
摇号房源:2、3、9号楼(2-24F)、5号楼(2-20F)、8号楼(1-24F)
均价:精装限价36000元/㎡,装修标准4000元/㎡
主力户型:约128㎡户型65套,139㎡户型130套,168㎡户型47套,187㎡户型46套
无房户倾斜:30%比例,约86户
人才倾斜:15%比例,约43户
验资门槛:冻结资金首套140万,二套280万,一次性400万
登记时间:6.16-6.18
| PART 2 |
配套介绍&楼幢、户型分析
| 配套介绍 |
楼盘规划了12幢20-24F高层,其中包括公租房1号楼;小区出入口设在南侧1、2号楼之间及西侧4、7号楼之间;内部配套有景观水池。
楼盘与4号线皋亭坝站之间距离约750m;北侧近邻红缨二幼,东侧与在建文澜二小距离约300m,北侧与在建慧澜中学之间距离约420m。
楼盘东侧为深特发项目,南侧靠近汽车4S店和万科智谷,西侧为上塘宸章,北侧为幼儿园及空地。
| 楼幢分析 |
2号楼 →
西侧设有配电房、垃圾房、地下非机动车道;东南侧为小区出入口;南侧设有地面非机动车停车位;
3号楼 →
西南侧设有开闭所;南侧设有配电房;
5号楼 →
东南侧设有地面机动车位;
8号楼 →
北侧设有配电房;东侧设有地下非机动车道;东北侧设有垃圾收集点;
9号楼 →
东侧设有配电房、地下非机动车道;北侧设有配电房。
| 户型分析 | (点击图片放大观看)
| PART 3 |
一房一价、噪声表、日照表、选房建议
| 高层约128㎡、139㎡、168㎡、187㎡户型选房建议 | →
1.所处位置:约128㎡为2、3、5号楼中间套,约139㎡为2、3、5号楼东西边套,约168㎡为8号楼东西边套,约187㎡为9号楼东西边套;
2.采光因素:8号楼西侧、9号楼东侧低楼层有一定采光影响;
3.噪声因素:2、3号楼西侧、5、8、9号楼东侧有一定道路噪声影响;
4. 户型因素:通透性上边套优于中间套;
5. 价格因素:总价最高在次顶楼,往下每层之间价差约2-5万元。
小户型集中在2、3、5号楼,3号楼正对南侧高办公楼,2号楼有部分时间段影响,5号楼东侧道路影响较大;中间套建议优选5号楼,其次选择2号楼,再次选择5号楼;均优先选择中高楼层;
边套优先选择5号楼西边套;其次选择2号楼东边套、3号楼东边套;再次选择5号楼东边套;再次选择2、3号楼西边套;均优先选择中高楼层;
大户型集中8、9号楼;8号楼为168㎡四房户型,9号楼为187㎡五房户型,具体户型看个人需求;单就位置,9号楼相对好些,噪声影响小些;均优先选择西边套;
8、9号楼优选采光视野较好的中高楼层;
2、3、5、8、9号楼顶楼价格介于5、6F之间,5、8、9号楼优先于3F前选择,2、3号楼优先于5F前选择。
风荷叠翠府
| PART 1 |
摇号信息
摇号房源:1、6号楼(1-17F)、5号楼(2-18F)
均价:精装限价22600元/㎡,装修标准3000元/㎡
主力户型:约95㎡户型66套,105㎡户型17套,108㎡户型34套,119㎡户型34套,130㎡户型34套
无房户倾斜:50%比例,约95户
人才倾斜:20%比例,约37户
验资门槛:冻结资金首套50万,其他100万
登记时间:6.17-6.19
| PART 2 |
配套介绍&楼幢、户型分析
| 配套介绍 |
楼盘规划了11幢12-18F高层,其中2号楼为公租房;小区出入口设在3、6号楼之间和6、8号楼之间;内部配套有景观水池。
楼盘与9号线荷禹路站、万宝城之间距离约900m,南侧约750m为育才小学(荷花校区),西侧一路之隔为余杭高级中学。
楼盘东侧靠近河道景观,南侧为星火新苑,西侧靠近余杭高级中学,北侧为北沙西路,对面为中铁逸都。
| 楼幢分析 |
1号楼 →
南侧设有机动车地下车库出入口;北侧设有变配电房、消防登高场地及回车场、垃圾收集点;西侧设有燃气调压站;
5号楼 →
南侧设有变配电房、垃圾收集点;北侧设有消防登高场地;屋顶设有消防水箱;
6号楼 →
北侧为出入口;南侧为机动车地下车库出入口、地面机动车停车位、变配电房、消防登高场地;屋顶设有消防水箱。
| 户型分析 | (点击图片放大观看)
| PART 3 |
一房一价、噪声表、日照表、选房建议
| 高层约95、105㎡、108㎡、119㎡、130㎡户型选房建议 | →
1.所处位置:约95㎡为1、6号楼中间套,约105㎡为5号楼中间套,约108㎡为1、6号楼西边套,约119㎡为1号楼东边套、5号楼西边套,约130㎡为5、6号楼东边套;
2.采光因素:5、6号楼南侧低楼层有一定采光影响;
3.噪声因素:1号楼东侧、6号楼西侧有一定道路噪声影响;
4. 户型因素:通透性上边套优于中间套;
5. 价格因素:除5号楼东边套总价最高在次顶楼及下两层,其余楼幢总价最高在次顶楼,往下每层之间价差约1-3万元。
在选择中间套95㎡时,建议优选6号楼,从东往西选;
在选择边套108㎡时,建议优选6号楼;在选择边套118㎡时,5号楼西边套总价高于1号楼东边套约11万元,优选1号楼东边套中高楼层,再次选择5号楼西边套;
在选择130㎡时,5号楼东边套高于6号楼东边套约5万元,预算充足优选5号楼东边套中高楼层,其次选择6号楼东边套;
高楼层采光视野较好,1、5、6号楼均建议优选中高楼层;预算有限1号楼不排斥选择中低楼层;
顶楼价格基本相当于5F,建议优选于3F前选择。
观翠揽月轩
| PART 1 |
摇号信息
摇号房源:1、19号楼(2-22F)、2号楼(1-25F)、3、15号楼(2-25F)、16号楼(1-24F)
均价:精装限价67500元/㎡,装修标准6000元/㎡
主力户型:约144㎡户型48套,172㎡户型182套,198㎡户型48套,248㎡户型48套
无房户倾斜:30%比例,约98户
人才倾斜:15%比例,约48户
验资门槛:冻结资金首套180万,二套360万,一次性500万
登记时间:6.17-6.20
| PART 2 |
配套介绍&楼幢、户型分析
| 配套分析 |
楼盘规划了14幢22-25F高层,此外还有3幢自持4、6、7号楼,公租房17、18号楼;内部配套有景观水池。
小区出入口设在1、19号楼之间,次出入口设在4、6号楼之间。
楼盘与9号线御道站之间距离约550m,周边较近的学校有御道幼儿园、钱江外国语学校、钱江贝赛思实验学校等及新增开办的天长小学观潮校区。
楼盘东北侧为行政办公规划用地;东南侧为商业、商务规划用地;西南侧与杭甬高速之间规划有绿地;西北侧为中小学规划用地。
| 楼幢分析 |
1、2、3、19号楼西侧靠近道路,3号楼东侧靠近道路。
| 户型分析 | (点击图片放大观看)
| PART 3 |
一房一价、噪声表、选房建议
| 约144㎡、172㎡、198㎡、248㎡户型选房建议 | →
1.所处位置:约144㎡为3号楼中间套,约172㎡为3号楼东西边套,及1、2、19号楼东西边套,约198㎡为16号楼东西边套,约248㎡为15号楼东西边套;
2.采光因素:1、2、3、15、16、19号楼西侧稍有采光影响;15、16号楼东侧稍有采光影响;
3.噪声因素:1、2、3、19号楼西侧有一定道路噪声影响;3号楼东侧有一定道路噪声影响;
4. 户型因素:通透性上边套优于中间套;
5. 价格因素:总价最高在次顶楼或及下一层,整体价差不大。
整体选房原则:优先选择远离西南侧高速房源;优先选择靠近园区中央房源,所有楼幢优先选择东边套;
在选择小户型144-172㎡时,优选1、2、19号楼东边套,从北往南选;再次选择3号楼东西边套;再次选择1、2、19号楼西边套,从北往南选;
在选择大户型198-248㎡,15、16号楼优选东边套,有一定园区景观优势;
1、2、3、15、16、19号楼优选采光视野好的中高楼层;顶楼价格偏高,优先于3F前选择。
花栖云境里
| PART 1 |
摇号信息
摇号房源:1、2号楼(2-16F)
均价:高层精装限价25600元/㎡,装修标准3000元/㎡
主力户型:约100㎡户型60套,116㎡户型60套
无房户倾斜:50%比例,约60户
人才倾斜:预计10%比例,约12户
验资门槛:高层精装均价25600元/㎡,装修标准3000元/㎡(参考上期冻资额)
登记时间:预计6.18-6.20
| PART 2 |
配套介绍&楼幢、户型分析
| 配套分析 |
楼盘规划了10幢16-18F高层和1幢公租房3号楼、1幢自持12号楼,可售套数为672套。
小区出入口设在1号楼南侧和12号楼北侧,后续去往地铁站从北门进出更为方便。
楼盘与地铁5号线姑娘桥之间步行约10分钟,西侧与03省道高架之间约40m。
楼盘东侧目前为厂房与空地,后续为商业商务用地;南侧目前为厂房及村居;西侧靠近03省道高架;北侧为萧明线,对面为安置房,再往北就是彩虹天空之城。
| 楼幢分析 |
1号楼 →
南侧为小区出入口,设有地面机动车停车位;西侧为人行出入口,设有机动车地下车库出入口;北侧设有消防登高场地,裙房设有可餐饮商业;东北侧设有隔油池;西北侧设有垃圾投放点;
2号楼 →
东侧为人行出入口,设有机动车地下车库出入口;西南侧设有地面非机动车停车位;西侧裙房设有可餐饮商业;北侧设有消防登高场地。
| 户型分析 | (点击图片放大观看)
| PART 3 |
一房一价、噪声表、选房建议
| 约100㎡、116㎡户型选房建议 | →
1.所处位置:均处在1、2号楼,约100㎡为中间套,约116㎡为东西边套;
2.采光因素:南侧采光影响较小;
3.噪声因素:1、2号楼南侧、1号楼东侧有一定道路噪声影响;
4. 户型因素:通透性上边套优于中间套;
5. 价格因素:总价最高在次顶楼,每两层之间价差约1-3万元,14F价差较明显,不介意可考虑。
在选择中间套时,鉴于楼盘西侧靠近03省道高架,优选1号楼;
在选择边套时,优选1号楼西边套、2号楼东边套,其次选择1号楼东边套,再次选择2号楼西边套;
鉴于1、2号楼附近裙房设有可餐饮的商业,优选中高楼层;顶楼价格介于4、5F,建议优先于4F选择。
山澜桂语
| PART 1 |
摇号信息
摇号房源:10号楼(3-19F)、11号楼(2-19F)
均价:精装限价32000元/㎡,装修标准3500元/㎡
主力户型:约100㎡户型70套,124㎡户型70套
无房户倾斜:50%比例,约70户
人才倾斜:预计10%比例,约14户
验资门槛:冻结资金首套70万,二套150万,一次性250万(参考上期冻资额)
登记时间:预计6.18-6.20
| PART 2 |
配套介绍&楼幢、户型分析
| 配套分析 |
楼盘规划了13幢15-19F高层,共824套房源,其中东北角15号楼为自持楼幢。
小区主出入口设在7、13号楼之间,次出入口设在11、12号楼之间。
楼盘东侧为高新五路,与长山较近;北侧为海塘路,及长山村;东北侧有待拆空房,在远处有寺庙及医院、学校;西侧为规划居住用地;南侧为规划河道、规划横一路,及在建安置房;东南侧在建安置房红白馆。
| 楼幢分析 |
10号楼 →
北侧设有地面非机动车停车位、地面机动车停车位、消防登高场地;南侧设有地下车库出入口、垃圾收集点;
11号楼 →
北侧设有地面非机动车停车位、地面机动车停车位;东侧为小区次出入口。
| 户型分析 | (点击图片放大观看)
| PART 3 |
一房一价、噪声表、日照表、选房建议
| 约100㎡、124㎡户型选房建议 | →
1.所处位置:均处在10、11号楼,约100㎡为中间套,约124㎡为东西边套;
2.采光因素:南侧稍有一点采光影响;
3.噪声因素:10、11号楼北侧有一定道路噪声影响;
4. 户型因素:通透性上边套优于中间套;
5. 价格因素:总价最高在次顶楼及下一层, 往下以约1-4万元的价格递减。
从位置看,11号楼仅北侧靠近道路,相对于10号楼稍好;在价格看,11号楼整体高于10号楼约5-10万元;
在选择中间套时,考虑控制总价,优选10号楼中高楼层;预算充足不排斥优选11号楼中高楼层;
在选择边套时,优选11号楼西边套,再次选择10号楼东边套,再次选择11号楼东边套,再次选择10号楼西边套;建议中高楼层优先;
顶楼价格相当于5F,建议优先于3F前选择。
之彩城
| PART 1 |
摇号信息
摇号房源:8、22号楼(2-14F)
均价:精装限价17000元/㎡,装修标准2500元/㎡
主力户型:约97户型52套,106㎡户型39套,129㎡户型12套
无房户倾斜:50%比例,约52户
人才倾斜:10%比例,约10户
验资门槛:资金存款证明首套100万,其他150万
登记时间:6.18-6.20
| PART 2 |
配套介绍&楼幢、户型分析
| 配套分析 |
楼盘属七彩未来社区的住宅部分,由德信和七彩集团合作,规划了12幢高层,此外还有2幢公租房、1所幼儿园等。
小区由广谊路分为南北区,出入口设在3、5号楼之间、24号楼西侧、4号楼南侧、15号楼南侧、9号楼东北侧。
楼盘东北侧为广谊公寓及明华郡乐苑,东侧为新友路,对面为七彩未来社区A区;南侧为友谊路;西侧为河道及青六线;北侧为建设四路,对面为七彩未来社区B区。
| 楼幢分析 |
8号楼 →
北侧设有消防登高场地
22号楼 →
南侧设有消防登高场地、非机动车坡道、地面停车位;北侧设有地下车库出入口、垃圾收集点。
| 户型分析 | (点击图片放大观看)
| PART 3 |
一房一价、噪声表、选房建议
| 约97㎡、106㎡、129㎡户型选房建议 | →
1.所处位置:约97㎡为8、22号楼中间套;约106㎡为8号楼东边套、22号楼东西边套,约129㎡为8号楼西边套;
2.采光因素:南侧低楼层有一定采光影响;
3.噪声因素:8号楼西侧、22号楼东侧有一定道路噪声影响;
4. 户型因素:通透性上边套优于中间套;
5. 价格因素:总层数为14F,除8号楼西边套总价最高在9、11F外,其余总价最高在次顶楼及下一层,往下每层之间价差约1-2万元。
鉴于97㎡功能性、通透性与106㎡对比,预算充足小户型优先选择106㎡边套户型;
在选择97㎡中间套时,22号楼总价相对较低,可做优选,其中东侧中间套为最优选;在南侧有采光影响的情况下,8、22号楼中间套建议优选中高楼层;
在选择106㎡时,考虑控制总价及低噪声影响,优选22号楼西边套;其次预算充足选择8号楼东边套;再次选择22号楼东边套;建议优选中高楼层;
在选择129㎡时,建议优选中间楼层,规避西侧干道产生的噪声影响;
顶楼价格介于4、5F,建议优先于4F前选择。
临望宸府
| PART 1 |
摇号信息
摇号房源:1、2号楼(2-16F)、7号楼(2-18F)
均价:精装限价16100元/㎡,装修标准2500元/㎡
主力户型:约99㎡户型60套,107㎡户型60套,128㎡户型34套
无房户倾斜:50%比例,约77户
人才倾斜:10%比例,约15户
验资门槛:冻结资金首套45万,二套90万,一次性140万
登记时间:6.18-6.20
| PART 2 |
配套介绍&楼幢、户型分析
| 配套分析 |
楼盘规划了13幢16-18F可售住宅,另外在东侧代建1所幼儿园,西南角规划1幢公租房5号楼。
小区主出入口设在南侧3、4号楼之间和1号楼、幼儿园之间。
楼盘最近可读学校为约500m的萧山第二中学,东南侧为规划小学用地;其余学校如临浦第一幼儿园、临浦第三小学、临浦东藩小学等距离在1.2-1.8km范围内。
楼盘南侧为在建油虎线及商住规划用地;西侧靠近03省道(杭金线),对面目前为大片民居;北侧靠近河道及在建滨望之宸。
| 楼幢分析 |
1号楼 →
西侧为地下车库出入口;北侧设有非机动车坡道、地面机动车停车位、配电房、消防登高场地、地下车库出入口;
2号楼 →
东侧为地下车库出入口;北侧设有非机动车坡道、地面机动车停车位、消防登高场地;
7号楼 →
北侧设有消防登高场地。
| 户型分析 | (点击图片放大观看)
| PART 3 |
一房一价、噪声表、选房建议
| 约99㎡、107㎡、128㎡户型选房建议 | →
1.所处位置:约99㎡为1、2号楼中间套,约107㎡为1、2号楼东西边套,约128㎡为7号楼东西边套;
2.采光因素:7号楼南侧稍有一点采光影响;
3.噪声因素:1、2号楼南侧有一定道路噪声影响;1号楼东侧有一定学校噪声影响;
4. 户型因素:通透性上边套优于中间套;
5. 价格因素:1、2号楼总层数为16F,总价最高在15F,每层之间价差约1-2万元,13、14F总价一致;
7号楼总层数为18F,总价最高在16F,每层之间价差约1-2万元,13、14F总价一致。
小户型集中在1、2号楼,两幢之间价格接近;中间套优选2号楼,其次选择1号楼;
边套优选2号楼西边套,其次选择2号楼东边套、1号楼西边套,再次选择1号楼东边套;
1、2号楼南侧采光影响较小,可从5F往上选;
大户型在7号楼,可优选采光视野较好的中高楼层;顶楼价格接近于5、6F,建议优先于4F前选择。
枫翠岚湾
| PART 1 |
摇号信息
摇号房源:2、3号楼(1-27F)
均价:精装限价30000元/㎡,装修标准3000元/㎡
主力户型:约96㎡户型107套,115㎡户型53套,125㎡户型54套
无房户倾斜:预计50%比例,约107户
人才倾斜:预计10%比例,约21户
验资门槛:冻结资金首套60万,二套120万,一次性200万
登记时间:6.18-6.20
| PART 2 |
配套介绍&楼幢、户型分析
| 配套分析 |
楼盘规划了6幢高层,其中4号楼为公租房;小区出入口设在西侧萧然西路上和北侧品文街上。
楼盘东侧约500m为高桥小学(南江校区),西侧约350m为朝晖小学。
楼盘东侧为河道;南侧为晨晖路,对面为在建众安项目;西南角有一泵房;西侧为萧然西路及铁路;北侧为品文街,对面建有教堂。
| 楼幢分析 |
2号楼 →
南侧设有非机动车停车位;北侧设有消防登高场地;
3号楼 →
西侧设有地面机动车位、地面非机动车位;南侧设有地面机动车位、消防登高场地;西南侧为燃气调压站、化粪池;北侧为机动车地下车库出入口、垃圾收集点。
| 户型分析 | (点击图片放大观看)
| PART 3 |
一房一价、噪声表、选房建议
| 约96、115㎡、125㎡户型选房建议 | →
1.所处位置:约96㎡为2、3号楼中间套,约115㎡为2、3号楼西边套,约125㎡为2、3号楼东边套;
2.采光因素:南侧采光影响较小;
3.噪声因素:2、3号楼南侧、3号楼西侧有一定道路噪声影响;
4. 户型因素:通透性上边套优于中间套;
5. 价格因素:总层数为27F,总价最高在20-25F,整体价差不大。
在选择中间套96㎡时,建议优选2号楼,再次选择3号楼;在南侧采光影响较小的情况下,可从10F往上选;
在选择边套115㎡时,建议优选2号楼,考虑远离铁路;再次选择3号楼;
在选择边套125㎡时,建议优选3号楼,考虑控制总价;再次选择2号楼;
顶楼价格介于3、4F之间,在南侧采光影响较小的情况下,优先于3F前选择。
棠源美宸里
| PART 1 |
摇号信息
摇号房源:6、7号楼(1-18F)、8、9、10、11号楼(2-17F)
均价:精装限价34000元/㎡,装修标准3500元/㎡
主力户型:约98㎡户型330套,120㎡户型70套
无房户倾斜:预计50%比例,约200户
人才倾斜:预计10%比例,约40户
验资门槛:冻结资金首套100万,其他200万
登记时间:6.18-6.20
| PART 2 |
配套介绍&楼幢、户型分析
| 配套分析 |
楼盘规划了11幢17-18F高层,小区出入口设在5、8号楼之间和1、2号楼之间。
楼盘与4号线桃源街站、在建宝龙广场之间距离约300m;与福山外国语小学之间距离约550m,与桃源中学斜对角。
楼盘东侧及北侧靠近望宸名邸,南侧约260m为铁路。
| 楼幢分析 |
6号楼 →
北侧设有配电房、消防登高场地;
7号楼 →
北侧设有消防登高场地;
8号楼 →
南侧为主出入口、机动车地下车库出入口;北侧设有地面非机动车停车位、消防登高场地;西北侧设有化粪池;
9号楼 →
钢结构楼栋;东侧设有非机动车地下车库出入口;南侧设有配电房、消防登高场地;东南侧设有垃圾收集点、消防登高场地;北侧设有地面非机动车停车位;
10号楼 →
东北侧为小区次出入口;西侧设有非机动车地下车库出入口;东侧设有配电房;南侧设有垃圾收集点、消防登高场地;北侧设有地面非机动车停车位;
11号楼 →
北侧设有地面非机动车停车位;南侧设有公厕;南侧设有消防登高场地;屋顶设有5G基站。
| 户型分析 | (点击图片放大观看)
| PART 3 |
一房一价、噪声表、日照表、选房建议
| 约98㎡、120㎡户型选房建议 | →
1.所处位置:约98㎡为6、7、8、9、10、11号楼中间套,及6号楼东边套、8号楼西边套、9、10、11号楼东西边套,约120㎡为6号楼西边套、7号楼东西边套、8号楼东边套;
2.采光因素:南侧有一定采光影响;
3.噪声因素:8、11号楼西侧、9、10、11号楼北侧有一定道路噪声影响;
4. 户型因素:通透性上边套优于中间套;
5. 价格因素:总价最高在次顶楼,每层之间价差约1-3万元。
在选择98㎡户型时,边套通透性优于中间套,建议优选边套;
98㎡边套同层价格从高到低为11号楼东边套、10号楼东边套、9号楼东边套、11号楼西边套、6号楼东边套、10号楼西边套、9号楼西边套、8号楼西边套;
建议优选9、10号楼西边套中高楼层,其次选择6号楼东边套中高楼层,再次选择9、10、11号楼东边套中高楼层,再次选择8、11号楼西边套中高楼层;
98㎡中间套同层价格从高到低为11、10、9、6、8、7号楼,建议优选7号楼中高楼层,次选择6、9、10号楼中高楼层,再次选择8、11号楼中高楼层;
120㎡边套同层价格从高到低为8号楼西边套、7号楼东边套、6号楼西边套、7号楼西边套;建议优选7号楼西边套中高楼层,再次选择7号楼东边套、6号楼西边套中高楼层,再次选择8号楼东边套中高楼层;
顶楼价格介于2、3F,建议优先于4F前选择。
运晓花望府
| PART 1 |
摇号信息
摇号房源:1号楼(2-15F)、2号楼(2-18F)、7号楼(2-17F)
均价:精装限价29500元/㎡,装修标准3000元/㎡
主力户型:约97㎡户型94套,127㎡户型94套
无房户倾斜:预计50%比例,约94户
人才倾斜:预计10%比例,约19户
验资门槛:冻结资金首套80万,其他160万
登记时间:6.18-6.20
| PART 2 |
配套介绍&楼幢、户型分析
| 配套分析 |
楼盘规划了7幢15-18F高层;小区出入口设在北侧5、6号楼之间和南侧1号楼西南侧。
楼盘与新城实验幼儿园之间距离约150m,与文渊小学一路之隔。
楼盘东侧为顾扬路,东南侧为社区卫生服务中心;南侧目前为空地;西侧为丽水北路,对面为水韵康桥康盛苑;北侧为蒋家桥街及文渊小学。
| 楼幢分析 |
1号楼 →
东南侧设有车行出入口;北侧为人行出入口、非机动车地下车库出入口、消防登高场地及回车场;西侧设有机动车地下车库出入口、垃圾收集点;南侧设有地面机动车停车位;
2号楼 →
南侧设有地面机动车停车位;北侧设有消防登高场地;东侧设有垃圾收集点;
7号楼 →
南侧为人行出入口、消防登高场地及回车场;西侧设有地面非机动车停车位、垃圾房,裙房设有配电房。
| 户型分析 | (点击图片放大观看)
| PART 3 |
一房一价、噪声表、日照表、选房建议
| 约100㎡、127㎡户型选房建议 | →
1.所处位置:均处在1、2、7号楼,约100㎡为中间套,约127㎡为东西边套;
2.采光因素:1号楼南侧稍有一点采光影响;
3.噪声因素:1、2号楼南侧、1、7号楼东侧有一定道路噪声影响;
4. 户型因素:通透性上边套优于中间套;
5. 价格因素:1号楼总层数为15F,总价最高在12-14F,每层之间价差约1-3万元,7、8F价格一致,与9F之间价差约6-8万元;
2、7号楼总价最高在次顶楼,每层之间价差约1-3万元,7、8F价格一致,与9F之间价差约4-6万元。
同层价差从高到低为2、7、1号楼;选择中间套时,建议优选7号楼中高楼层,再次选择2号楼,再次选择1号楼;1、2号楼可从8F往上选;
选择边套时,优选1号楼西边套、7号楼西边套,再次选择2号楼,可从东往西选;再次选择1、7号楼东边套;7号楼优选中高楼层,1、2号楼可从8F往上选;
顶楼价格接近于4F,优选于4F前选择。
翠揽云境
| PART 1 |
摇号信息
摇号房源:3、6、7、8号楼(1-16F)、9号楼(2-16F)
均价:精装限价44400元/㎡,装修标准4000元/㎡
主力户型:约106㎡户型120套,126㎡户型126套,146㎡户型32套
无房户倾斜:预计30%比例,约83户
人才倾斜:预计15%比例,约41户
验资门槛:冻结资金首套140万,其他280万
登记时间:6.18-6.20
| PART 2 |
配套介绍&楼幢、户型分析
| 配套分析 |
楼盘规划了24幢7-16F高层,其中包括东南侧10号楼;小区出入口设在北侧1、24号楼之间和南侧12、13号楼之间。
楼盘与1号线七堡站、七堡花园城之间距离约880m;与澎汇小学之间距离约800m,与澎扬中学之间约1km。
楼盘为三官塘路,对面为规划商业金融用地,东北侧为李宁体育公园;北侧为建华家苑;西侧为在建大家项目;南侧为规划商业金融用地,与钱塘快速路之间距离约150m。
| 楼幢分析 |
3号楼 →
北侧设有地面停车位、地面非机动车停车位;东南侧设有地面停车位;附近设有非机动车库出入口;南侧设有消防登高场地;
6号楼 →
北侧设有地面停车位;东南侧设有地面停车位;附近设有非机动车库出入口;南侧设有燃气调压站、消防登高场地;东北侧设有化粪池;
7号楼 →
南侧设有消防登高场地;
8号楼 →
北侧设有消防登高场地;
9号楼 →
北侧设有地面停车位、燃气调压站;东南侧设有地面停车位、地面非机动车停车位;附近设有非机动车库出入口。
| 户型分析 | (点击图片放大观看)
| PART 3 |
一房一价、噪声表、日照表、选房建议
| 约106㎡、126㎡、146㎡户型选房建议 | →
1.所处位置:约106㎡为3、6、8、9号楼中间套,约126㎡为3、6、8、9号楼东西边套,约146㎡为7号楼东西边套;
2.采光因素:南侧有一定采光影响;
3.噪声因素:3、6、9号楼南侧有一定道路噪声影响;
4. 户型因素:通透性上边套优于中间套;
5. 价格因素:总价最高在次顶楼,每层之间价差约2-3万元。
106㎡、126㎡两个户型集中在3、6、8、9号楼,四幢中间套价差不大,在选择中间套时,可从北往南选,小区中间楼幢优先,即8、3、6、9号楼,从高往低选;
在选择边套126㎡时,同层价格从高到低为8号楼东边套、8号楼西边套、3号楼东边套、6号楼东边套、3号楼西边套、6号楼西边套、9号楼东边套、9号西边套;
建议优选3号楼西边套、6号楼西边套,从高往低选;再次选择8号楼东西边套;再次选9号楼西边套,再依次3、6、9号楼东边套,从高往低选;
大户型146㎡在7号楼,从高往低选;
3、6、7、8、9号楼顶楼价格相当于4F,建议优先于4F前选择。
另附最新落户与购房资格表:
-END-
文/阿寻 编辑/阿寻
本文相关内容不排除因政府相关规划、规定及开发商未能控制的原因发生变化。以政府部门最终批准文件图则、(商品房买卖合同)及附件等协议为准。开发商保留对宣传资料修改的权利,敬请留意最新资料。本文面积如无特殊说明均为建筑面积。
房叔说 | |
房叔选房 |
点个在看,让房叔更好看。