最近,三大热盘板块云城、申花、勾庄各种购房群非常热闹;
一是,云城首个住宅项目杭与城(杭腾未来社区)领证即将首开,而且是一次性1224套的巨大推盘量;
第二个是,申花北华丰板块,杭樾润府一次性开盘499套后,同期拿地的星瓒颂锦府约194套,迟到近1个半月后迎来首开;
第三个是勾庄绿城海棠三子四次开盘后,万科星遇光年府将接棒首开200套。
三个盘就有1600余套,加上杭樾润府预计月底最后一开、星瓒颂锦府4#、10#、12#楼随时准备跟上二开、海棠三子8月也预计还有两开,光这三个板块就有2000套+;
就像是杭州放出71张预售证的2021年8月,未科未来天空之城、蒲荷芸邸、汀云上府、富力中心和沐宸院五盘2700套,北部新城前宸、星创城的那次泄洪也不遑多让,唯一的区别就是摇号人数和中签率。
有人说:这三个板块很好选啊,老杭州人改善选4.62万的申花,城西刚需、改善选3.61万的云城,刚需选3.1万的勾庄!
当然大方向没有问题,但细节还是有所差别,继续看下去……
| PART 2 |
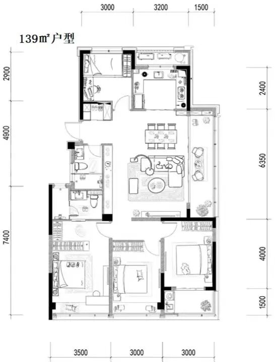
先说杭与城(杭腾未来社区),它单盘一次梭哈1224套的量(105㎡636套,128㎡314套,139㎡226套,195㎡48套);
是杭州最近几年仅次于云帆未来社区首开,足以排TOP2的一次,所以大概率是社保幼子都能雨露同沾的。
左右滑动查看更多
而杭与城所在的云城,依靠未来科技城和倾全省之力打造贴着科技极标签,并且最有可能率先实现职住平衡的未来社区示范区;
并且在最新的板块定位上与未来科技城共同被官方正式认定为杭州第三中心的顶级板块,加之估值较低的3.61万的限价,可买性并不明显差于未来科技城核心成熟区块。
再加上最接地气的龙湖天街+地铁3号线龙舟路站+西站枢纽商务中心+杭州第一高楼集群,都是能瞬间拉高城市段位和职住便捷的高等级城市配套。
而且杭与城东有浙大校友企业总部经济园;南有余杭塘河沿河湿地做背书的商业街区环境;西有超重力实验室和天元公学的教研配套;北有13万㎡天街TOD综合体,自住小环境非常宜居。
但就目前来看,云城虽是政府倾全力打造的重点区域,其配套产研一体的进度明显慢于住宅开发;
也正因为是第一个开发的商品房项目,目前周边皆处于城市开发的早期状态(云城整体规划的完整度还是不错的),路网和相关配套都在建设期,当前的城市界面就像大工地,与如今未科核心区有一定的差距,这也是杭腾未来社区比较显著的一个软肋。
就像阿里西溪园区建成时的未科,未来还要看产学研的体量和能级,但是即使最不理想的状态下,云城也可以作为住宅用地干涸的未科居住配套兜底。
因此,就目前状态来说,云城价值会略低于未科核心区,未来要看匹配的产业和城市界面的成熟度,可想象空间可观;
但成也萧何,败也萧何!
杭与城作为云城核心区真正意义的第一块住宅用地,也是总体量甚至超过未科1.0的海量住宅用地的首发,供地多意味着未来进入二手市场的供应也十分充足。
一旦短期供过于求,价格天花板自然也没有预期那么高。
而且仅首批供应,杭与城的2852套,加上滨江三盘约1000套+,几乎同时交付的量就近4000套,保守按10%二手挂牌量估计就400多套,投资蜂拥出货有一定的踩踏可能性。
因此,应该把杭与城看做是房住不炒的典型,但也正因为制约板块价值兑现的产业、住宅供应量、城市界面以及短期未科产业调整的影响,才会有被低估的价值和更被看好的中长线预期。
而这样的板块做底盘,又是社保幼子都有机会的海量推盘,可摇程度很高。
| PART 3 |
这次对撞三盘中率先领证的是星瓒颂锦府,它所在的申花板块刚好赶上了城西文教区的空窗期和科创大走廊黄金发展期,是“在最好的时间点,站到了最好位置“的典型代表,由此也站稳了城西一哥的位置。
而华丰造纸厂板块又是因为产业腾挪延缓了小板块的发展,也由此阴差阳错接棒了申花的大体量开发,典型的“起晚了却赶了个好集”!
而就是这块整拆整建大规模开发的热土,迎来了申花3、5、10号线的三铁时代和城西银泰城、大悦城、万象天地三大综合体时代;
星瓒颂锦府对于杭樾润府、华润综合体北地块来讲,在小区位上并不占优;
一是离地铁10号线花园岗街、和睦站分别700多米和800多米,几乎已经是步行的极限;
二来,离万象天地也差不多700多米,距离上也是相对略远;
但是优势在于产品线,不管是外立面东、南、西三面材质为铝板为主,弧形窗配金色线条,效果图、沙盘上看素质还不错;
园区内配备有下沉式会所兼顾泳池、健身房等功能型用房,其上屋顶地面又有大草坪及提取福建民居土楼元素的亭台,人行主入口的水景区、分布在园区的亭台、室外会客厅、儿童活动空间……景观营造配套上确实挺用心;
当然,因为是伟星在杭州的首个住宅产品,图纸复刻的还原度、品质感能做到什么程度,还需要实景呈现时才能考证。
左右滑动查看更多
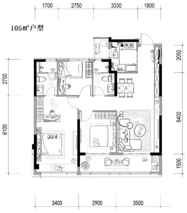
另一个劣势是首次开盘1、2号楼仅仅只有194套,户型面积108㎡、128㎡(130)、139㎡三种户型,起步约421万。
如果看以目前最近的合景天銮和珑玺7.5-7.8万/㎡的挂牌均价和6.2-6.7万/㎡的网签成交价(有做低可能性),新房倒挂不算少;
当然,更具参考意义的成交量考量,珑玺最近一个月成交量为0,天玺也仅有3套成交,价格体系和接受程度并没有形成共识。
如果按照杭樾润府推出房源499套,有房143个月排序后入围就4292户的摇号热度做参考;
星瓒颂锦府大概率限售+有房顶格社保,可能还面临限售的风险,究竟怎么选,先卖个关子,继续看!
| PART 4 |
北部新城CBD命名历经各种不同版本,城北副中心国际商务区——北部新城中央商务区,最后定格在良渚新城国际商务区核心区;
在规划定位上有这么一句话:通过设计手法整合未来城市产业和文化资源, 形成“一带”大运河文化带,“一廊”郁宅生态文化水廊,“双遗双城”(京杭大运河,良渚遗址公园)真正具有新型都市社群的良渚新城城市会客厅。“
因此,规划上国际商务区从4号线杭行路站至勾阳路站之间的这一片区域,规划围绕郁宅湖而建,包括城北万象城、艺术中心、未来城市广场、湿地公园、体育中心、市民中心、总部商务集群等。
国际商务区将是城北副中心的核心,从建筑高度上就体现的出来。
除了285米的城北万象城和330米的良渚玉琮,还有3幢200米+的地标性建筑,150米+的建筑总数将达到11幢。
整体规划的完整性和高规格甚至超过四幢超高层领衔的云城西站枢纽;
因此,勾庄不光价格方面是未科平替板块,整个城市界面的想象度也逼格很高。
但也面临云城同样的问题,总体供应量有267万方,按照平均120㎡户型面积算,也有2.2万套,未来价格天花板和踩踏大概率会出现,只不过要看未来整体市场走势。
当然,如果高等级城市建设能够早日兑现,板块约3.1万/㎡的限价,在杭州同等级板块内还是属于能打的类型,对于市场普遍高于4万左右的二手房来说,不仅是有了足够厚价格保护垫,未来还是有成长空间。
星遇光年府位于月映海棠园东面,距离星创城综合体约200米,距离地铁4号线好运街站直线距离约500米、10号线杭行路站直线距离约1公里,莫干山路高架约200米,有月映海棠园隔离,高架噪声影响少了不少。
左右滑动查看更多
星遇光年府首开200套左右,105方占比50%左右,129方和139方各25%左右,定位偏刚需,唯一不足的首开数量太少了点。
| PART 5 |
三个板块,三个楼盘简略分析了下,如果按照难易程度和摇号规则简单判断:
首先,顶格社保、人才资格首选星瓒颂锦府,核心板块确定性更强;
其次,顾虑星瓒颂锦府限售可能,考虑上车概率,也可以选择杭与城,大推盘量中签率更高,也避免限售,未来可想象空间上有优势;
第三,低社保可以杭与城试试运气,基本不会排社保;
第四,虽然星遇光年府200套量,但这次杭与城的大量分流,是勾庄上车的好机会,低社保求上车可以优先选择;
但勾庄几盘中历史报名人数最多的燕语海棠轩首开门槛社保也就有房61个月,只要不是社保微子,基本都有机会。
而从另一个需求层面来看,主城中改顶格社保首选星瓒颂锦府,但同样会错过杭与城泄洪的最好机会;
初级改善或者未科、大城西上班杭与城是首选;
偏刚需也可以选杭与城,刚刚需星遇光年府也可以冲一下。
而且后续这三个盘都有大量供应,打新的窗口期,策略稍微调整下,原则上机会还会有很多,但要量力而行,能上尽上。
第五,祝大家都好运,中个好签!
赢取条件:留言,且被移入精选、点赞数超过5,请加房叔个人微信hangzhoufangshu10获取。
房叔说 | |
房叔选房 |
PS:更多往期回顾可进入房叔公众号后台,点击、右上角搜索键(放大镜),搜索楼盘名,或相关词条
点个在看,让房叔更好看。