![]()
![]()
共15盘预售公示、登记,列表见文末↓
春樾星宸与3号线汽轮广场站之间步行可达,西南侧斜对角为安吉路景成实验学校;整盘精装限价3.32万元/㎡,加推126套,主力户型约110-127㎡,总价起步约203万元(最小户型73㎡)。康桥运晓花望府南侧大片处在整建之中,近距新城实验幼儿园,一路之隔文渊小学;整盘精装限价2.95万元/㎡,加推120套,主力户型约100-127㎡,总价起步约263万元。桃源的棠源美宸里与4号线桃源街站、宝龙广场距离较近,近距福山外国语小学、斜对角桃源中学;整盘精装限价3.4万元/㎡,加推200套,主力户型约98-120㎡,总价起步约247万元。![]()
晨语汀澜里处在崇贤西侧,与上亿广场之间距离约1.2km,规划了14幢16-17F住宅,西侧、东北侧均有规划学校;整盘精装限价2.36万元/㎡,首开128套,主力户型约98-128㎡,总价起步约193万元。融耀之城为3号线星桥站上盖物业;整盘精装均价2.4万元/㎡,加推96套,主力户型约89-105㎡,总价起步约184万元。月映星语园近邻3号线终点站星桥站,幼儿园、小学、初中等距离均较近;整盘精装限价2.4万元/㎡,加推162套,主力户型约103-125㎡,总价起步约202万元。![]()
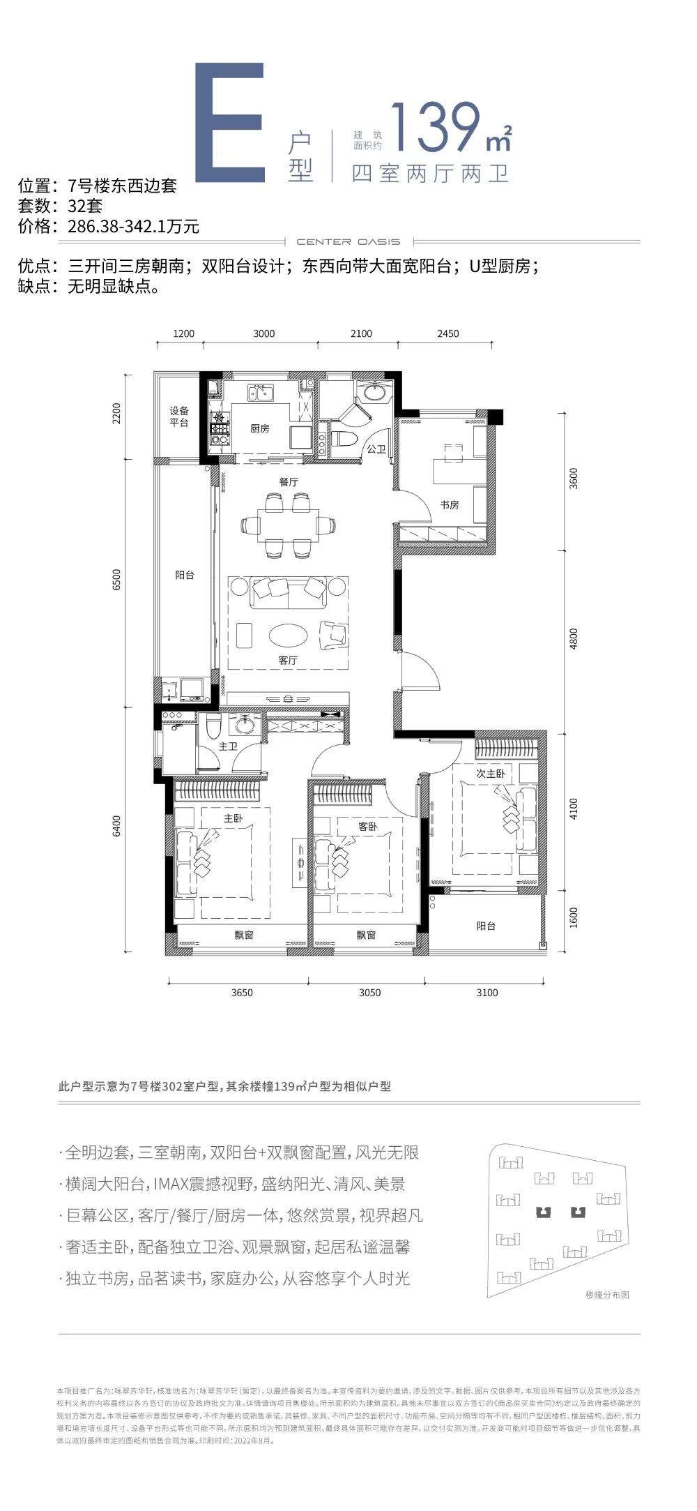
咏翠芳华轩规划了12幢14F住宅,内部配套有景观水池;近距临平第三小学、第五中学,与9号线五洲路站、东湖市民广场之间也不远,北侧一路之隔为规划三甲级医院;整盘精装限价2.26万元/㎡,首开144套,主力户型约98-139㎡,总价起步约192万元。
![]()
檀境里近邻富春十小、富春三中,有89㎡三房两卫小户型设计;整盘精装限价2.2万元/㎡,加推159套,主力户型约89-119㎡,总价起步约164万元。
均价:精装限价33200元/㎡,装修标准3500元/㎡主力户型:约110㎡户型69套,约112㎡户型28套,127㎡户型28套,特殊户型77㎡1套
| 配套介绍 |
![]()
楼盘规划了8幢8-14F小高层,此外在东侧规划了一幢公租房4号楼;小区出入口设在1、9号楼之间、3号楼北侧和7、8号楼之间。楼盘与3号线汽轮广场站之间步行距离约800m,西南侧斜对角为安吉路景成实验学校;楼盘东南侧建有永富大厦,东侧靠近秋石高架路;南侧为规划商业地块,西侧为北景园月桂苑,北侧为在建安置房。东侧设有地面机动车停车位、化粪池;西侧设有地面机动车停车位;南侧设有地面非机动车停车位、配电房、消防登高场地;东侧设有配电房、开闭所;屋顶设有消防水箱;北侧设有消防登高场地。![]()
| 高层约110㎡、112㎡、127㎡户型选房建议 | →1. 所处位置:约110㎡为2、5号楼中间套,约112㎡为5号楼东西边套,约127㎡为2号楼东西边套;3. 噪声因素:2号楼北侧、西侧有一定道路噪声影响;5号楼东侧有一定商业噪声影响;5. 价格因素:总价最高基本在12F,每层之间价差不大。小户型110㎡集中在2、5号楼中间套,建议优先5号楼中间套中高楼层,再次选择2号楼中间套中高楼层;112㎡仅在5号楼东西边套,西边套高于东边套约10万元,预算充足优选西边套;127㎡仅在2号楼东西边套,东边套高于西边套约15万元,预算充足优选东边套;摇号房源:4号楼(2-15F)、5号楼(2-17F)均价:精装限价29500元/㎡,装修标准3000元/㎡主力户型:约100㎡户型60套,127㎡户型60套![]()
楼盘规划了7幢15-18F高层;小区出入口设在北侧5、6号楼之间和南侧1号楼西南侧。楼盘与新城实验幼儿园之间距离约150m,与文渊小学一路之隔。楼盘东侧为顾扬路,东南侧为社区卫生服务中心;南侧目前为空地;西侧为丽水北路,对面为水韵康桥康盛苑;北侧为蒋家桥街及文渊小学。东南侧设有非机动车地下车库出入口;东侧设有地面非机动车停车位;西北侧设有配电房、防爆波电缆井;南侧设有化粪池、消防登高场地;东侧为机动车地下车库出入口;东北侧设有地面非机动车停车位;西南侧设有配电房、开闭所;东侧裙房设有配电房;南侧设有垃圾收集点、消防登高场地;![]()
1. 所处位置:均处在4、5号楼,约100㎡为中间套,约127㎡为东西边套;3. 噪声因素:4号楼南侧、5号楼北侧、4、5号楼西侧有一定道路噪声影响;5. 价格因素:4号楼总价最高在12、13F或及14F,每层之间价差约1-3万元,7、8F价格一致,与9F之间价差约5-6万元;5号楼总价最高在15、16F,每层之间价差约1-3万元,14F价格有一定优惠,不介意可考虑;7、8F价格一致,与9F之间价差约4-5万元。同层价格4号楼高于5号楼约5万元,预算有限可优选5号楼中高楼层;4号楼可从8F往上选;选择边套时,优选4、5号楼东边套,再次选择4号楼西边套,再次选择5号楼西边套;5号楼优选中高楼层,4号楼可从8F往上选;中低楼层优先选择4号楼;摇号房源:2号楼(1-16F)、3号楼(1-18F)、5号楼(2-17F)均价:精装限价34000元/㎡,装修标准3500元/㎡主力户型:约98㎡户型166套,120㎡户型34套楼盘规划了11幢17-18F高层,小区出入口设在5、8号楼之间和1、2号楼之间。楼盘与4号线桃源街站、在建宝龙广场之间距离约300m;与福山外国语小学之间距离约550m,与桃源中学斜对角。楼盘东侧及北侧靠近望宸名邸,南侧约260m为铁路。东侧为次出入口;西侧设有非机动车地下车库出入口;南侧设有地面非机动车停车位;北侧设有配电间、消防登高场地、快充专变;西北侧设有垃圾房;屋顶设有5G基站;北侧为主出入口,设有机动车地下车库出入口;南侧设有地面机动车停车位、地面非机动车停车位、配电房、快充专变;西北侧设有消防登高场地;屋顶设有5G基站。1. 所处位置:约98㎡为2、3、5号楼中间套,及2号楼东西边套、3号楼东边套、5号楼西边套,约120㎡为3号楼西边套、5号楼东边套;5. 价格因素:总价最高在次顶楼,每层之间价差约1-3万元。在选择98㎡户型时,边套通透性优于中间套,建议优选边套;98㎡边套同层价格从高到低为3号楼东边套、5号楼西边套、2号楼东边套、2号楼西边套;预算充足建议优选3号楼东边套,其次选择5号楼西边套,再次选择2号楼东西边套;3号楼建议优选中高楼层,2、5号楼可优选中间楼层;98㎡中间套同层价格从高到低为3、5、2号楼,3号楼位置最好,预算充足建议优选;其次选择5号楼,再次选择2号楼;3号楼建议优选中高楼层,2、5号楼可优选中间楼层;120㎡边套同层价格从高到低为3号楼西边套、5号楼东边套;建议优选5号楼东边套中高楼层,其次3号楼西边套中高楼层;2号楼顶楼价格介于4、5F之间,仅优先于3F前选择;3、5号楼顶楼价格介于2、3F之间,优先于4F前选择。均价:高层精装限价23600元/㎡,装修标准3000元/㎡主力户型:约99㎡户型64套,约129㎡户型64套![]()
楼盘规划了14幢16-17F住宅;小区出入口设在13、14号楼之间,人行还可通过7号楼西南侧、12号楼北侧进出。楼盘西侧隔河道为规划学校用地,东北侧为规划向阳小学,与上亿广场之间距离约1.2km;楼盘东侧、南侧目前为手表厂、蒋家浜创意园等厂房、办公楼;北侧为在建璞悦江南府。北侧设有机动车停车位、变电房;南侧设有非机动车停车位、消防登高场地、垃圾投放点;东侧为小区出入口;西侧设有机动车地下车库出入口;北侧设有机动车停车位、化粪池;南侧设有非机动车停车位、消防登高场地。1. 所处位置:均处在11、14号楼,约99㎡为中间套,约129㎡为东西边套;5. 价格因素:总价最高在次顶楼,每层之间价差约1-3万元,13、14F价格相当于11F。在选择中间套99㎡时,11号楼价格高于14号楼约7万元,预算有限可优选14号楼,可享园区景观;选择边套129㎡时,同层价格从高到低为11号楼西边套、11号楼东边套、14号楼东边套、14号楼西边套;预算有限可优选14号楼东边套,预算充足也不排斥优选11号楼西边套,其次选择11号楼东边套,再次选择14号楼西边套;11号楼东边套低楼层受10号楼部分影响,末选;在南侧采光有一定影响的情况下,优选中高楼层,尤其是11号楼东边套、14号楼西边套;均价:精装限价24000元/㎡,装修标准3000元/㎡主力户型:约103㎡户型108套,约125㎡户型54套![]()
楼盘规划了19幢18-27F可售高层,及公租房14号楼。
小区出入口设在14号楼西南侧、16、17号楼之间和19、20号楼之间。
楼盘与3号线星桥站距离约500m,西南侧即为星运幼儿园(星运园区),北侧约230m为星运幼儿园(惠都分园);西侧约620m为星桥第一小学,约850m为星桥中学;
楼盘南侧为绿地及临丁路;西侧靠近河道,及在建融耀之城及苏宁易购广场;北侧为星运丽园兰逸和惠都家园西区;东南侧约150m为铁路线。北侧为人行出入口,设有非机动车出入口、机动车地下车库出入口、垃圾收集点、消防登高场地;南侧设有非机动车地下车库出入口、非机动车停车位、配电房;西侧设有非机动车停车位;屋顶设有5G基站。![]()
1. 所处位置:均处在8号楼,约103㎡为中间套,约125㎡为东西边套;3. 噪声因素:西侧有一定道路噪声影响;西南侧有一定幼儿园噪声影响;5. 价格因素:总价最高在19、20F,往上至24F每层之间价差约1-2万元,24-26F价格一致;往下每层之间价差约1-2万元,18F价差明显,不介意可考虑;14F与13F价格一致。8号楼南向采光影响较小,可优选中间楼层;东边套高于西边套约9万元,预算充足优选东边套;顶楼价格接近于4F,建议优先于4F前选择。均价:精装限价24000元/㎡,装修标准3000元/㎡主力户型:高层89㎡户型48套,105㎡户型48套![]()
楼盘住宅部分规划了15幢25-26F高层,与南面商业部分由市政道路星都大道隔开。楼盘与3号线星桥站几乎零距离,而地铁又与苏宁广场地下相连。小区主出入口设在4号楼西北侧,12、13号楼设有次出入口,此外1、2号楼之间设有车行出入口,1号楼南侧、4号楼南侧设有人行出入口。楼盘东侧靠近河道,及在建月映星语园;西侧为星桥南路及学成府,北面是学成街及小凉家园。东南侧设有垃圾收集点、开闭所;东侧设有变配电房;北侧设有地下车库出入口;南侧设有非机动车坡道、人行出入口、机动车停车位;西北侧为小区出入口;西侧设有机动车停车位。1. 所处位置:均处在4号楼,约89㎡为中间套,约105㎡为东西边套;5. 价格因素:总价最高基本在20-24F,往下每层之间价差约1-2万元,特殊数字18F有6-8万元的价差,13、14F价格一致,与15F之间有4-5万元的价差。高楼层采光视野较好,上下楼层价差不大,可从次顶楼往下选;预算有限不排斥选择中低楼层;东边套高于西边套约6-11万元,预算充足优选东边套;均价:高层精装限价22600元/㎡,装修标准3000元/㎡主力户型:约98㎡户型32套,约108㎡户型32套,109㎡户型16套,125㎡户型32套,139㎡户型32套![]()
楼盘规划了12幢14F住宅,小区出入口设在10、11号楼之间和5、9号楼之间;内部配套有景观水池。楼盘与9号线五洲路之间距离约900m,与东湖市民广场之间距离约1.2km,与临平第三小学、第五中学之间距离约350m。楼盘东侧为规划幼儿园,再往东为在建第三城;南侧为结网嘉苑东区;西侧靠近河道,河对岸为结网嘉苑西区,北侧为规划三甲医院。东北侧为主出入口;北侧设有地面机动车停车位、消防登高场地;屋顶设有5G基站;东侧设有机动车地下车库出入口、燃气调压站;西侧设有非机动车地下车库出入口;北侧设有地面机动车停车位、化粪池、消防登高场地;东北侧设有地面机动车停车位;南侧设有开闭所;西南侧设有垃圾投放点;屋顶设有消防水箱。![]()
1. 所处位置:约98㎡为12号楼中间套,约108㎡为12号楼东西边套,约109㎡为11号楼中间套,约125㎡为11号楼东西边套,约139㎡为7号楼东西边套;3. 噪声因素:11、12号楼北侧、12号楼西侧有一定道路噪声影响;5. 价格因素:总价最高在次顶楼,每层之间价差约1-2万元。在户型选择上,108㎡处在边套,通透性较好;109㎡为四开间朝南,南向采光较多,看个人喜好选择;11、12号楼南侧采光有一定影响,优选中高楼层;7号楼南侧采光相对较好,中间套和东边套可优选中间楼层;12号楼东边套高于西边套约9万元,预算充足优选东边套;11号楼东边套高于西边套约9万元,可优选西边套;7号楼东边套高于西边套约10万元,不排斥优选西边套;均价:高层精装22000元/㎡,装修标准3000元/㎡主力户型:高层89㎡户型80套,109㎡户型39套,119㎡户型40套楼盘在华虹路与金秋大道交叉口,距桂花西路地铁直线距离2.2km,周边重要配套有:![]()
富春三中 | ![]()
东方茂 |
![]()
宝龙广场 | ![]()
富阳中医骨伤医院 |
①为富春三中;②为在建富春十小;③为商业规划用地;④为富阳中医骨伤医院;⑤为宝龙广场;⑥为富阳妇幼保健院;⑦为东方茂商城;⑧为融创在建项目富源里。北侧为人行出入口,设有机动车地下车库出入口、非机动车地下车库出入口、消防登高场地;南侧设有机动车地下车库出入口、地面机动车停车位、垃圾收集点。| 约89㎡、109㎡、119㎡户型选房建议 | →1. 所处位置:均处在11、12号楼,约89㎡为中间套,约109㎡为东边套,约119㎡为西边套;5. 价格因素:总价最高在18F,每层之间整体价差不大。在选择楼幢时,11号楼位置较好,所受噪声影响较小,建议优选11号楼,尤其是109㎡;119㎡建议优选12号楼西边套,园区景观较好;户型选择上,89㎡三房两卫功能性较好总价较低,中间套通透性不及边套;预算充足建议优选109㎡;鉴于高楼层采光影响更佳,整体价差不大,建议优先选择中高楼层;中间套顶楼价格偏高,从采光角度考虑,优先于3F前做选择;边套顶楼价格低于3F,可优先于5F前选择。
文/阿寻 编辑/阿寻
本文相关内容不排除因政府相关规划、规定及开发商未能控制的原因发生变化。以政府部门最终批准文件图则、(商品房买卖合同)及附件等协议为准。开发商保留对宣传资料修改的权利,敬请留意最新资料。本文面积如无特殊说明均为建筑面积。
赢取条件:留言,且被移入精选、点赞数超过5,请加房叔个人微信hangzhoufangshu10获取。PS:更多往期回顾可进入房叔公众号后台,点击、右上角搜索键(放大镜),搜索楼盘名,或相关词条
点个在看,让房叔更好看。![]()