住宅,作为众多建筑类型中的一种,因为其日常性,所以和大众个体间的关系最为紧密。在西方和日本,住宅设计往往是建筑师成长过程中的起步必修课,而大师们也依然在致力于呈现多样化的住宅作品。与之相反,国内的住宅几乎以一种标准化、程式化、同质化的面貌在每座城市不断地蔓延。而住宅设计几乎是一个可以从建筑设计行业中独立出来的产业,大多数有创作诉求的建筑师对其敬而远之。谈起原由,建筑师却也常被动无奈,超级规模化的需求导致资本逐步在该项产业中占据了主导地位。在高周转的要求下,住宅基本形成了成熟的标准化体系,而住宅设计在很大程度上也演变为了流程化的操作:日照、限高等限定条件与销售货值叠加决定规划布局,面宽决定论主导下的户型设计,以成本控制为量化指标的立面体系设计。在这样的背景下,当我们再次介入中国典型住宅社区设计时,是否还有创作空间?建筑师的职业性和专业性是否在设计过程中有所体现?业主是否享受到了设计的价值?建筑设计对地产住宅开发来说真的还重要吗?笔者近期通过对杭州涌璘府项目的整个设计、建造全过程的梳理回顾,来谈谈自己的几点思考。
![]()
2015年,杭州楼市被一致看好,土地竞拍市场高潮迭起。16年初,融创在异常激烈的竞争中摘得杭州主城区的涌璘府宅地,折后楼面价23268元/ m²,溢价率达47.97%。涌璘府位于杭州城东,虽然距离钱江新城只有2公里,但周边板块环境氛围一般,以安置房为主,还紧邻一个清真寺。
△ 区位图项目用地面积18844m²,容积率2.6,绿地率30%,总计344个住户单元,与国内动辄几十、上百万平方米的楼盘相比,算是一个小规模住宅区。当时市场主流规划布局原则:以轴线串接花园,强调轴线对称,中心大花园,楼王居中。此原则同样适用于本地块,但因为本项目用地偏小,基地四周外部环境迥异,东侧和北侧紧邻主干道,噪音大,西侧邻水有景观,所以我们认为,如果能在此规划布局基础上以差异化的策略回应周边资源,项目的整体价值仍然有提升空间。
△ 总体规划模型通过多次模拟推演比较,在日照限制、户型面宽、景观资源和土地价值最大化的多重约束下,我们确定了南北以板楼围合,中间是四栋点楼的基本格局。因为地块本身不是正南北向,所以在布局上有两种可能性,一是建筑正南北向布置,二是建筑顺应周边路网。通过分析外部环境影响,我们将靠北侧道路的四幢点楼加以旋转,以正南北向布局,削弱了北侧城市主干道对其的压迫感,并通过增加东侧建筑高度,降低西侧楼栋高度的方式塑造了东高西低的天际线趋势,连接城市和自然。鉴于住宅售价远高于商铺,从商业价值角度,最好的位置都留给住宅,将少量的物业用房和配套商业放在了资源相对较差的东北转角,以一层裙房的形式布置。尽可能降低密度,用足高度,增加楼栋间距,加强空间流动感,形成相对自由的布局。![]()
△ 规划生成图
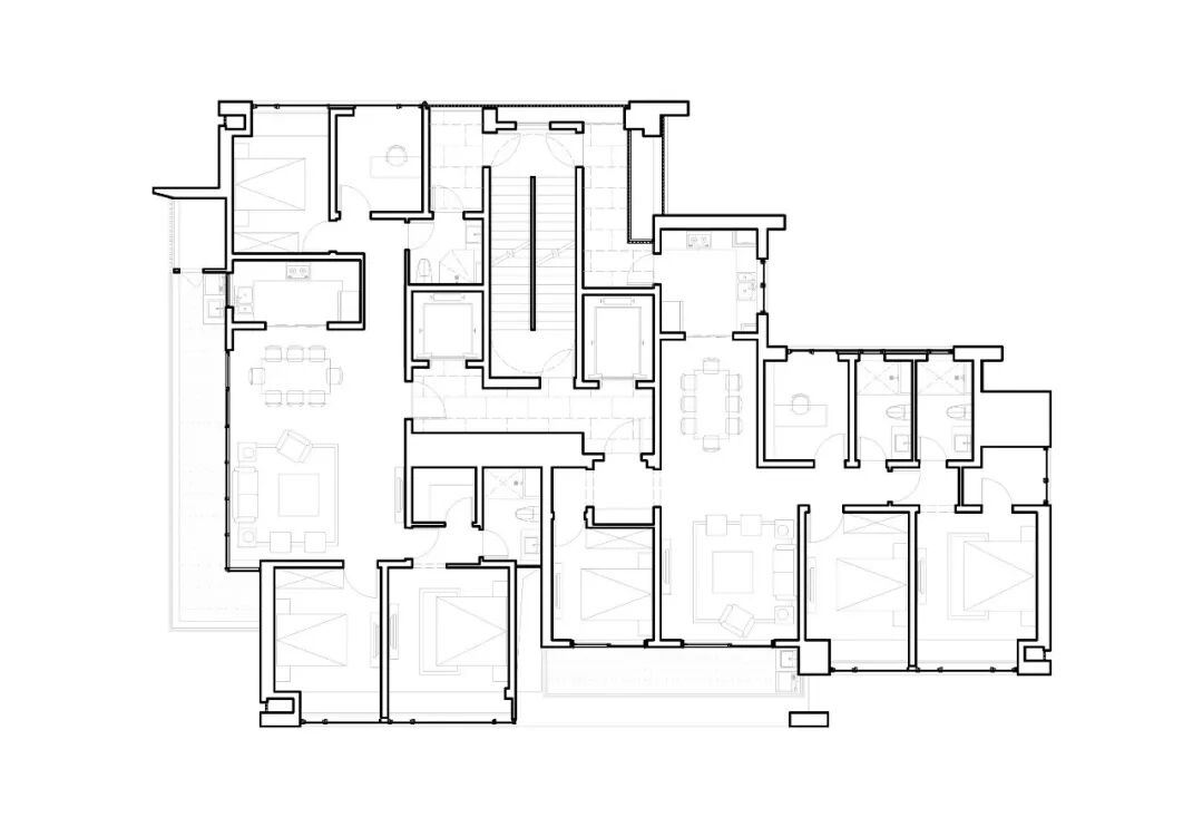
初步的总图确定,也就意味着确定了住宅的单元数和总面宽数。在户型设计上,我们始终尊重一线营销反馈的信息,高度认同大面宽小进深户型的市场优势,因此把面宽指标作为户型设计的重要考量标准。![]()
![]()
当一幢楼只有六开间面宽时,常规的处理方法是一梯两户、均匀分布两个三开间户型,形成规整对称的平面轮廓。但是,我们认为资源均质化分配未必是更优选择。考虑到中心花园这个绝对加分项和东侧城市道路相对负面的影响,我们大胆地提出了一个L型户型——4开间+2.5开间的组合方式。靠外部道路布置四面宽朝南,使得山墙临路避免干扰。朝向中心花园布置侧向通厅户型,产生吏大化的花园景观界面,精准匹配户型面宽与所处位置的资源。
△ 户型对比
![]()
户型内部功能空间精细化设计,重点把握餐厅和起居室的尺度、南向房间占有绝对面积比例、动静合理分区、南北正向和阳台侧面通风采光,同时预留足够的弹性空间,来满足对现代生活居住空间的需求。![]()
△ 4#和5#145m²四开间和145m²边厅户型平面
由市场反馈来看,这次非对称、反常规的户型设计取得了奇效,在同期开盘销售的项目中,以户型优势赢得了快速的去化。![]()
![]()
地产的竞争白热化的今天,住宅的立面颜值对于品牌塑造有着不可低估的作用。业主对于我们的户型设计高度认可的同时,也提出了对于立面造型的担心和疑虑。鉴于他们过往管控经验,平面呈L型不对称,而且轮廓边界如此不规整,往往立面很难呈现出好的效果,因此内部讨论时,也有一方认为选择成熟的标准化户型和立面,项目风险更加可控。
△ 建筑立面实景照针对业主的担心,我们非常理解,因为当时国内住宅市场已从Art Deco进化到立面公建化风潮,形体拉平、规整对称、立面三段式、横线条贯通几乎成了住宅立面设计标准套路。但很显然,无论是横线条、竖线条或是立面轴线对称法则,确实都无法匹配现有户型形体关系。因此我们提出户型利益优先,立面设计可以跳出传统现有框架,寻求适宜的应对策略。经过仔细分析,其实现有平面最大的难点是轮廓的不规整,强调“线”和“体”往往都会凸显形体的零碎,因此我们选择片墙这种“面”的形式语言来化解凹凸不平的体量关系,片墙之间的分离感弱化了形体的转角体量,形成立面若干层次的叠加。在这样一个理性分析生成的针对性策略之下,自由、非对称的立面样式回应了非对称、不规整的平面,平面和立面语言逻辑的一致性得到了保证。
△ 主楼立面生成图
![]()
△ 立面剖面示意图![]()
△ 概念研究模型
![]()
![]()
效果图如何高质量的实景呈现,需要建筑师在造价、规范等现实问题和立面理想效果间做平衡。
![]()
当地设计规范规定,不允许住宅建筑立面使用幕墙系统。为此,我们与幕墙单位共同研发了一种类幕墙的窗体系,通俗地说,就是在土建结构上受力,外立面实现轻盈的连续玻璃幕墙效果,再根据不同的位置设计相应的构造节点。![]()
![]()
所有的实体部分和玻璃部分交界处,我们设计了100mm的横向和竖向挑耳,门窗框料全部固定在挑耳上,在挑耳外侧以铝板和型材为完成面,分户墙位置设置竖向立挺划分,保证了玻璃面的连续。根部大头部小的变截面型材既能遮挡挑耳和墙体,又能形成轻薄的立面划分线条。窗系统采用明框和隐框相结合的体系,玻璃窗四周为40mm明框,开启扇竖向明框60mm,通过设置槽口,使竖向明框显得更加轻盈,而外开的开启扇水平方向则设置为近似隐框。![]()
△ 窗系统的隐框开启扇细节
![]()
![]()
△ 飘窗1节点设计
在飘窗外立面节点处理上,飘窗上下两部分均采用窗系统,通过简洁的变截面铝型材,实现上下窗扇的平顺交接。节省材料用量的同时,既不会影响立面效果,也能保证气密性和水密性,提高门窗的整体保温效果。
△ 飘窗2节点设计![]()
在百叶与窗交接节点构造处理中,我们希望让百叶尽量与窗系统齐平。最后通过开模定制的型材收边,并用隐框方式固定百叶,既解决门窗与百叶交接的问题,又实现效果上完整平实的幕墙效果。
![]()
△ 百叶与窗交接处节点设计
![]()
关于在销售中心的选址,一度让业主非常纠结。一方意见认为项目用地小,无法匹配项目示范区的高端性,所以提议就近租场地来造一个高大上的售楼处,销售完成后拆除。另一方意见则认为项目利润有限,最好能利用现有物业经营和管理用房以及商业来做售楼处,后期还原为商业用房,一次成型的模式,经济性最好。但也有人提出,现有的东北角L型商业裙房空间局促,体量不规整,场地限制大,貌似不具备一个售价5-6万的高端售楼处的空间先天条件。![]()
而我们认为,问题的关键不在于原有空间条件,还是在于设计能否跳脱传统的商业裙房范式,能否将不利因素化解转化。
![]()
设计的难点在于同一空间当下和未来使用功能的不一致性,以及场地的限制。为此做了以下策略来应对:
△ 概念生成图
1.回应街角,以退让部分地形的方式,来形成前场空间和售楼处的主要展示面。2.因为工期需要,此区域不能设地下室,所以在结构上与主体高层住宅脱离,形成不规则轮廓。
3.接着延续高层住宅的片墙和玻璃盒子的建筑语言,层层退后的墙体逐渐向两侧延伸,隔离消极场所因素,界定建筑自身的功能空间。
4.水平向玻璃盒子的穿插,与石墙面形成虚实对比,兼顾未来商铺物业用房和售楼处都需要的展示面。
5.样板房的空间以一个白色彩釉玻璃盒子叠加在一层体量之上,作为售楼处时兼具广告灯箱功能,未来销售结束后拆除简单易行。
![]()
多种材质的拼接和精细化的细节处理。采用开放式幕墙体系,片墙石材间15mm的离缝做法,20mm厚不锈钢钢肋为支柱,与超白玻相结合的隐框幕墙的结合,突显玻璃盒子的轻盈感;二层玻璃盒子采用15×15彩釉图案,在夜空中形成半隐半透的灯箱效果。
![]()
△ 离缝石材幕墙节点
△ 底层玻璃盒子节点
△ 二层玻璃盒子
不出所料,一周后我们提交的方案让业主喜出望外,满足了他们对经济性和颜值气质的综合诉求,帮助业主下定决心做出了决策。此时回想,如果当时我们没有主动迎接这个挑战,拿不出解决方案,结果完全可能是另一个方向。![]()
![]()
住宅区公共空间包括入户门厅、公共配套等,较为常见的处理方式是以门厅作为室内外空间的界限,并通过路径和空间来营造归家仪式感。随着对居住环境品质的更高需求,底层架空的设计逐渐流行起来。架空后的底层平面自然形成半室外空间用于邻里交往、景观营造、社区活动等多样化功能,一定程度上解放了用地范围内的土地资源,也革除了建筑内外空间界限。
![]()
但在实际项目操作过程中,常因底层架空的归属边界不清晰,导致成为建筑、室内、景观三不管的盲区。因此在这个项目中,我们牵头整合了室内和景观的设计思路,建筑保证空间的连续性,地面造景交由景观延伸,吊顶设备由室内统一设置,最后图纸整合,实现一体化的高完成度空间。健身房、书房、公共厨房、亲子乐园等一系列归心配套功能在此实现。
![]()
![]()
局部抬高室外景观地势,利于空间层次的划分和收放。由室外的步道、绿化、水系和活动交往场所等开放活力的空间,过渡至较为私密安静的室内门厅空间,由景观渗透的公共空间既丰富住户的体验感,也与庭院的设计有所联系和呼应。
![]()
![]()
△ 底层架空空间
![]()
中轴对称、空间围合、一览无余的中心大花园是住宅园区典型的景观通用手法。但限于本项目场地狭小,平铺直叙的设计方式只会显得空间更逼仄。所以我们提出花园要去中心化,化整为零。与建筑理念相通,通过平面曲折和高差起伏,曲径通幽和通而不透,多层次、精致的设计形态,产生视觉上的转换效果。
最后景观设计单位以书法的笔触为灵感完成了一个非常现代构成感的设计,通过一个连续的非线性折顶,勾勒出住户的生活和社交轨迹,并串接了若干个尺度宜人的小花园。
![]()
![]()
从2016年开始设计,到2019年底的交付,涌璘府整个设计建造过程历时4整年,但在高周转背景下,实际的方案、扩初、施工图的设计周期只有5个月,为了赶节点,图纸的深度及广度都远远不足。所以在后续几年的建造过程中我们一直持续深化设计,在材料选择、节点处理、细节控制上进一步研究。尤其是最后半年,我们和业主一起完成了现场问题的查漏补缺。设计工作始终伴随营造全过程,是我们一直坚持的工作模式,后期服务不仅仅是服务,更是应对解决各种疑难杂症,保证项目的完成度和品质感。
![]()
8.1 阳台节点
阳台外墙柱内凸,优化结构截面,结合室内窗帘盒的设置,保证阳台的连续性。增设门套,避免阳台涂料面的阳角转角。
![]()
△ 阳台平面大样
设计时控制阳台挑梁高度,保证阳台吊顶完成面和阳台门框等高。
![]()
△ 阳台吊顶的精细化处理
为了强化转角侧向大阳台的玻璃体积感,将玻璃栏板下沿到混凝土梁外侧,栏板采用外挂方式固定,并做局部釉面处理,遮挡混凝土截面。
△ 彩釉栏板节点
综合考虑到实用性和外观效果,两户阳台之间的分户隔断,我们下半部分采用实墙,上半部分采用彩釉玻璃,住户实用性和私密性兼备,也保证了阳台界面的连续性。
△ 实体栏板与玻璃结合的分户方式
人性化的室内防护栏板设计,将室外金属型材窗套延伸到室内,与室内防护栏杆形成一个整体,受力构件和扶手都与窗户划分保持一致,同时将栏板上下都留有空隙,为住户清洁玻璃时带来方便。
![]()
△ 室内栏板节点
![]()
天然石材是高端住宅的主要外墙材料,与大量的玻璃共同构成更有识别性的立面形象。
![]()
![]()
△ 4,5#楼 南立面材质分析
![]()
△ 多种比对石材和蓝眼睛石材
![]()
经过多轮现场实体样板比对,我们选择了暖灰色的石材。并以两个不同的模数,进行了错缝划分,竖向拼接,强化垂直感。
△ 离缝石材幕墙节点
![]()
关于金属型材颜色,也做了两种色彩区分。立面实虚交界处型材框都选用亮银色喷涂,玻璃划分立挺保持与玻璃一致,选用深灰色喷涂,这样形成两个立面层次,强化了洞口边界的精致度。![]()
![]()
在不突破限高的基础上,通过顶层设置构架,以折板的语言将外立面幕墙延伸到设备层,将电梯机房隐藏到了立面的背后。
△ 高层楼顶电梯房
结语
城市住宅的商业化开发模式,决定了业主的本质诉求是价值更大化。价值可分为两类:一类是短期的资金回笼,是可持续的前提;一类是业主的品牌效应,来自于市场、客户、政府的认可度,会在未来的土地和销售市场上带给业主独有的竞争优势。因此,做住宅设计时,我们首先要尊重这一客观规律和事实,在换位思考后,通过自身的专业技术知识,完成设计范畴的本质工作,作为整个大产业链中的一环,来协助业主实现价值更大化。![]()
其次,做住宅设计需要“接地气”,开发商不是最终用户,因此我们需要面向大众,贴近生活,只有尊重终端用户的意见,才有可能赢得市场。324套大户型,8个月清盘,作为2017年杭州唯一均价超5万+的“光年盘”,涌璘府成了当年的杭州楼市大赢家。虽然市场销售状况取决于多方因素,但这其中,好的设计一定有相应的价值溢出。对于建筑师而言,房子卖得好,总归是一件令人愉悦的事,也会因此获得业主更好的信任。
![]()
同时,在经历这个项目的全过程后,我们深刻认识到好业主的重要性,以及在设计过程中和业主之间信息互动的重要性。不同的业主、不同的诉求,用不同的策略来灵活应对,在充分尊重诉求的前提下赢得业主的信任,在信任的基础上才会有平等的对话权和引导权,分歧碰撞往往会催生出更好的产品。
![]()
△ 单体模型
诚然在国内大背景下,资本和市场的价值取向、家庭生活方式的固化、人员构成的稳定性等确实让住宅在规划及建筑本体设计创新上阻力重重,但个人认为在住宅设计中建筑师还是有责任保持一定的创新意识,逐步引导健康的生活方式和居住文化。
因为,对于一个建筑来说,所谓设计的创作空间可能远远不止一个层面,包括了从前期概念、规划布局、空间结构、到立面形态、材料构造、技术实施等,针对项目不同的条件,总有机会寻找到合适的爆发点,在限定中寻求自由。住宅产品力的迭代,一定还是需要创新力来推动实现。
2020年3月于杭州
撰文/主创:孟凡浩
建筑设计:gad · line+ studio、浙江绿城建筑设计有限公司
景观设计:IPD澳洲艺普得
幕墙设计:浙江中南幕墙科技股份有限公司
建筑面积:77078㎡
业主:融创东南区域集团
摄影:陈曦、李伟、黄金荣、周凯、王骁、光影
![]()
孟凡浩
gad · line+ studio 联合创始人& 主持建筑师长期致力于城市营造和乡村激活双线并行的创作实践,积极探索并思考现有体制与社会发展现状下城市环境改善和乡村激活振兴的可能性。直面市场化设计,以专业化的职业精神提升设计附加值,实现价值共享。尤其擅长在诸多限定条件下的产品创新和模式探索,先后为融创、旭辉、麓湖等顶级地产品牌进行创新产品系列的研发设计,一系列成功案例赢得了业界良好的口碑。
欢迎加入
住宅设计-交流群A
![]()
群满员后
可以联系小编
微信:huxingtuan001
推荐一个
专业的地产+建筑平台
每天都有新内容
扫描二维码关注
![]()
微信公众号“搜建筑”(ID:sjz9999)
合作、宣传、投稿
请加小编微信:soujianzhu2