【AT导读】本期“AT作品”聚焦静安区档案馆和社区文化中心。设计从项目的公共性塑造出发,通过建立一个整合共享、立体串联的“公共空间体系”,打破两个机构固有的行政权属边界和空间使用边界,塑造面向城市的,可知、可感、可达的城市性公共文化空间。从设计的核心理念出发,详述项目实践过程中面临的设计挑战和应对策略。项目位于上海市灵石路与平型关路交叉路口,原为社区文化中心规划用地,拟通过增加社区服务设施为大宁社区提供高品质的公共服务,构建公共设施多元融合的15分钟生活圈。随着项目所在的闸北区并入静安区,用地规划调整:将原本位于大统路高层办公楼内、与区政务中心合用的静安档案馆迁入,以此解决档案馆的扩容问题,同时辐射和带动周边区域文化整体发展和文化内涵提升,引导都市文化氛围“跨河北上”,推动苏州河以北地区的文化设施建设。在紧凑的可建设用地中,既需要为静安区档案馆提供扩容库房和各类业务用房,还要为大宁街道提供一个集剧场、图书馆、活动教室等多种功能的社区文化中心。项目成为由两家机构共同管理、运营的复合型公共服务设施。作为新静安的重点建设工程,本项目肩负了城市更新语境下,激发街区活力和更大区域范围内城市复兴的重任。2017年我们着手项目方案设计之时,已有其他设计单位进行了多轮方案比选,多采取将两馆分区域布置,共用中庭但互不干扰的常规布局方式。我们认为需要对设计命题进行更深层次的思考和解读,找到一种突破常规而又实现双赢的方式。作为高密度城市环境与城市更新语境中的复合型公共机构,我们梳理出项目面临的建筑本体与城市关系上的双重挑战。(1)项目为政府出资建设,权属方为静安区机关事务管理局,使用方为静安区档案馆和大宁社区活动中心。两个机构空间功能类别多样、差异大、数量庞杂。在紧张的城市用地中并置两个不同属性的公共机构,设计应该如何回应不同使用方提出的行政权属边界与空间使用边界。(2)面对推动城市复兴、塑造新地标的潜在要求,建筑形象是否具有标志性成为了方案决策的重要标准。设计应该如何塑造这一复合型公共机构的城市形象,使其既能彰显档案馆的文化气质,又能贴合社区氛围,重塑街区活力,提升区域文化形象,成为另一大挑战。档案馆和社区中心的本质属性是服务公众,创造符合时代要求的公共建筑空间,进而塑造更好的城市公共空间,成为应对和解答设计挑战的关键。因此,设计面临的两大挑战指向同一个命题——城市建筑的公共性。公共性的含义随着社会环境的差异而产生变化,主要包括社会交往和政治参与两方面[1],我们重点关注前者——公共生活,即不同社会群体之间的共存、交流和融合。城市(建筑)空间公共性的构成维度,可以概括为所有权、管理、可达性、使用/使用者、意义等[2]。其中,可达性是指公众进入空间、使用空间资源以及获取空间信息等的能力;使用/使用者是指空间用户的自身行为及对该空间的感知。公共空间的意义,除了允许差异性共存,更重要的是通过对空间的使用,不同的社会群体都能丰富自己的社会生活,获得一种有利于自身和城市发展的公共意识。关于本项目公共空间的可达性、使用者和意义维度的研究是本次设计思考的起点。档案馆和社区文化中心虽然管理权分属不同机构,各自具有不同的行政管理诉求,但二者均具有服务公众的本质属性。档案馆不仅是静安区档案归纳、整理、查阅的市政机关,也承载了越来越多的公众服务功能,如市民历史信息查阅、爱国主义教育等;社区中心更是以服务公众为前提,进而激发社区的归属感和凝聚力。两机构的功能空间中,具有一系列自由出入(可达性)、无差别对公众开放使用(使用者)、包容和激发各类社会交往活动(意义)的功能空间。因此,我们希望将两馆共同面向公众服务的功能空间整合共享,形成一个自由可达、立体多层次的公共空间体系。这一体系尝试打破行政管理权的障碍,使两个机构有了共建、共享、共治的区域,从受众的角度创造公共空间,从封闭走向繁荣。通过城市建筑公共性的塑造,孕育出富有生活气息的氛围和环境,使社区民众更好地融入彼此,激发街区活力,促进社区公共环境和文化发展。4.1 立体串联——打破行政权属边界,创造“诗意”的公共漫游路径
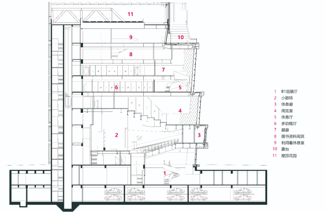
梳理两个机构的功能空间,提炼出二者共同服务公众并最具开放性的功能空间——档案馆展厅、社区影剧场、社区图书馆、档案馆开放阅览室、档案馆多功能厅、休息室、屋顶花园等,再根据空间活动的动静、使用频次高低等原则立体排布,串联衔接,形成从负一层贯通至屋顶的、完全向公众开放使用的连续性公共空间体系。其他功能空间围绕这一体系呈L形分层布置(一至三层为社区文化中心,负一和四至八层为档案馆),其中需要独立管控的功能用房(如档案馆库房、业务用房等)通过门禁系统与公共空间体系隔离,流线互不干扰。立体串联的公共空间体系促成了两馆空间的整合共享,使公众对于空间的使用更加自由,从而消弭了两个不同管理机构对空间使用的影响,在建筑内部创造出一条打破行政权属边界的公共漫游路径。我们希望在这条“诗意”的自由之路上可以纵览整个建筑(从B1层漫游各层到达屋顶花园),最大程度实现空间可达性,获得公众对于公共性的理解和共鸣,从而参与和创造属于这个时代丰富、多元的公共生活。4.2 折叠嵌套——打破空间使用边界,营造公共空间的丰富性上述公共空间体系中,展厅、小剧场、阅览室三个公共空间剖面形成了有趣的嵌套叠加:二层小剧场起坡的地面和顶面可以分别构建出负一层展厅向上引导视线的顶面和三层阅览室阶梯式、可兼做书架的地面。这个剖面形式显示出连续界面通过折叠操作构建、连接空间的潜力。因此,我们选择利用板的折叠将各层公共空间嵌套其中:负一至四层组织展厅、小剧场、阅览、档案查阅接待厅等高大空间,五至八层进一步将档案馆多功能厅、展廊、利用者休息室折叠嵌套,以连续的折板构建出完整的公共空间体系。折板的连续性将功能空间与交通空间、休息空间整合连接,例如小剧场和阅览室作为地面的折板,以及四层接待厅作为侧墙的折板都兼具楼层间的竖向公共交通功能,在紧凑的建设条件下创造出既满足功能使用,又更加高效、复合、开放的公共空间。空间的连续性激发视线、行为的连续性,利用折叠嵌套的设计操作,打破了公共空间的使用边界,空间不再被单纯的功能定义,而是衍生成为一个更具弹性和开放性的社会交往的容器。4.3 延展外显——打破建筑形态边界,塑造城市公共空间的开放性立体串联、折叠嵌套的公共空间体系位于建筑西南部,结合折板的延展外显,构成朝向城市转角的主要立面形态。设计希望通过透明的玻璃界面和出挑的折板平台,将建筑内部活跃的公共活动空间向城市空间延伸,使建筑内部的公众空间体系转化为面向城市的,可知、可感、可达的城市性公共文化空间。而项目除建筑以外,还包含了地块转角公共绿地的景观场地设计,除了在设计语言上采用整体协调的线性要素,我们在绿地之中特意设计了通往建筑西南转角玻璃幕墙的景观步道,使城市公共绿地中活动的人们在散步游憩之余也能欣赏到(负一层)展厅的展示内容与活动。通过建筑-城市性公共活动的联动,真正打破封闭式街区的城市边界,提升街区文化内涵,塑造高品质的城市公共空间。![]()
设计的初衷并非追求标新立异的形态,建筑形态是在公共性理念构建下的内部公共空间系统的外化呈现。建筑的外部形态因为公共性的“极致呈现”而获得了一种个性化的、“地标性”的外部特征,最终得到一个“城市景窗”。“城市景窗”部位由多个跨层挑空的公共空间构成,我们希望结构能够尽可能轻巧和简洁。因此设计提出利用建筑形态要素和空间特征整合结构体系的策略:底部利用剧场空间的两片顺应座位起坡的高大侧墙做钢板混凝土异形墙体,上部承托两棵转换柱,跨越社区阅览、多功能厅等高大空间,保证空间开敞少柱。城市景窗部位结构体系复杂, 利用建筑空间要素整合结构要素,形成“下撑上吊”的结构体系七、八层与屋顶层,利用小空间技术用房等设置辅助斜撑和桁架,总体形成下撑上吊的结构体系。该策略得到了结构专业的认可,并深化实施。最终实现了结构要素最大程度契合建筑要素,结构受力体系整合进建筑叠加的空间形态之中的效果。“城市景窗”将建筑内部丰富多彩的公共活动向城市传达,因此,界面的通透性是公共性品质的重要保证。经过深入的设计研究和论证,我们选择了满足自遮阳要求、附加构件最少的“全玻璃幕墙”系统,通过玻璃参数的调节实现节能要求,同时有效减少高大空间遮阳构件的运维成本。▲超大跨度斜玻璃肋幕墙系统 ©华建集团上海建筑科创中心项目南侧为高层住宅区,光环境评价标准对玻璃反射率要求极为严苛,这成为使用玻璃幕墙的另一挑战。为提高面板玻璃的反射率,保证通透性,南侧玻璃幕墙向外倾斜4°,这也从竖向上契合了建筑斜向线条的形态特征。本项目成为上海首例在高层建筑中采用超大跨度斜玻璃肋幕墙系统的项目,为光敏感区域塑造高通透性要求的公共建筑提供了新思路。作为公共建筑,多个跨层挑空空间的玻璃肋高度超限使造价增加,这会提升公共资金的投入。设计在不影响整体效果的前提下采取了多项折中技术处理手段减少单块玻璃肋跨度,在降低造价的同时尽可能保证效果的美观和整体空间的协调。景窗部位通透的界面也将城市图景纳入建筑内部,城市生活成为建筑内部生动而独特的空间背景。考虑到人的尺度范围内休息、停留以及观景的空间品质,设计通过各专业的协同工作,尽可能将景窗界面相关的各类幕墙构件、机电设备等归并统一,力求使用隐藏式节点。为了将玻璃肋顶部和底板约0.5m高的巨大金属夹具隐藏在结构和吊顶空间中,所有涉及玻璃幕墙的板边均做局部的降板处理,并利用产生的凹槽整合泛光照明、排水、空调系统等。由于景窗部位本身形态不规则且具有大量斜向折板,隐藏式的节点设计对结构、机电和幕墙系统的设计、安装提出了非常严格的要求,我们不仅要利用尽可能详细的节点图纸指导施工,还要通过频繁的现场配合确保施工质量。通过各方努力,最终保证了室内空间延展外显、内外交融的视觉效果,以及纯粹简洁的公共空间的高质量呈现。建筑材料选择的最大难点在于大面积的折板区域,材料不仅影响建筑形态效果,更决定了内部空间的品质和氛围。考虑到项目作为服务公众,尤其是服务周边社区民众的公共机构,我们首先决定地面使用具有亲和力、舒适和自然的木地板,然后根据防火、耐久性、造价等要求在室内墙面、顶面和室外折板区域采用木纹铝板。从最终的实施效果来看,暖色调的、具有拼接木纹肌理的折板恰到好处地营造出我们所期望的,具有公共性的空间品质,并使城市景窗的公共空间体系在整个建筑中更易于识别和理解。在细部处理上,由于负一层到屋顶层公共空间体系中的垂直交通空间结合折板的形态操作造型各异,总计10部公共楼梯的空间形态、材料和节点做法不尽相同。每一部楼梯都经过细致的设计和细部推敲,保证了在整体统一协调的基础上,为公众带来尽可能丰富的空间体验。如今,上海城市建筑公共空间的建设已经发展到新的阶段,公共空间的塑造更加注重公众使用和空间营造,这为创新社会需要开展的碰撞和交流提供了城市框架和场所。我们期望通过“打破边界,整合共享”这样一种突破常规而又符合时代精神的空间类型尝试,打造一座真正具有公共性内涵的城市建筑。随着项目的建成(还未投入使用),我们得到了来自业主和使用方的高度评价,建筑的空间品质颠覆了他们对于档案馆和社区中心的既定印象,甚至称之为“艺术品”,这无疑是对我们付出巨大精力和心血的肯定和褒奖。但对我们来说,更大的褒奖来自于设计的创新改变了公众对空间的参与、使用方式,也改变了公共机构所有者、管理者和运营者的思维方式,才使得项目历经重重挑战而最终落地实现。这是设计师为更美好的城市生活做出一份贡献初心的实现,更是一种追求、理想,甚至是价值观的实现。设计团队:范一飞、杜进、田晓晓、汪静、王逸清、
沈旻琪(建筑);周健、丁生根、陆思佳(结构);王晔、
殷小明、沈忱、黄辰赟、沃立成、陈立宏、张威(机电);龚伟(智能化);文勇、谢东、赖文莲、彭欣(室内);鲁世伟、周际(声学、舞台工艺);缪海琳、徐天择
(泛光照明)。摄影:是然、三千影像、杜进
华建集团建筑专业副总师、科创中心创作研究中心主任。华建集团科创中心创作研究中心主创建筑师。
[1]陈竹,叶珉. 什么是真正的公共空间?——西
方城市公共空间理论与空间公共性的判定
[J]. 国际城市规 划,2009,24(3):7.[2]王明杰,李晓月,王毅. 西方学界公共性理论
研究评述及展望[J]. 公共管理与政策评论,
2021,10(4):14.