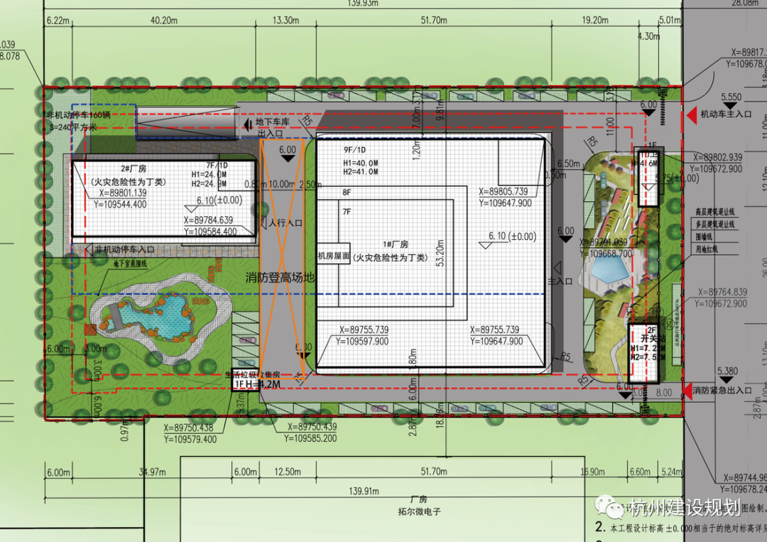
杭州迈伺特科技有限公司拟在杭州钱塘区建设杭钱塘工出【2022】29号地块迈伺特智能装备产业化基地项目。项目地块东至青西四路,南至工业用地(拓尔微电子),西至规划工业用地,北至工业用地(秋光光电)。建设单位已委托设计单位按城市规划要求、相关规定、建筑设计规范等进行方案设计。现将总平面图、主要立面图及效果图等予以公示。
公示时间自2022年11月10日至2022年11月19日。若有意见请于2022年11月21日前反馈至相关单位。涉及重大利害关系的,利害关系人如需申请
杭州市规划和自然资源局钱塘分局电话:0571-82987941建设单位:
杭州迈伺特科技有限公司电话:400-100-1011设计单位:
华设设计集团有限公司电话:17816129552
附注:
1.如对公示内容有不明确的地方,请向建设单位咨询。
2.该图为方案示意图。
3.其他公示方式:钱塘区行政服务中心一楼大厅(大江东)、河庄街道办事处、项目现场。
4.本次公示方案中若涉及环境影响、安全生产等问题,以主管部门审批意见为准。
鸟瞰图
往期回顾