点击↑蓝字,回复“拆迁”查看近期征收公告
老旧小区改造、房屋拆迁征收
一直是宝子们关心的民生热点
每次给大家汇总近期改造/征收公告时
总能收到大量留言
小编们也一直为大家持续关注着
近日,《政府工作报告》公布的
2023年武汉市政府民生实事清单提到
2023年武汉将
✅ 建成棚户区改造住房2万套
✅ 完成老旧小区改造260个
↓ ↓ ↓
图源:长江日报
武汉市将大力实施城市更新,开展“城市更新年”行动:
制定城市更新三年行动方案;
推进三阳设计之都等26个重点单元优化升级;
打造汉阳知音东苑等5个老旧小区成片改造示范点;
完成260个老旧小区改造。
➤汉阳知音东苑改造规划:
作为老旧小区成片改造示范点,在老旧小区改造过程中,知音东苑按照“共同缔造”的思路进行建设,对中心花园实行复合利用改造,拟建一栋集社区服务、停车、康养、文体活动等功能于一体的便民服务设施,缓解居民停车难题,实行人车分流,建造相对集中的人行健身步道,打造休闲生活空间。今年,以此为契机,汉阳还将改造28个老旧小区。
➤武汉部分区此前也公布了2023年老旧小区改造计划:
江岸区:成片连片更新6个基础设施落后的老旧片区,新开工老旧小区改造不少于36个,力争完成开工45个。
江汉区:征收房屋43万平方米,供地240亩。完成51个老旧小区改造。
汉阳区:实施知音东苑等28个老旧小区改造。
青山区:完成26个老旧小区改造任务
洪山区:开工老旧小区改造项目19个;推动街道口、省农科院等片区改造;加快张家湾玻璃厂宿舍片、181厂宿舍片、曹家湾片征收和4个生态底线区城中村“微改造”。
蔡甸区:有序推进蔡甸城关、中法生态城重点片区旧城改造;高标准改造一批老旧小区,加快推动街区微更新、微改造。
黄陂区:完成22个老旧小区改造。
新洲区:完成邾城老旧小区改造2个。
硚口区:完成古田一路下游1.4平方公里海绵城市建设、改造管网缺陷941处,加快老旧小区雨污分流改造,启动太平洋地区渍水点改造。
摄图网_500322227
看到了这些总体的规划
相信很多小伙伴最关心的是
自己家有没有这个机会?
别急,阿萤为大家收集了
近期武汉发布的房屋征收公告
以及官方对部分小区拆迁/改造规划的答复
来看看这次有没有你家吧~
东西湖区人民政府房屋征收决定
(东政征〔2022〕12号)
图源:武汉市东西湖区人民政府(下同)
本征收决定的征收补偿方案为《将军路街八百工棚片旧城改建项目房屋征收补偿方案》,签约期限自被征收房屋评估结果公告之日起1个月内,房屋征收部门为东西湖区住房和城乡建设局,房屋征收实施单位为东西湖区人民政府将军路街道办事处。
一、基本情况
(一)项目名称
将军路街八百工棚片旧城改建国有土地上房屋征收项目
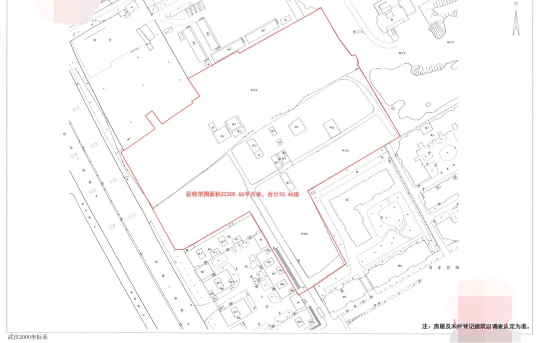
(二)征收范围
位于机场二高速以东、金银潭大道以南、银花街以北区域(详见房屋征收范围附图),房屋征收范围内的土地面积33.46亩。
(三)被征收房屋情况
被征收人9户,征收总建筑面积2051.96平方米,其中已登记建筑面积586.78平方米,未经登记建筑面积1465.18平方米(具体数据以审计结果为准)。
二、征收补偿方式
被征收人可以选择货币补偿,也可以选择房屋产权调换。
(一)货币补偿
被征收人选择货币补偿,房屋征收部门按被征收房屋价值向被征收人支付货币补偿费。
被征收房屋价值补偿费=被征收房屋评估单价×被征收房屋建筑面积(产权登记面积、经认定为合法建筑面积、经认定为历史遗留未经登记建筑按规定打折后的建筑面积之和)。
(二)房屋产权调换
被征收人选择房屋产权调换的,由房屋征收部门提供用于产权调换的房屋。
1. 产权调换房源基本情况
(1)地铁时代·常青城,位于东西湖区金银潭大道车场南路9号,土地用途为住宅用地,交房标准为毛坯现房。
(2)征收部门根据项目实际需要筹集的其他房源。
2. 选房原则
本着先签约、先受益的原则,按被征收人签约并完成搬迁时间顺序,确定选择产权调换房源的顺序。
三、征收补偿的内容和标准
上下滑动查看补偿详情:
推荐服务:以上所有信息仅为方案部分截取,具体征收补偿内容及标准,参见原文征收意见公告,点击下方名片关注武汉本地宝微信公众号,点击菜单栏的【拆迁最新消息】或直接对话框发送【拆迁】,即可找到各区近期房屋征收公告、补偿方案进行查看。
东西湖区人民政府房屋征收决定
(东政征〔2022〕13号)
图源:武汉市东西湖区人民政府(下同)
本征收决定的征收补偿方案为《将军路街乳品厂片旧城改建项目房屋征收补偿方案》,签约期限自被征收房屋评估结果公告之日起1个月内,房屋征收部门为东西湖区住房和城乡建设局,房屋征收实施单位为东西湖区人民政府将军路街道办事处。
一、基本情况
(一)项目名称
将军路街乳品厂片旧城改建国有土地上房屋征收项目
(二)征收范围
位于金银潭大道以北、将军二路以东区域(详见房屋征收范围附图),房屋征收范围内的土地面积87.30亩。
(三)被征收房屋情况
被征收人9户,征收总建筑面积2438.65平方米,其中已登记建筑面积1213.80平方米,未经登记建筑面积1224.85平方米(具体数据以审计结果为准)。
二、征收补偿方式
被征收人可以选择货币补偿,也可以选择房屋产权调换。
(一)货币补偿
被征收人选择货币补偿,房屋征收部门按被征收房屋价值向被征收人支付货币补偿费。
被征收房屋价值补偿费=被征收房屋评估单价×被征收房屋建筑面积(产权登记面积、经认定为合法建筑面积、经认定为历史遗留未经登记建筑按规定打折后的建筑面积之和)。
(二)房屋产权调换
被征收人选择房屋产权调换的,由房屋征收部门提供用于产权调换的房屋。
1. 产权调换房源基本情况
(1)地铁时代·常青城,位于东西湖区金银潭大道车场南路9号,土地用途为住宅用地,交房标准为毛坯现房。
(2)征收部门根据项目实际需要筹集的其他房源。
2. 选房原则
本着先签约、先受益的原则,按被征收人签约并完成搬迁时间顺序,确定选择产权调换房源的顺序。
三、征收补偿的内容和标准
上下滑动查看补偿详情:
推荐服务:以上所有信息仅为方案部分截取,具体征收补偿内容及标准,参见原文征收意见公告,关注武汉本地宝微信公众号,点击菜单栏的【拆迁最新消息】或直接对话框发送【拆迁】,即可找到各区近期房屋征收公告、补偿方案进行查看。
汉正街五彩社区在城市更新及房屋征收计划内
网友:汉正街五彩社区有拆迁计划吗?
图源:武汉城市留言板
硚口区:您所描述的硚口区五彩社区,在硚口区2022年城市更新及房屋征收计划(拆除更新类-旧城旧厂)内。征收的启动需要统筹考虑资金、成本、规划等方方面面,面对硚口“老工业区、底子薄、困难多、任务重”的实际情况,硚口区旧城改造量大,需分年度分片区逐年安排解决。具体启动时间需结合资金、房源等综合因素。项目如有进展,相关信息将会在房屋征收范围内予以公布,请您关注。
硚口区联谊路征收项目进展
网友:硚口区联谊路拆迁进展如何?
图源:武汉城市留言板
硚口区:联谊路片征收项目在2022年11月1日-30日进行了征收补偿方案征求意见工作。截至目前,征收补偿方案(征求意见稿)同意率已经超过85%,已将收集到的意见汇总报至区城更局,待方案下一步修改完善后启动预签约。
江夏区纸坊街拆迁进展
网友:江夏区纸坊街拆迁有什么进展?
图源:武汉城市留言板
江夏区:经江夏区经济开发区大桥产业园工作人员调查核实,红旗村余家嘴片区拆迁工作正在稳步推进中。
摄图网_400149199
新三巷社区已纳入老旧小区项目储备库
网友:新三巷社区未来几年是否有拆迁计划?
图源:武汉城市留言板
江岸区:新三巷社区属于西马街道,暂未纳入房屋征收计划。经区房管局核实,新三巷内围已纳入江岸区老旧小区项目储备库,但年度改造计划及改造时间要结合老旧小区实际情况,按轻重缓急、分步实施的原则统筹安排,尽快解决居民诉求。
花桥一村43号康乐大厦老旧改造情况
网友:花桥一村43号为什么不能老旧改造?
图源:武汉城市留言板
江岸区:花桥一村43号康乐大厦属于商住两用的电梯房,二梯八户共18层,物业公司是兴东物业。前期已将康乐大厦上报至区房管局申请老旧小区改造,但老旧小区改造具体改造位置及项目由区老旧小区改造工作组确定,2022年未接到康乐大厦的旧改通知。后期如再次有上报旧改项目通知且其符合上报条件,将再次把康乐大厦上报。
青山区8-10街坊建设进展
网友:华侨城红坊的红喜字商业区何时启动改造?
图源:武汉城市留言板
青山区:2019年10月,武汉华侨城实业发展有限公司通过公开招拍竞得了红钢城8、9、10(部分)街坊地块,于2022年1月4日签订《国有建设用地使用权出让合同》。近期青山区自然资源和规划分局多次就该事项与华侨城公司沟通联系,该司回复8-10街地块规划方案正在研究编制中,完成后将报房管、城建、规划部门审查。青山区自然资源和规划分局已安排专人积极跟进服务该项目,做好红房子保护、活化和利用工作。
摄图网_500739455
想要第一时间获取
武汉各区的拆迁征收、老旧改造规划吗
快来加入武汉本地宝各区街坊群吧
不仅可以一起分享各区新鲜事
还能咨询小编各种办事问题哦
东西湖区、青山区的小伙伴
可以长按识别下方二维码进群
相信武汉会建设得越来越完善
给咱们提供更好的生活环境
-END-
右下角,您点+
小编工资涨1毛
(可点击屏幕滑动)
进入【武汉本地宝】公众号回复以下关键字:
回复【1】查询公积金及办事指南
回复【2】查看武汉落户政策及指南
回复【保租房】获取房源和申请指南
回复【发热】查询武汉发热门诊名单
回复【抗原】获取武汉抗原购买方式
回复【新冠疫苗】获取接种预约指南
回复【核酸】获取武汉核酸检测点位
回复【升学】获取学区划片相关信息
回复【买房】查看武汉买房政策房价
回复【社保】获取武汉社保办事指南
回复【HPV】获取hpv疫苗预约指南
回复【地铁】获取武汉地铁最新规划
回复【旅游】获取武汉景点推荐攻略
回复【进出汉】获取进出汉最新政策
▌来源:长江日报、武汉市民热线、武汉城市留言板、武汉市东西湖区人民政府、本地宝综合(内容来自网络,武汉本地宝收集整理,如有侵权,请告知删除)
▌文章及封面图片来源:图虫创意,摄图网已获平台授权
▌编辑:阿萤
戳↙链接,获取武汉各区交流群入口~