* 欢迎将筑境设计设为星标公众号
不错过任何精彩资讯*
在上海市建筑学会第八届建筑创作奖中 ,筑境设计联合首钢国际工程公司设计的首钢老工业区改造西十冬奥广场项目(N3-3转运站等7项)荣获上海市建筑学会第八届建筑创作优秀奖。
▲ 透过保留天车梁看员工餐厅©筑境设计
历史沿革
1901年到1936年,从清末新政到民国渐成,中国民族资本主义工业得到了长足发展。1919年孙中山先生在上海完成《实业计划》,系统阐述了开发中国实业的途径、原则和计划,提出了以国家工业化为中心推动中国经济全面近代化的建设规划,更是系统阐述了“实业救国”的思想和实施线路。
1914年,第一次世界大战爆发,钢铁成为极其紧缺的战略物资。中国国内亦掀起大办钢铁实业的潮流,上海的兴和铁厂,山西的阳泉铁厂都是这个时期兴建的炼铁企业,首钢的前身龙烟铁矿也就诞生于这一时期。1914年,北洋政府农商部矿政司瑞典顾问安特生等人陆续在河北龙关、庞家堡、烟筒山勘察发现赤铁矿床。
▲ 石景山炼厂建厂初期从美国进口的高炉©首钢集团新闻中心
1919年,北洋政府投资250万银元,由财政部次长陆宗舆督办筹建,成立“官商合办龙烟铁矿股份有限公司”。同年,成立“龙烟铁矿股份公司石景山炼厂”,即目前北京首钢集团的前身。
▲ 1922年4月黎元洪大总统视察石景山炼厂©首钢集团新闻中心
解放前,民国积弱,厂区管理废弛,多年几乎未炼出一滴铁水;解放后,首钢人战天斗地,敢为天下先,在1994年勇夺全国产钢量佳冠,并逐渐成长为跨行业、跨地区、跨所有制、跨国家经营的特大型企业集团,首钢走出了一条自主创新不断奋进的民族工业振兴之路。
新的契机
2016年3月,北京市政府确定2022年冬奥会办公园区选址落户百年首钢,西十冬奥广场由此诞生。冬奥广场选址位于首钢旧厂址的西北角,地处永定河石景山以东、阜石路以南、秀池以北、北辛安路以西。项目得名于基地所在地北侧的原京奉铁路西十货运支线,这也是首钢在一个世纪前的建设起点。
▲ 项目区位©筑境设计
▲ 冬奥广场总平面©筑境设计
冬奥广场基地南侧的秀池和西侧的石景山山体及永定河生态绿廊,为项目带来了绝佳的外部山水自然环境。而与之对应的则是基地内部的筒仓、料仓、供料通廊、转运站及供水泵站的密集布局,它是园区一号、三号炼铁高炉炼铁工艺的复杂巨系统中的重要组成部分。这一密集供料区的转运站、料仓、筒仓和泵站等九个工业遗存,正籍由冬奥的强大助推,被改造为集办公、会议、展示和配套休闲于一体的综合园区。
▲ 改造前的冬奥广场整体鸟瞰©首钢集团新闻中心
▲ 改造前的联合泵站©筑境设计
▲ 改造前的餐厅和N1-2转运站©筑境设计
▲ 改造前的N3-3转运站©筑境设计
在城市产业结构调整驱动下转移产能后,将老工业区改造为冬奥办公园区,不仅是局部应激性改变园区停产后萧瑟的现状,更是希望这座承载了北京百年民族工业梦想的十里钢城能够以此为契机凤凰涅磐,为非首都核心功能外迁后工业转型带来的社会问题寻找出路。
尊重工业遗存
面对厚重的历史,对基地保持足够的敬畏理应是最朴素的出发点。设计希望通过“忠实的保留”和“谨慎的加建”将工业遗存变成崭新的办公园区,赋予老旧的建构筑物第二次生命。
要想保留原有遗存的混凝土和钢框架,就必须不破坏其自身的结构强度。设计把原有结构空间作为主要功能空间使用,而把楼电梯间外置,这样既不打穿原有楼板,又通过加建补强了原结构刚度。同时,通过碳纤维、钢板和阻尼抗震撑等手段对原有主体结构加固以适应新的功能需求,类似结构构建也作为了建筑立面核心表现的元素。轻质的石英板材和穿孔铝板的使用也契合了改造建筑严控外墙材料容重的原则,避免给原有结构带来过大结构负荷。
由此,建筑造型忠实呈现出了“保留”和“加建”的不同状态,表达了对既有工业建筑的尊重。
▲ 各转运站保留原结构并外置交通空间的改造策略©筑境设计
对话自然景观
基地西侧石景山和南侧秀池水体为项目在拥有强烈工业感的同时,设计在150米长的原有联合泵站构筑物改造中,打破“封闭大墙”,植入开放式景观廊道、主入口通廊和公共空间,让园区内外景观能积极对话。基地内15棵被定点保留的大树,也成为了石景山景区向园区内部绿色渗透的最佳绿色桥梁。
设计师为园区设置了一条穿行于建筑之间和屋面的室外楼梯+栈桥的步行系统,这为整个建筑群在保持工业遗存原真性的同时叠加了园林化特质。整组建筑就是一个立体的工业园林,步移景异间,传递出一种中国特有的空间动态阅读方式。
▲ 联合泵站空间通廊关系©筑境设计
▲ 立体步行系统©筑境设计
▲ 主控室与N3-3转运站间的连桥©筑境设计
▲ 联合泵站改造办公楼东立面及开放楼梯系统©筑境设计
院落尺度的建构
作为一、三号高炉的主要供料区,区域内原有料仓、转运站和皮带通廊等工业遗存都是完全依据生产的工艺流程而布局的,缺少城市空间的秩序感,巨型工业尺度也让人缺乏亲近和安全感。
设计在几十乃至上百米的工业尺度和精巧的人体工程学尺度之间植入了一到两层的中尺度新建筑,锈蚀耐候钢门头、玻璃门厅和边庭、遮阳棚架等建构筑物尽力弥合了原有大与小尺度的差异。保留的锅炉房小水塔改造的特色奥运展厅和干法除尘器前压差发电室改造的咖啡厅等一系列和人性尺度相关的小尺度建筑也为园区塑造细腻丰富的尺度关系增添了精彩的亮色。
▲ 空间尺度植入和缝合关系©筑境设计
▲ 近人空间的尺度缝合©筑境设计
人性空间的回归
通过上述一系列插建和加建的建筑,原有基地内散落的工业构筑物被细腻地“缝合”了起来,工艺导向下建立的布局被巧妙转化为一个景色宜人、充满活力的不规则五边形院落。
“大院”是老北京最充满人情味的一种居住和工作的空间模式,设计正是希望以“院”的形式语言回归东方最本真的关于“聚”的生活态度。这样的院落气质是摆脱了工业喧嚣之后的宁静和祥和,体现了后工业时代对人性的尊重,也是顶级花园式办公所必须的特质。
▲ 冬奥广场南区的五边形“工业大院” ©筑境设计
▲ 南侧院落核心“天车广场” ©筑境设计
建造过程的偶得与憾失
联合泵站西侧的原锅炉房小水塔是设计踏勘时被建议保留的一座小构筑物,精致而出彩。水塔一楼的半开敞环形吧台让它成为了展厅的有机组成部分,二楼开出的四个窗洞则分别向四个方位指向功碑阁、三高炉、秀池和天车广场,形成独具魅力的框景,我们称之为“首钢之眼“,通过它,可以以一种切口的方式一窥园区重要工业景致。
▲ 锅炉房小水塔改造的特色奥运展厅咖啡吧和“首钢之眼“
©筑境设计
干法除尘器西侧的压差发电控制室是另一处妙手偶得。为凸显干法除尘罐体和检修平台间强烈富有蒙德里安色彩的横纵体型对比,现场决定拆除遮挡罐体的五层高控制室。当拆除到仅剩一层时设计现场的当机立断留下了一个既不遮挡罐体,又具有同样水平感气质的建筑框架,正是它摇身一变,成为了星巴克在北京最具工业风的冬奥园区店。
▲ 干法除尘器前压差发电室改造的咖啡厅©筑境设计
为了凸显工业构架的力量美,避免因为开启扇的凌乱弱化遗存与插建间的虚实体量,设计采用了垂直彩釉飞翼、水平遮阳百叶、折尺形玻璃飞翼和穿孔板等多种遮蔽方式以及双层幕墙空腔及内天井排风等手段,希望外墙开窗尽可能消隐。但事与愿违,办公楼的使用方希望多数房间可以直接在幕墙上手动开窗,这较大颠覆了原有开窗系统,对立面效果有一定影响。
▲ 对开启扇的遮蔽方式©筑境设计
料斗展厅是另一个比较遗憾的部分,因为某些展陈专家对于展厅“宽敞通透”的意见,已经施工的七个料斗被拆掉了六个,彻底面目全非。一句普世价值的“标准”剥夺了一个具有唯一性的工业展厅的价值,这让我们充分认识到在重塑工业遗存的审美道路上还有很长的路要走。
▲ 料斗展厅的原设计©筑境设计
冬奥广场对工业遗址复兴的意义
西十冬奥广场是首钢北区落地实施的第一个项目,也是北京市政府支持首钢转型积极导入的核心功能。它是首钢北区乃至整体园区功能定位落地的核心锚固点和撬动点。
“织补”、“链接”和“缝合”的设计手法,重新以人作为本体梳理了建构筑物的空间尺度关系。设计中尽力保留工业遗存的态度,为尊重历史、发掘工业遗存价值,奠定了一个良性的基调。
▲ 北侧俯瞰冬奥广场夜景©首钢集团新闻中心
▲ N3-2转运站改造办公楼及加建国际会议中心©筑境设计
▲ N1-2转运站、员工餐厅与南六筒仓围合形成的筒仓街
©筑境设计
▲ 总平图©筑境设计
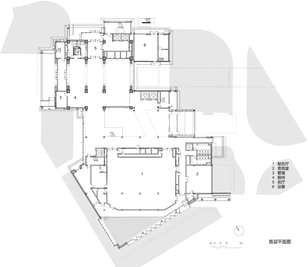
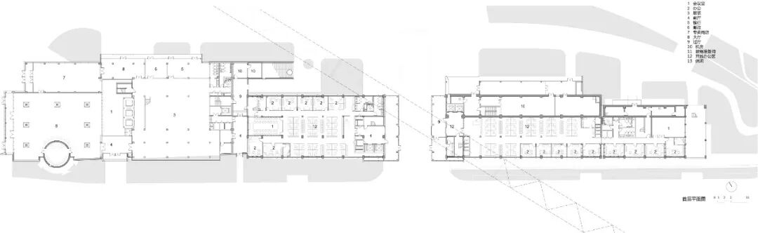
▲ 员工餐厅及N1-2转运站一层平面©筑境设计
▲ 联合泵站一层平面©筑境设计
▲ N3-3转运站及原料主控室一层平面©筑境设计
▲ N3-2转运站及会议中心一层平面©筑境设计
工程档案
建设地点:北京石景山首钢厂区北区
创作时间:2016.3–2016.10
建成时间: 2017.8
项目规模:8.7万㎡
建筑结构:框架结构、钢结构
项目业主:北京首钢建设投资有限公司
业主设计管理团队:王世忠、刘桦、金洪利、王达明、白宁、段若非
设计单位:筑境设计、首钢国际工程公司
项目负责人:薄宏涛、朱江、李慧
方案(筑境设计): 薄宏涛、蒋珂、朱江、张洋、王增、范丹丹、辛灵、俞鹏伟、张泳强
施工图设计团队
建筑(筑境设计):薄宏涛、赵嘉康、朱江、张洋、高巍、张志聪、陈玮楠、邢紫旭、朱雪云、范丹丹、蒙治银、张泳强
结构机电(首钢国际工程公司):侯俊达、袁文兵、陈罡、李慧、袁霓绯、张悦、王洪兴、林莉、王静、宋鹏宇、于立峰
景观设计(北京清华同衡规划设计研究院有限公司):
朱育帆、姚玉君、孟凡玉、田锦、赵佳萌、朱思羽、常湘琦、高露凡、易文静、孙宇彤、王晓玲、于淼、鲁键盈、张瑾渝、张皓、李燕、何晓红(结构)、张跃(水)、张美霞(电)
照明设计(清华大学建筑学院张昕工作室,同原(北京)照明设计有限公司):
张昕,韩晓伟,赵晓波,王丹,周轩宇,牛本田
(冬奥广场料仓和南六筒仓办公楼分别由华清安地、英国思锐、和比利时戈建筑设计,倒班宿舍及能源楼由中国院李兴钢工作室设计。)