2015年秋,筑境设计连续参与了西十冬奥广场联合泵站、倒班宿舍的设计投标和三座转运站的改造工作。以此作为时间的起点,在其后的七年里,筑境全情投入,沉浸式参与了首钢园区的大量更新工作。团队先后完成了北京首钢园区西十冬奥广场、国家体育总局冬训中心、三高炉博物馆及全球首发中心、星巴克冬奥园区店、北七筒仓RE睿.国际创忆馆、洲际智选假日酒店秀池店、首钢网球馆和洲际冠军酒店、北京六工汇、金安桥工业遗址公园及交通一体化、制氧厂南片区、北京首钢一高炉So Real超体空间5GVR乐园等建筑更新项目;配合北京市规划设计研究院完成了首钢园区北区两湖片区城市设计、首钢园区南区城市设计、首特钢片区城市设计、首钢园区1609街区城市设计工作;与清华院、北京院、意大利LCR、首钢院等兄弟单位合作完成了2022冬奥会单板滑雪大跳台、中国国际服务贸易交易会北京首钢园展区、北京首钢香格里拉酒店等项目,为打造首都城市复兴新地标做出了出色的贡献。
关联作品先后入选2017佛罗伦萨建筑周、2018圣彼得堡艺术周、2018巴塞罗那设计周、2017-2018北京国际设计周,2019-2021中国建筑设计博览会、2018威尼斯双年展首钢“铸忆”城市复兴成就展、2018首尔世界建筑师大会、2019上海城市空间艺术季、2020威尼斯双年展中国国家馆主题展、2021里约世界建筑师大会等一系列国内外重要展览,获得了广泛的国际反响。
在2022北京冬奥会成功召开之际,我们推出“筑境的首钢实践”系列推文,回顾过往七年间,筑境在首钢园区打造城市复兴新地标进程中完成的一些主要作品,致敬我们所身处的这个伟大的时代,致敬首钢存量更新的重要历史进程,致敬每一个曾为之努力和拼搏的筑境人。
今日推出“筑境的首钢实践”系列推文第1篇——2022冬奥组委西十冬奥广场办公园区,“料仓大院”园林化再生,华丽转身为北京冬奥面向世界的展示窗口。
[PROJECT 01]
2022冬奥组委西十冬奥广场办公园区
2022冬奥组委西十冬奥广场办公园区选址位于首钢旧厂址的西北角,地处阜石路以南、北辛安路以西。基地南侧的秀池和西侧的石景山山体,为项目带来了绝佳的山水自然环境。
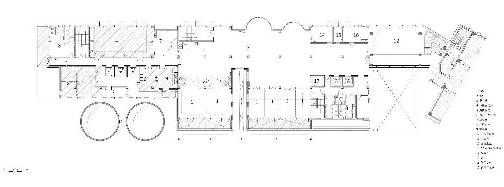
项目总建筑规模约为86500平方米,主要功能为办公、会议、展示及其配套服务设施;项目共计十个建筑单体子项:N3-3转运站、N3-2转运站(含会议中心)、N1-2转运站、员工餐厅、主控室、联合泵站(含展示中心)、北七筒仓、干法除尘、停车楼;其中停车楼为新建,其他子项均为既有工业遗存改造或加建。
△总体规划动画
△冬奥广场鸟瞰图©王栋
△N3-3 转运站与原料主控室 ©陈鹤
在谨慎保留原有建筑钢结构和混凝土结构的基础上,设计保留原有结构空间作为主要功能空间使用,交通核服务空间以钢框架外置。这样,建筑造型忠实呈现出了“保留”和“加建”的不同状态,表达了对既有工业建筑的尊重。
△联合泵站 ©陈鹤
△联合泵站 ©陈鹤
△联合泵站 ©陈鹤
设计在原有工业建筑“封闭大墙”中植入开放式景观廊道及公共空间,建构园区内外景观的积极对话关系,基地内被谨慎保留的大树也形成了石景山景区向园区内部绿色渗透的最佳软连接介质。
△N3-3 转运站 ©陈鹤
在建筑尺度的整合策略上,设计对巨大工业尺度和人体尺度进行了柔和的缝合,中尺度新建建筑的介入弥合了原有大与小尺度的差异,形成了丰富的有机整体。
△员工餐厅 ©陈鹤
穿行于建筑之间和屋面的室外楼梯及步廊系统为整个建筑群在保持工业遗存原真性的同时,叠加了园林化特质。整组建筑就是一个立体的工业园林,步移景异间,传承了中国园林的古典空间序列之美。
设计通过众多近人尺度的插建和加建细腻地缝合了原有基地内散落的工业构筑物。营造出了景色宜人、充满活力院落,以“院”的形式语言回归了东方最本真的关于“聚”生活态度。
△联合泵站 ©陈鹤
△N3-2 转运站 ©陈鹤
△N3-2 转运站 ©陈鹤
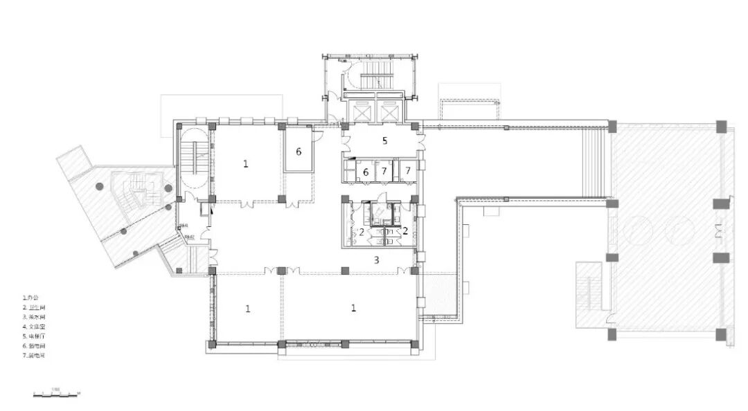
△冬奥广场总平图
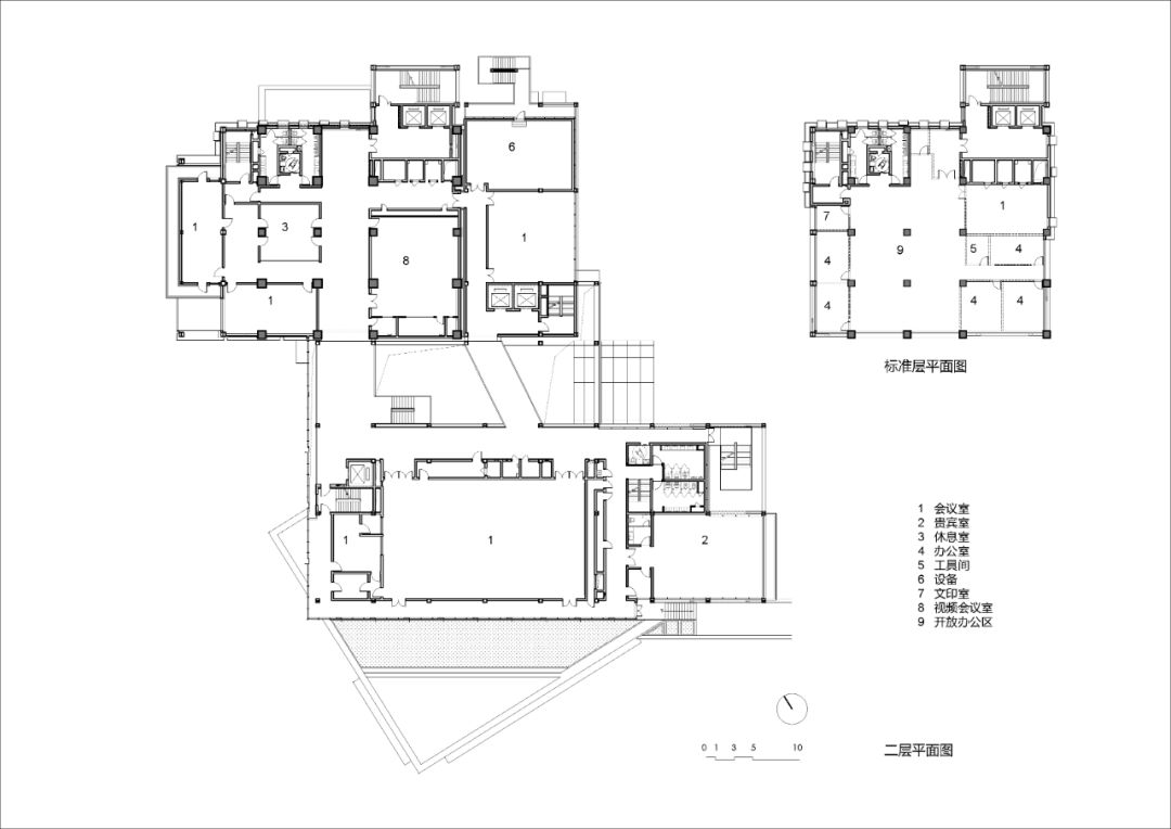
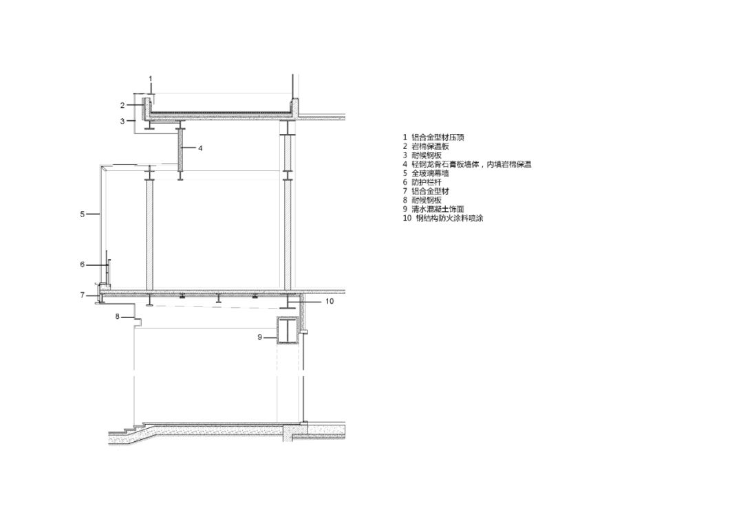
△N3-2 转运站与会议中心剖面细节图
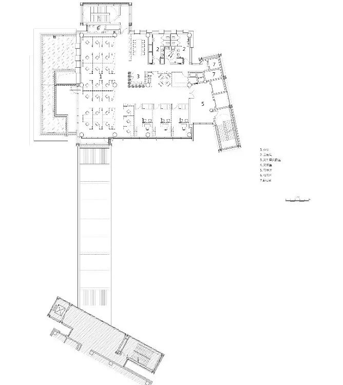
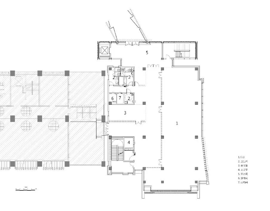
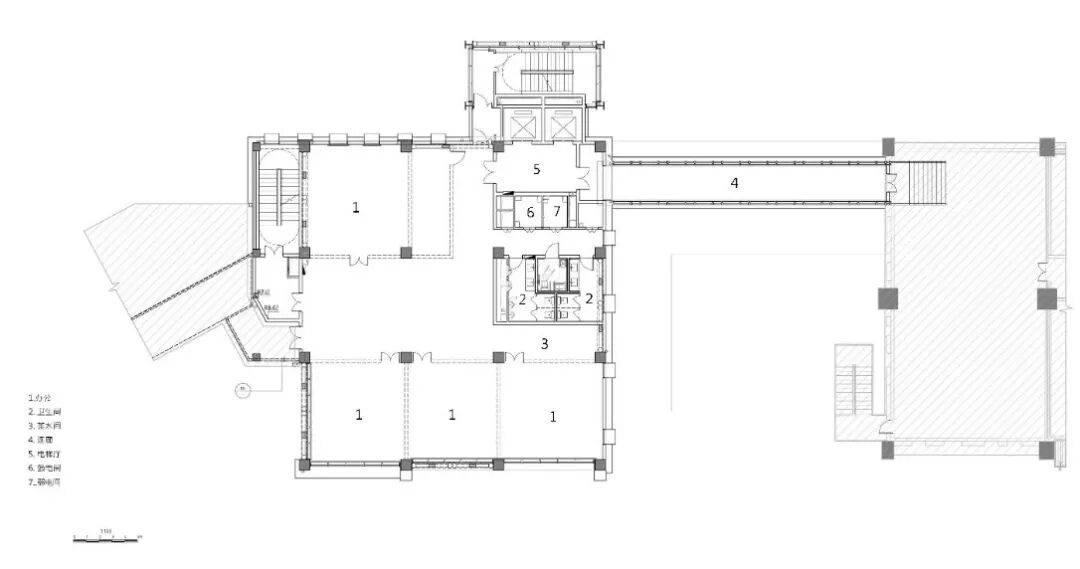
△N3-3转运站四层平面图
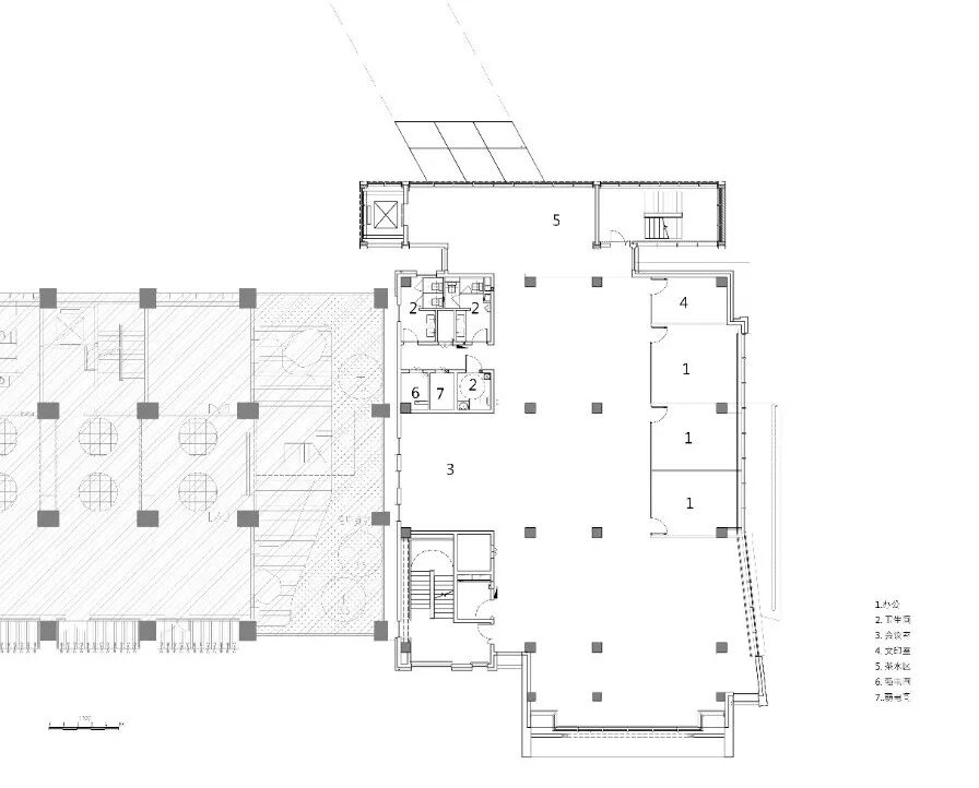
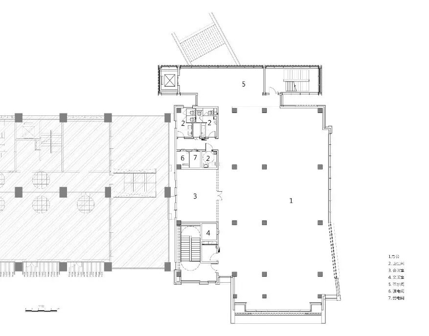
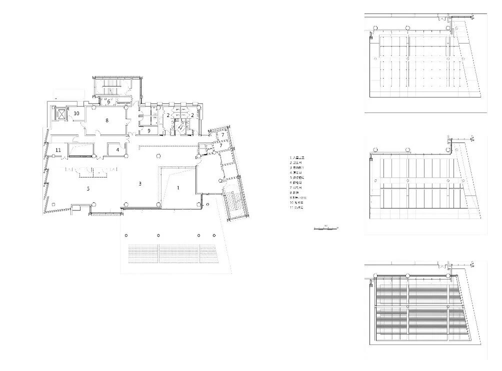
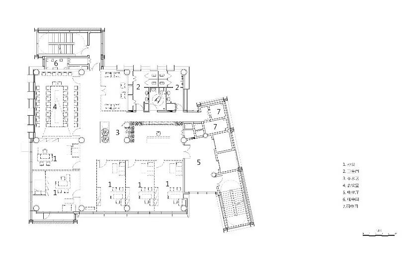
△员工餐厅三层平面图
项目档案
项目地点:北京·石景山·首钢厂区北区
项目业主:北京首钢建设投资有限公司
创作时间:2016.3–2016.10
建成时间:2017.8
项目规模:8.7万㎡
建筑结构:框架结构、钢结构
项目业主:北京首钢建设投资有限公司
业主设计管理团队:王世忠、刘桦、金洪利、王达明、白宁、段若非
设计单位:筑境设计、首钢国际工程公司
项目负责人:薄宏涛、朱江、李慧
方案(筑境设计): 薄宏涛、蒋珂、朱江、张洋、王增、范丹丹、辛灵、俞鹏伟、张泳强
施工图设计团队
建筑(筑境设计):薄宏涛、赵嘉康、朱江、张洋、高巍、张志聪、陈玮楠、邢紫旭、朱雪云、范丹丹、蒙治银、张泳强
结构机电(首钢国际工程公司):侯俊达、袁文兵、陈罡、李慧、袁霓绯、张悦、王洪兴、林莉、王静、宋鹏宇、于立峰
景观设计(北京清华同衡规划设计研究院有限公司):
朱育帆、姚玉君、孟凡玉、田锦、赵佳萌、朱思羽、常湘琦、高露凡、易文静、孙宇彤、王晓玲、于淼、鲁键盈、张瑾渝、张皓、李燕、何晓红(结构)、张跃(水)、张美霞(电)
照明设计(清华大学建筑学院张昕工作室,同原(北京)照明设计有限公司):
张昕,韩晓伟,赵晓波,王丹,周轩宇,牛本田
冬奥广场料仓办公楼:华清安地
南六筒仓办公楼:华清安地、英国思锐、比利时戈建筑设计
倒班宿舍及能源楼:中国院李兴钢工作室设计
建筑摄影:陈鹤、黄临海、王栋
编辑排版:筑境设计品牌部
商务联系:400-8066-508
筑境设计出品 未经授权禁止转载
欢迎分享到朋友圈哦