![]()
2015年秋,筑境设计连续参与了西十冬奥广场联合泵站、倒班宿舍的设计投标和三座转运站的改造工作。以此作为时间的起点,在其后的七年里,筑境全情投入,沉浸式参与了首钢园区的大量更新工作。团队先后完成了北京首钢园区西十冬奥广场、国家体育总局冬训中心、三高炉博物馆及全球首发中心、星巴克冬奥园区店、北七筒仓RE睿.国际创忆馆、洲际智选假日酒店秀池店、首钢网球馆和洲际冠军酒店、北京六工汇、金安桥工业遗址公园及交通一体化、制氧厂南片区、北京首钢一高炉So Real超体空间5GVR乐园等建筑更新项目;配合北京市规划设计研究院完成了首钢园区北区两湖片区城市设计、首钢园区南区城市设计、首特钢片区城市设计、首钢园区1609街区城市设计工作;与清华院、北京院、意大利LCR、首钢院等兄弟单位合作完成了2022冬奥会单板滑雪大跳台、中国国际服务贸易交易会北京首钢园展区、北京首钢香格里拉酒店等项目,为打造首都城市复兴新地标做出了出色的贡献。
关联作品先后入选2017佛罗伦萨建筑周、2018圣彼得堡艺术周、2018巴塞罗那设计周、2017-2018北京国际设计周,2019-2021中国建筑设计博览会、2018威尼斯双年展首钢“铸忆”城市复兴成就展、2018首尔世界建筑师大会、2019上海城市空间艺术季、2020威尼斯双年展中国国家馆主题展、2021里约世界建筑师大会等一系列国内外重要展览,获得了广泛的国际反响。
在2022北京冬奥会成功召开之际,我们推出“筑境的首钢实践”系列推文,回顾过往七年间,筑境在首钢园区打造城市复兴新地标进程中完成的一些主要作品,致敬我们所身处的这个伟大的时代,致敬首钢存量更新的重要历史进程,致敬每一个曾为之努力和拼搏的筑境人。
今日推出“筑境的首钢实践”系列推文第3篇——北京首钢三高炉博物馆及全球首发中心,全国首个工业高炉民用再生,钢铁巨兽涅槃重生,变身赛博朋克超级网红。
[PROJECT 03]
北京首钢三高炉博物馆及
全球首发中心
△实景视频
![]()
宏大、渺小,峥嵘、萧瑟,静寂、活力,历史、记忆,荣光、责任,作为建筑师,从走入这座震人心魄的恢宏钢铁巨兽的那一刻起,就走入了一场宏大的更新剧目中。笔尖流淌的线条,如投光灯下轻盈的舞步,勾勒这场时空叙事娓娓道来的线索。
![]()
△俯瞰高炉全貌(自然与工业的对话)©王栋
![]()
首钢三高炉博物馆位于园区西北,作为一个世纪前企业建设的起点,这里是园区炼铁设备最密集、特征最鲜明、空间最震撼的区域,夏季奥运周期停产后的寂静园区被冬奥会引爆唤醒,也让曾经的功勋高炉迎来了凤凰涅槃。![]()
项目西接石景山和秀池,北依冬奥广场,东侧是首钢大道和与之遥相呼应的一二号高炉。水下车库31,380平方米,涉展总建筑面积18,425平方米,其中高炉本体6,647平方米,附属建筑7,739平方米。![]()
![]()
设计核心策略为“封存旧、拆除余、织补新”。即谦恭对待工业遗存,保存专属于土地的城市集体记忆;谨慎拆解不必要的构筑,打开工业与自然对话的通廊;塑造公共空间叠合不同场所,置入功能激发活力,成长为城市生活的崭新组成部分。![]()
![]()
三高炉西侧的秀池是高炉冷却水的储水晾水池。设计因势利导在池底植入近900辆泊位的车库并恢复原有水域空间,解决工业遗存更新停车难问题的同时保持了自然肌理特征。结合车库疏散设置的安全疏散环选取了二号高炉的60m直径作为其尺度标尺,在宏观空间内实现了以群明湖大街为轴线,一、三高炉实体镜像及二高炉、疏散环虚实镜像的对位关系,与既有工业遗存呈现了潜在的“虚实相生”的空间逻辑。疏散环内部的水下展厅和通向高炉的甬道两侧的临时展厅是高炉展陈的特色补充。
![]()
![]()
△三座高炉与水下展厅的关系©王栋
高炉与秀池间布置ABC三个附属馆,功能由南而北分别为学术报告厅、临时展厅、纪念品销售和配套餐饮。秀池南道路西高东低令秀池东侧驳岸呈现了“悬湖”特征,三个附属馆以丘陵式地景建筑的形态柔和缝合了东西驳岸的高差并创造了面湖的亲水环道。附属三馆在高炉主体功能关闭时均可以独立对外运营,为城市生活提供了丰富的活力支撑。![]()
高炉本体西侧设置D馆序厅,承接主门厅、水下展厅交通转换厅和接入9.7m展厅的重要衔接功能。高炉本体内则设置了常设展厅、临时展厅和特色书店,此外9.7m出铁厂平台的半室内高炉秀场则是工业风满满的特色展示空间。![]()
△D馆入口,生活日常进入工业叙事的时空之匙©夏至
![]()
依循基地突出呈现的 “工业”与“自然”二元并置的风貌特征,设计采用了正负双鹦鹉螺螺旋线的参观流线。参观者穿过附属A馆,通过保留的柳堤进入湖面纵深,拾级而下进入水下展厅,从水下静水院眺望高炉,而后穿过水下甬道回到D馆序厅,经楼梯电梯盘旋上升到达炉顶罩棚平台回望湖光山色。参观者以浸入的方式游走于自然与工业、静谧和热烈之间,达成众多空间维度效果的反复关照和对偶。![]()
©筑境设计
![]()
结合进入水下展厅的疏散环,设计导入了第一组空间装置——“首钢功勋墙”。疏散环直壁一侧采用粗粝的手工剔凿纵向齿槽板,斜壁为光洁如绸缎般的清水混凝土,在细腻与粗犷的材质对比中,首钢百年的重要事件嵌刻其间,令到访者在进入展厅前的漫长环道内已经进入了首钢的历史叙事中。环内的光影勾勒和不经意间仰望视角中对高炉的惊鸿一瞥,都令纯功能性的疏散环承担起了展览序厅的场所职能。![]()
![]()
△拾级而下进入湖中疏散环通道©夏至
![]()
△水下环道内仰望视角中对高炉惊鸿一瞥©夏至
![]()
△首钢功勋墙,对企业百年荣光的铭写©筑境设计
玉璧状环形水下展厅围合的静水院上空,8m直径的开口引入了万神庙一般的空间神性。隔空仰望,三高炉正被纳入圆形框景之内,静谧与雄浑间的视觉对话正回应了身处“自然”之中对话“工业”本体的空间主题。![]()
△设计手稿
![]()
△阳光穿过水下展厅围合成的静水院上空开口,营造出万神庙般的空间神性©王栋第二组空间装置——“首钢功生命之火”位于水院中央,直径10m的静水面形心位置塑造了长明火焰,以原始聚落中“火塘”的概念展现首钢生生不息的企业精神,也为“首钢人”提供了一处温暖的心灵慰藉。设计初期的天然气火焰因安全问题调整为一组涌泉结合红色泛光,以红色涌动的水柱达成相似的空间表述。水面中央预留了60cm直径可开启式“烛台”装置,为燃油筒形灯柱的置入提供了硬件条件。![]()
△圆形的天井位于水下展厅的中心,隔空仰望,高炉正被纳入圆形框景之内©筑境设计
从“生命之火”指向高炉方向,设计导入了第三组空间装置——“首钢功勋柱和铁水光带”。铁水光带从水院出发,火红的灯光劈开地面一路奔涌流淌向东,抵达红色穿孔板包裹的功勋柱,柱内LED环幕上以滚动呈现的首钢员工花名册向每一位用双手塑造了企业辉煌的个体表达深沉的敬意。![]()
△“铁水”光带©夏至
![]()
△铁水光带从静水院中心出发,将观者带入首钢的历史叙事©夏至![]()
D馆序厅中的“折尺长梯”是第四组空间装置。附着于高炉本体西侧的巨大的空腹钢桁架中纵贯漂浮于地面上的游龙般长梯,引导视线和人流从主门厅蜿蜒到达9.7m主展厅。长梯下铺砌的材料选择了高炉炼铁矿石和水渣混搭的材料,结合桁架、梯台营造了矿山矿床与巷道的意向。渐变孔距的长圆形西向穿孔遮阳板在梯台上留下退晕状的光影,拉长了空间的距离感,也令向上的攀爬充满了期待感。![]()
△D馆序厅中的“折尺长梯”蜿蜒而上,营造喧嚣到静谧的空间转换©夏至
![]()
△D馆序厅中的“折尺长梯”如同游走在工业巷道之中©夏至![]()
![]()
△轻重对偶,巨石般嵌入D馆序厅的A馆与漂浮的“折尺长梯”©林半野
高炉9.7m平台是主要展陈空间,作为生产周期内最重要的工艺平台——出铁厂平台汇聚了大量工艺遗存。在这里,“高炉和三组出铁摆动溜槽”成为第五组也是最具震撼力的一组空间装置。高炉完整保持了炉体高大雄浑的工业特征,各种观察风口、进水点、热风、喷煤、氧气、氮气、水冷管路和检修桥架平台呈现了令人眼花缭乱的工业复杂巨系统景象。三座摆动溜槽均完整保留,而除尘罩则呈现了完整保留、保留一半和全部拆除的状态,除尘罩的平剖面、纵剖面和完整三种状态也呈现出了一种戏剧化的并置效果。![]()
△高炉内部呈现的复杂工业巨系统©王栋
![]()
13.6m参观环桥下西侧设置了新月形展示空间,主要展陈及后场功能均布局于此。该空间西向衔接D馆序厅,东向采用全通透落地玻璃面向高炉,令展陈空间和博物馆最重要的核心展品——高炉本体拥有了紧密的视觉联系。东部环桥下未设室内展陈空间,而选择了以开放可进的“工业考古”方式带参观者零距离对话工业遗存的沧桑与厚重。![]()
△新旧对偶,三高炉重力除尘器及热风炉电梯外观©筑境设计
乘坐电梯到达72m标高,高炉东侧天车梁一端被置入玻璃栈台,营造了第六组、也是最高的一组空间装置。除登高揽胜的工业旅游之外,未来也必将成为首都一处最炫酷的空中秀场。在这里,自高炉回望秀池、石景山则成就了“工业”与“自然”的又一隔空对话。![]()
![]()
“时间有无数序列,背离的、汇合的和平行的时间织成一张不断增长、错综复杂的网。由互相靠拢、分歧、交错,或者永远互不干扰的时间织成的网络包含了所有的可能性。”![]()
©筑境设计
在这个赛博朋克的时光机中,时空或可逆流成河,或折叠穿越,而原点,永远来自工业精灵带给心灵的深深触动……![]()
2018年11月23日,奔驰长轴距A级轿车在首钢园区举办了中国发布盛典,此举成功吸引了全国车友的目光。2019年10月,火遍全国的抖in北京嘉年华将活动场地选在了充满未来感的蒸汽朋克风格的三高炉,艺术与钢筋铁骨上演了一场跨界融合,高炉灯光秀与舞台灯光秀交相辉映,让抖in 北京嘉年华之夜成为了2019年初秋最美好的记忆。
![]()
![]()
△2019抖in北京嘉年华©首钢新闻中心
2018年12月31日,北京卫视2019年跨年晚会会场选址首钢三高炉秀池,通过首钢秀池水下展厅屋面搭建舞台营造了无以伦比的湖中冰上舞台的视觉效果,令世界为首钢的更新效果侧目。2019年12月31日,由北京市文化和旅游局与北京冬奥组委文化活动部共同主办的2020北京新年倒计时活动暨第四届北京冰雪文化旅游节在三高炉秀池举行,千余中外嘉宾共同启动2020北京新年倒计时,珍贵的工业遗存与丰富的冰雪奥运元素有机融合,碰撞出新的火花,抒写着传承与发展的时代篇章。这一系列文化导向的场景营造已经引起了城市能级的聚焦关注,也必将不断在未来给园区给城市带来惊喜。
![]()
![]()
![]()
△2020北京新年倒计时活动暨第四届北京冰雪文化旅游节©首钢新闻中心![]()
△戏曲文化遇上工业美学©筑境设计
更新后的首钢三高炉成为各大品牌和文化活动的热门场地, 还成为了大型建筑展览的“宠儿”。2018年9月,“铸忆”——首钢园区暨三高炉博物馆城市复兴成就展9月登录威尼斯,向世界展示了以首钢为代表的中国现代化转型之路。2020年(后调整至2021年举行)三高炉将再次出征威尼斯,与首钢园区冬奥广场、星巴克冬奥园区店项目一起将参加威尼斯建筑双年展的中国馆展出,继续向世界展示首都城市复兴新地标的建构历程。![]()
![]()
△威尼斯双年展主席保罗·巴拉特莅临观展
![]()
△三高炉©筑境设计
![]()
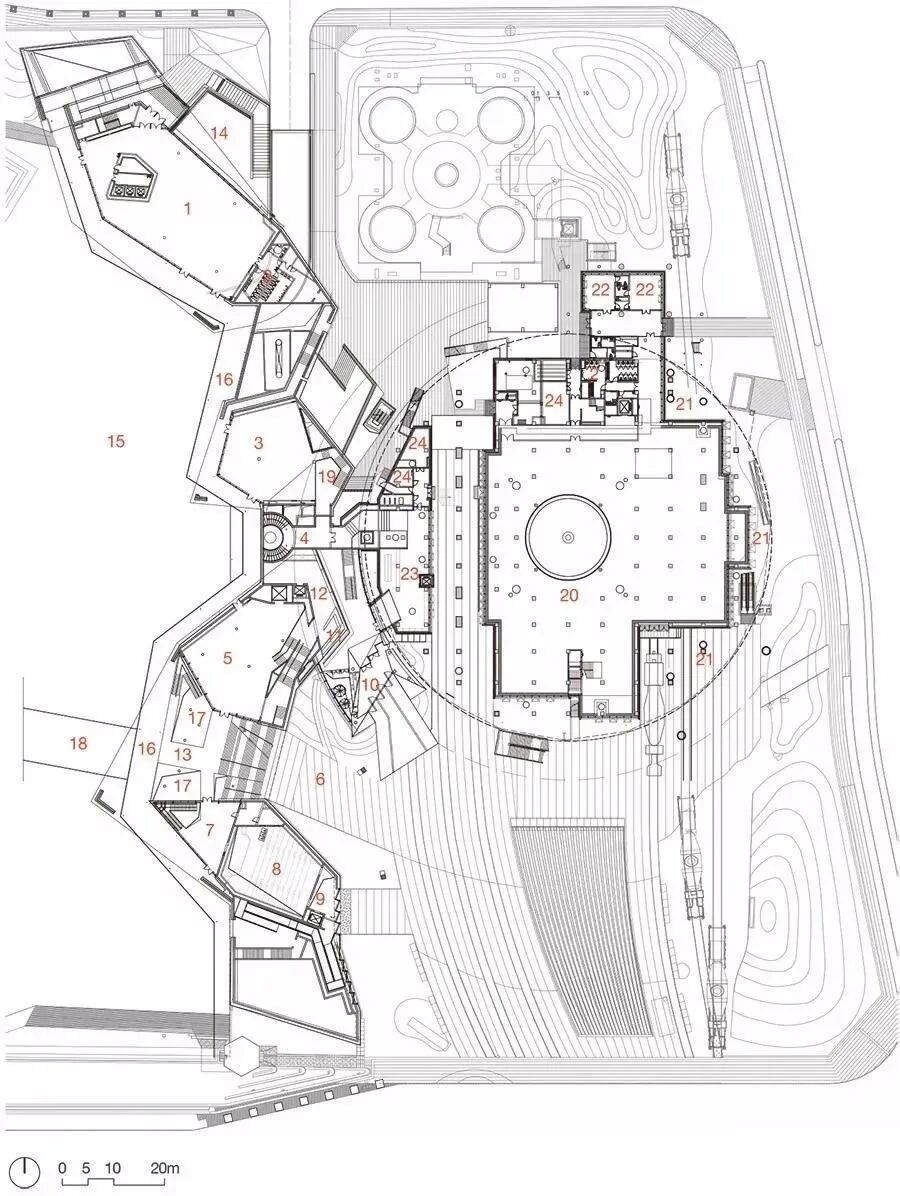
![]()
△总平面图
![]()
△2.8m标高平面
![]()
△9.7m标高平面
![]()
△秀池地下车库及水下展厅设计研究草图
![]()
△高炉本体平面研究草图
![]()
建筑面积(平方米):4.98万㎡ (地上 1.16万㎡,地下 3.82万㎡)设计团队完整名单:薄宏涛、刘鹏飞、蒋珂、范丹丹、康琪、王增、周明旭、郑智雪结构:侯俊达、袁文兵、陈罡、宁志刚、殷永刚 、吉永平、张秀震、陈喜雷 、李洪飞、于立峰结构机电(筑境设计): 郭法成、崔学宇、王超、王向荣、王萌、胡翠娟、郑浩;周乐、孙岳、蒋志勇、张丽新、宿文静、李云根、于明松景观(北京清华同衡规划设计研究院有限公司): 朱育帆、姚玉君、田锦、孙宇彤、于淼、吕回、佟思明、易文静三高炉和秀池景观照明(清华大学建筑学院张昕工作室,同原(北京)照明设计有限公司 ) :张昕、韩晓伟、赵晓波、宋栢宜、王丹、周轩宇、牛本田、陶龙军(筑境设计)薄宏涛、刘鹏飞、蒋珂、范丹丹、康琪、周明旭(蘑菇云设计工作室)徐迅君、杨育青、崔强松、陈汝玮、徐贞(北京清尚建筑设计研究院有限公司)于雷、黄双秋、李鹏、刘晨、李昱晓、姚青龙室内标识(SURE Design):张烁、王小阳、陈雅安、梁培华施工现场服务:薄宏涛、赵嘉康、张洋、高巍、张志聪、张莹、朱雪云、康琪、周明旭、赵蒙蒙、倪子禹、庞太龙、谭晰睿、李可惠、王思惟、谢小丽图片来源:筑境设计,夏至,王栋,林半野、首钢新闻中心![]()
![]()
![]()
![]()
![]()