![]()
自2013年宁夏美术馆项目启动至今土建竣工,已过了接近十载时光,她的建成填补了宁夏省级美术馆长期缺失的状态,为宁夏今后艺术的传播与发展提供了高品质的展示及研究空间。宁夏美术馆位于银川市金凤区,是北部新城东西向公共活动轴线的起点,基地周边空间十分开阔,基地北侧隔街相望的是拥有巨大体量的银川市民中心。宁夏美术馆的设计以巨石体量回应了周边的环境以及宁夏本土的地域文化。
△北侧立面古时先民刻印于贺兰山岩壁之上的岩画经过数千年时间的沉淀,逐渐成为宁夏不可缺少的文化与艺术的组成部分,贺兰山也因此成为了宁夏文化艺术的天然载体及象征。设计取意贺兰山石便是希望建筑本身能承载宁夏厚重的文化底蕴及精神力量。建筑形象上提取贺兰山石粗犷有力的形态特征,通过五个山石体量的组合,呈现出富有张力的建筑形态。使得美术馆本身成为一件城市中的公共雕塑,并在巨大尺度的环境中塑造了新的精神锚点。
△西北鸟瞰图
△东南鸟瞰图
△南侧鸟瞰图
△主入口
△入口广场
△东侧立面
△东侧立面
△美术馆局部鸟瞰
建筑设置于场地南侧,通过室外展场与北侧道路衔接。建筑西北角的入口广场衔接来自北侧公共轴线的人流,通过景观的引导到达美术馆入口。建筑以一块完整巨石为初始形体,通过分裂巨石从而形成多个建筑体量,对应西北向的人流打开入口设置中庭空间,并在空隙处通过屋顶及玻璃幕墙将建筑重新整合为一个完整形体,呈现出贺兰山石矗立于茫茫戈壁的写意景象。
△形体生成建筑室内与室外浑然一体,山石的体量既是外部形象的呈现,同时也延续到建筑内部空间。在山石形体组合后自然形成的空隙之中,创造了多样的峡谷空间,形成山、谷相依之态。展厅体量之间的空间曲折狭长而高耸,峡谷之间通过不同高度平台的多维穿插,营造出丰富的空间效果,并形成环状的参观流线,同时使得每个展厅出口处均设置有休息空间供人停留。![]()
![]()
![]()
![]()
△峡谷空间峡谷在入口处放大形成恢宏大气的中庭空间,满足开幕式等重要活动的举办要求。公共服务及培训区则以流动的曲线与硬朗的山石体量形成对比,结合半月形的纯白吊顶,营造自由浪漫的空间形态。艺术家沙龙融合室外庭院,打造舒适的交流氛围,并与外部城市空间及贺兰山形成对话。![]()
![]()
△中庭空间
![]()
△公共服务区
![]()
△艺术家沙龙建筑造型力求简洁,同时注重细节的设计。三角形作为建筑的母题贯穿于整个设计之中。建筑体量通过切割形成多个三角形的折面,强化山石体量感。在公共服务区体量顺应墙面形态结合内部功能,形成渐变的三角窗。南侧大面积的三角窗为办公及画室空间提供了良好的采光条件。屋顶上的三棱锥天窗呈现出蕴含几何韵律的图案感,同时还也承担着中庭采光的功能。立面石材上手工凿出的条状刻痕呈现出的质感,与大面积玻璃幕墙平整表面的对比更强化了山石形态的粗犷。室内空间的石材面上嵌入错落窄长的磨光石材,丰富墙面的肌理,呈现更为亲人的立面尺度。![]()
△立面细节
![]()
△屋顶细节
![]()
![]()
△立面细节美术馆公共空间与自然光线产生了良好的互动。峡谷侧面缝隙中渗透进来的阳光随不同季节,不同时间变换位置,生动地勾勒出山谷形态。屋顶天窗处投下的光影如同透过云层的阳光在山谷中游走,为室内空间更增添了一份趣味。![]()
![]()
![]()
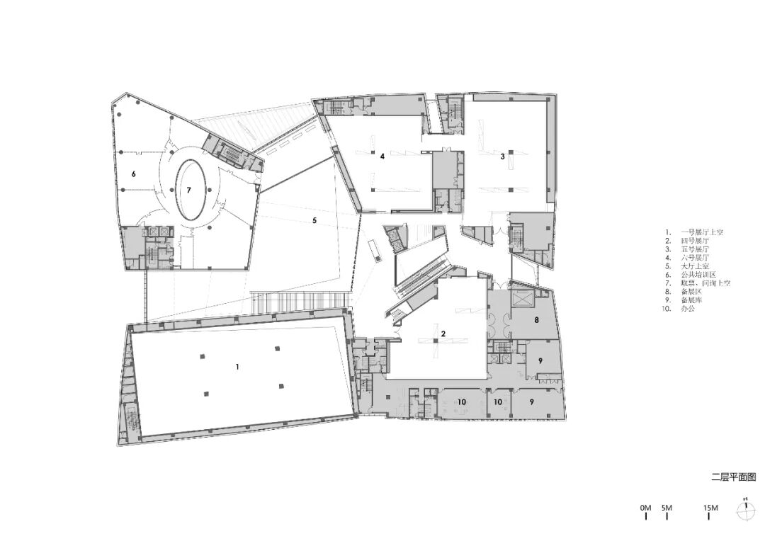
△建筑光影一个优秀的美术馆既需要大量多样的展示空间,也需要完善的配套功能。在外部起伏多变的建筑形态之下,宁夏美术馆提供了十个形态规整的展厅空间,充分满足各式布展的要求。展厅分别设置于建筑一至三层,其中建筑一层设置三个展厅,包含一个1200㎡、8米净高的高大展厅,为大型美术作品提供了极好的展示空间,并能激发艺术家们为此空间创作新的形式的作品。二层的三个展厅及三层的四个展厅均围绕公共平台设置,各个展厅既可组合观展也可独立使用,赋予了布展良好的自由度,避免在个别展厅布展时对于其他展览的干扰。地下一层的典藏库设置了纸本、油画、杂件等多个专用仓库,配备先进的储藏及设备系统,为美术作品的储藏维护提供了专业的保障。
△恒温恒湿库房
△油画库美术馆内同时设置了完善的配套功能,西北角的体量内垂直组合了服务大厅,咖啡厅,公共培训,艺术沙龙及城市观景平台,为美术馆后期运营提供良好的支撑。自成一体的布局可在美术馆功能关闭的情况下灵活独立使用。同时在一层北侧还设置了200人多功能厅,方便学术交流会的举办。![]()
△总平面图
△地下室
△一层平面
△二层平面
△3.6m夹层平面
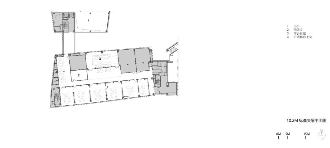
△10.2m夹层平面
△三层平面
△19.2m夹层平面
△立面图
△剖面图
项目地点:宁夏回族自治区·银川市
业主单位:宁夏文化厅、宁夏交通投资集团有限公司
建成年份:2022年
总建筑面积:29992平方米
设计单位:筑境设计
主创建筑师:周旭宏
方案设计:周旭宏、范晶晶、邱杰
施工图设计:范晶晶、余星星、邱杰、詹一山、肖俊龙、徐超华
结构设计:孙会郎、倪兴惠、骆涛、庞金龙、朱洪祥、马慧敏、何鑫、唐伟
景观设计:张家声、王楠、陈涛
设备设计:王自立、潘军、王瑞兵、沈丹群、余富奇、纪殿格
幕墙设计:陈浩、刘建忠、季汪靖、孟绍峰(中国联合工程有限公司)
室内设计:周旭宏(筑境设计)、梁思佳、陆欣宜、常洪量、杨茜(北京同堃建筑设计)
泛光照明:刘蓓、戴宏(谙澜照明设计(上海)有限公司)
摄影师:根本堂建筑摄影
本文供稿:邱杰(筑境设计上海公司)
编辑排版:筑境设计品牌部
商务联系:400-8066-508
![]()
![]()
![]()
![]()