2022年,苏州内卷加剧。
尤其是像园区、狮山等一些具备优秀地段的项目,幸运拿地的开发商也下血本,纷纷拿出高端产品系来敬献苏州这座城市。
保利“天”字系、万科“拾”系、大悦“壹号”系、中铁建全新力作-星樾系等等...
可以说,苏州今后这段时间,一场比拼高端产品力的战争打响了!
今天我给大家分别详细介绍下这些产品,有需求的买房人建议收藏。
保利园区项目-保利天汇!
上周末,保利天汇临时售楼处正式公开,作为苏州首个天字系,现场人满为患,热度爆棚。
早在进入苏州之前,保利的天字系就已经如雷贯耳。
仅择址于上海、广州等一二线城市,所到之处必是高端豪宅,保利·天汇既是保利发展控股在苏州的首个“天字系”作品,又是首进园区开篇之作。
更难得的是,还是板块断供十余年后,首个上新楼盘,所以引发了业内外的高度关注。
保利天汇,也是至此,正式揭开了面纱。
就在星海高中东,老牌核心圈!
星海高中东地块位于星湖街西、西沈浒路北,正属于园区湖东老牌核心,星海实验中学在侧。
据此前消息,该宗地块将由建屋和万科联合开发,将打造万科全新系列“拾系”作品。
此前在宁波,打造过万科·朗拾,今年在南京,万科“拾系”也是首次进驻。
从两个城市的产品定位来看,无论是宁波朗拾,还是南京的“拾”系新作,从选址到产品设计,都非常讲究。要么是一线江景加持,要么是城市中心地段。
建筑排布上多采用“围合式”布局,清一色大户型改善为主。
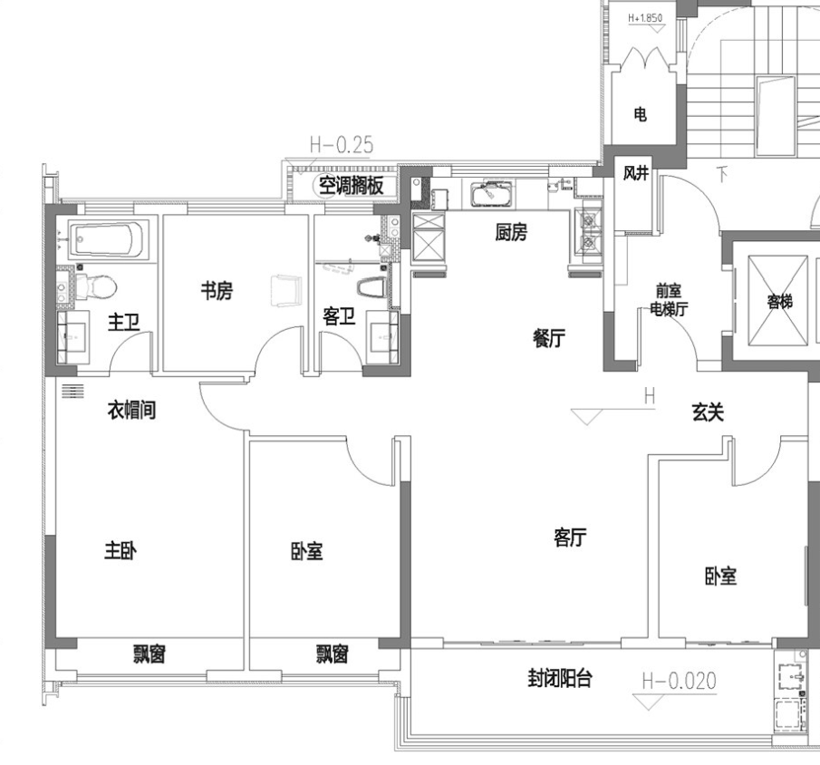
而该宗地块呢,规划打造15幢15-23F的高层,以及三个户型,建筑面积约150㎡(3+1室2卫)、180㎡、250㎡(3+1室3卫)。
约150㎡4房2卫
大悦狮山壹号来了!
大悦永和村地块,就叫大悦狮山壹号,颇有种执掌狮山的味道。
过往的时间中,该产品线创造的神话也不在少数:
整个项目就只打造了6幢小高层:2、5、6、8#-16F,3、9#17F,总共约190户,后期也易于管理。
四房2厅3卫设计,动静分离。南向双套房,居住体验拉满,而且主卧享有超大独立卫生间、转角大阳台。
独立玄关进门后,入眼即超大横厅、以及双联阳台,北侧除了设有厨房以外,还有家政间以及北阳台,细节满满。
另外,后期房源都是全装修交付,最低装标为2000元/㎡。
享受的配套也十分不错,北面和东面都是河流,河对面是红唐购物中心,南面是玉山苑小区,西面就是淮海街,闹中取静。
交通上,距离比较近的轨交站点就是3号线沙金桥站和狮山路站。距离轨交1号线、3号线换乘站狮子山站约1.5公里。
自驾上面,邻近珠江路、金山路、中环西线等交道干线;教育配套则有,新区实小、新草桥中学、高新区实验初级中学(金山路校区)等,说是享受狮山最顶级的配套资源都不为过了。
入住狮山的改善人群,今年到明年虽说是机会满满,但大悦狮山壹号一定是必看的一个项目!
中铁建星樾湖滨!
从2016年到2022,中铁建苏州七年七子,这次的全新产品系-星樾系,又再次吊足了买房人的胃口。
项目由洋房+小高层组成,预计11月底首次开盘,10栋6-10F洋房一次性全开。
户型建面约129m²和143m²,其中129㎡样板房目前已经公开,价格可以参考同板块的中海独墅云著。
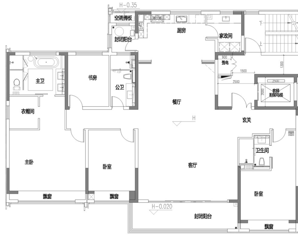
户型最大约143㎡4房2卫,标准的大4房+横厅户型。
另一个约129㎡洋房户型也做到了4房2卫,大方厅,开间约5.5米,全屋4个飘窗,尺度十分舒适。
该户型样板间刚刚公开没多久,当天活动现场,人气十分火爆。
交付见真章!马上,苏州20+楼盘将迎来交付大考,是惊喜or惊吓?