看惯了下城区的车水马龙,罗斯福岛的远离尘嚣,抑或上东的曲高和寡,布鲁克林的西皮风潮,不知道你是否知道,曼岛以东,隔河相望,才是美国当下增长最为迅速的社区。曾经的工业园区和交通枢纽,而今变成了企业和个人眼里的香饽饽——这里容纳着一大批优质艺术机构还有小而美的公司,是纽约最有活力的艺术区,同时又是纽约年轻人们扎堆生活的新据点。
走进这个区域之前,它的名字你会不会记错用错很重要,因为它叫——
Long Island City, 缩写 LIC,中文名长岛市。
地图上看和罗斯福岛隔河相望,除了LIC,还包含Hunters Point:
请不要叫我长岛
它和盖茨比的(真)长岛是同一个吗?根本八竿子打不着, 请看大地图:
于是,最让人迷惑的地方就来了:
如果你看着上图,非要问我,“Categorically, is Long Island in the same group as New York City” 的时候,我只能点头答 Yes。然后我们切换中文直译模式,就只能多出来一个“长岛市”。
(……语言干扰了认知力)
这个时候还是遵从本地用法为好:纽约人日常嘴上的“长岛”通常只指纳苏郡和苏福克郡这两个郡,很少人会将布鲁克林与皇后区也算作长岛的一部分,所以真正的长岛市其实也就只有一个。
刚来美国的时候,就因为没有分清楚,总以为去一趟长岛市比去法拉盛还要远,闹过不少笑话——首先是租房子,同学们说,你换房的时候试试看lic,我一听见“Long Island”俩字,内心戏就是——“要坐长岛火车上学,我才不呢!”
于是小仙女就和这样绝美的夜景失之交臂:
使用三星大法拍摄于长岛市的1 QPS Tower楼顶
直到有一次收到文创品牌 Baron Fig 的 Andi邀请,(他们家的产品简约而又不发烧,堪称美国文具品牌的一股清流,慕名已久),才得以第一次去到 LIC——当打开地图app,发现从中城坐地铁20分钟就到,我仿佛打开了一个新世界...
Baron Fig 主要团队
Baron Fig的创始人毕业于 Parsons School of Designs,平面设计出身,早年在曼哈顿中城有个小单间用来接活办公。前几年由于文具业务的蓬勃发展,Baron Fig团队搬来了 LIC 这处由工厂改造的写字楼里。
他们的写字楼很有意思——看上去是仓库,世纪上也的确是由厂房改造的;但是风景依旧很赞,从窗口望出去,就是曼哈顿中城的天际线。
Baron Fig 长岛市办公室外景
其实不光是他们,参观完他们在的office之后,笔者又溜达了一下,发现周遭有很多20世纪的大型工业建筑,并且里面已经不是火热的车间,而是画廊、博物馆和工作室,非常像北京的798模式,但又明显比798大而且杂。
随便走几步,就看到了鼎鼎大名的现代艺术博物馆MoMA PS1,PS1没有永久收藏(它的重点是展示艺术而不是仓储),给人一种很任性的感觉,散落在一个巨大的有100幢房间原学校里,无缝衔接在 LIC 社区里:
当时,在MoMA PS1对面有一个建筑工地正在施工,当时没有注意,结果上周,一封来自留学生网房产服务部经理 Damon 的一封邀请函落在了笔者的桌上——
搜索了一下地址,发现这座楼,就是MoMA对面当时在修的那栋楼:
但是这个GALERIE,又是什么意思呢?
英文维基百科首先给了我一个老佛爷——
呃,不太对,再继续挖,原来 GALERIE 是法语:
如果说老佛爷是因为卖琳瑯满目的奢侈品,所以摇身一变成了大牌们的“GALERIE”,那么一栋公寓楼敢用这个名字,应该也是有两把刷子的。
当同事抢先把GALERIE的宣传物料包送来的时候,我突然有一种在逛MoMA的感觉:
Home is Where the Art Is
居所更是是艺术之家
在大楼的欢迎礼包里,介绍四周街区和店铺的手册都是围绕艺术地标的而展开的,连附送的铅笔都是一半是笔刷,一半是铅笔。
GALERIE的楼书包,里面记事本居然和Baron Fig的尺寸一样
先看介绍 GALERIE 四周的册子,高大上得不行:
↑一句话总结:学艺术的同学们收好了!
再看 GALERIE 附近的美食购物地图,第一眼感觉不明觉厉:
但是在最近几次的探索之后,可以负责任地和大家说,长岛市不止有家西安名吃,而上述都是好店。比如第15号(中文名应是“杀手荷兰人”酒吧)的鸡尾酒,还有第18号“Bieroracy”(这个真不知道怎么翻译了)的果味精酿啤酒。
↑一句话总结:住在LIC的朋友们,有口福了!
在十月的那个周三下午,笔者如约和 Damon Team一行人前往了GALERIE,起初还以为走错了地方😂因为GALERIE的一楼,真的同时也是一个画廊,名叫Art Box。
Sales Gallery of GALERIE
内饰的材质&纹理选择,绝了
散发着圣光的沙盘,曼岛-罗岛-LIC一目了然
共182户,2019年交房
2.7米的层高,明亮宽阔
还见到了许多很艺术的画
(等下,本身就是艺术品啊!)
“能问多少钱吗?”遥望着曼哈顿美景,笔者不禁问Damon。
“不着急,关于 GALERIE, 你要知道你每一笔钱都花在什么地方. ” Damon又一次卖起了关子,“你去楼下听下他们的具体项目介绍。”
接下来就是笔者下楼记下来的:
第
1
事
优质开发商:由万科(Vanke US) 和 Adam America Real Estate 共同作为 Sponsor,建筑本身质量和品味绝对有保障。
第
2
事
申请在 GALERIE 购房, Offer Plan 只需$300 即可,想想只需$300就可以锁定自己心仪的房子,还有点小激动!
第
3
事
预计过户时间为2019年春季/夏季,也就意味着还有时间来准备资金。 这对于国际买家来讲,可谓是大好消息。首付只需10%,6个月之后交5%, 再就是交房的时候交尾款。很多国际贷款公司也对 GALERIE 的国际买家很友好,贷款成功率高。
听完讲解,回到天台,只有空旷绝美的天际线
这个...Damon人不见了,发微信吧...
小仙女
GALERIE 房价你有空留言给我,我去Alta找同学吃饭了...
纽约留学生网【Damon】
GALERIE 房价每平方feet 大约1319美元($1319 per square foot),比曼哈顿平均每平方 feet 1773美元的价钱要便宜很多。LIC 的住宅楼和商用楼成长都很快,升值速度非常可观,适合投资性买房。
别忘了再加上这些点:
- 除了中国万科,合作开发商还有 Adam America, 非常有名,目前有10个建案正在销售。
- GALERIE 是中型有永久产权的 CONDO 公寓, 共有182户。其中一半是2-3卧的户型,适合自住、组建家庭;一半是小的精品户型,适合留学自住以及投资。
-公共设施非常完善,有室内泳池,健身房,儿童游戏室.....BBQ,和面朝曼哈顿的空中花园。 许多户型有私人阳台,有的Unit更有大露台,景观超赞。
-现代的厨房和卫浴让生活更加有品味。嵌入式的一体厨房,让空间的利用更为合理. 德国Bosch的厨房设备让生活的品质更上一层楼。
小仙女
OK收到啦,明天给你写!
纽约留学生网【Damon】
谢啦,欢迎晚上来荷兰人酒吧找我们喝酒!
$1319 PSF 已经比曼哈顿便宜了很多了,虽然直接换算成人民币,多少会让人觉得小贵,但是不要忘了这房子是买在哪里的:)
☑
Condo·永久产权
☑
LIC地区发展·潜力巨大
☑
现代化设计·尊享生活
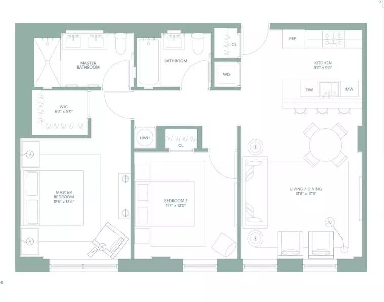
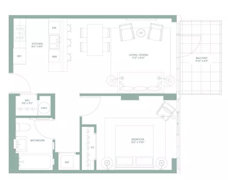
<< 向左滑动查看下一张图片 >>
获取 GALERIE 高清户型图和最新报价,那当然还是要找我们帅气的Damon👇
了解更多纽约优质社区里的优质楼盘,还可以关注小仙女的知乎,小仙女的工作微信:USWOO_Realty
点击阅读原文连接直达GALERIE 官网