© 秦伟
在对整体感、纯粹感、细节感的把握和追求之中,设计团队把厂区里原本不起眼的附属建筑变成了一个富有艺术性的“展品”。无论白天还是夜晚,都令人印象深刻。
感谢 中衡设计 对gooood的分享
本项目位于苏州市太仓通快(中国)有限公司厂区内,共新建综合楼、车间和门卫及设备房三个建筑单体。其中,综合楼为设计重点。作为综合楼的主要功能空间,餐厅的主立面被精心打造。铝制外遮阳百叶的出色应用与相应周边场所的营造,呈现出工业建筑所特有的技术潜能和空间潜力。而项目背后,则是建筑师带领下的设计团队对工业建筑设计美学的独特理解与设计追求。
由铝制梭形百叶组成的垂直感光电动外遮阳位于综合楼南立面,百叶总高11.1m,为国内已建电动外遮阳构件中的最高纪录。方形景观水池的环境组织是本项目场所营造的点睛之笔。在日光下,水池边的白色铝制百叶熠熠生辉,仿佛漂浮于水面之上;在夜晚,泛光照明下的铝制穿孔百叶,与水中倒影交相辉映。
▲科技与轻盈:由铝制梭形百叶组成的
垂直感光电动外遮阳与景观水池©秦伟
事实上,形式的轻盈背后是精细的工艺与复杂的构造。调控单片百叶的 控制马达位于百叶上部,被藏在空腔之中;泛光照明等构件则在底部预埋;水池与主体结构脱开,室内外高差通过石材饰面做平,以获得百叶底部的从室内、室外到水面的连续感和整体性。
铝制梭形百叶的制作全部由通快自有的加工机床完成。作为全球制造技术领域的领导企业之一,通快集团拥有加工金属薄板的精湛工艺。细致的冲孔、辊压,使得百叶本身成为极具说服力的展品,正对厂区主入口的立面也成为了集团产品的大型展示墙面。材料、工艺、构造与环境的叠加,解除了“百叶”这个传统构件的重力束缚,赋予其科技感、轻盈感与古典美。
轻钢屋面向采光方向微微倾斜,以开放的姿态引入室外的光线、水池和草地。室内采光虽然借助了照明设备,但仿佛外部自然光线的延续。为实现室内外采光的连续性和均衡性,我们考虑光线的方向,谨慎选择吊顶上照明设备的放置方向和分布模式,并进一步将空调、吸音降噪、排烟与喷淋综合在几何分割的设备带,以保证室内体验的纯粹性。
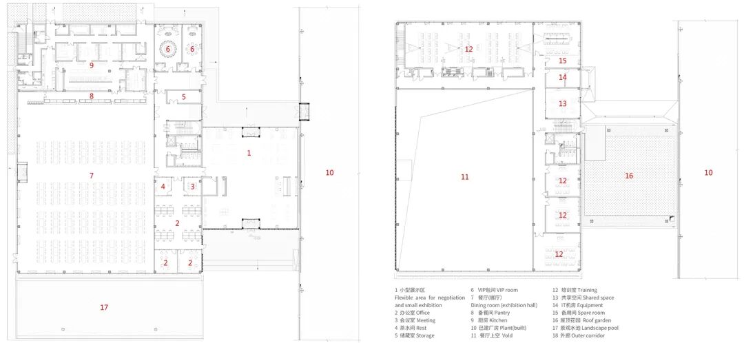
作为厂区工业建筑的附属空间,综合楼以空间利用的多功能性为设计目标,集餐厅、展示、接待、办公、会议、培训等功能为一体。其中,餐厅作为大空间被视同为多功能厅。为实现其多功能性,综合楼实际上采取了混合结构,以获得纯粹的无柱大空间。
呈L型布局的会议、办公、培训等小型功能空间为混凝土结构,直接支撑起了上部的钢结构屋面。内外流线被位于综合楼与厂房之间的连接体有效地分离。位于连接体中部的“木质圆环”,标识出了空间的内外性质。圆环外侧为入口门厅与访客接待,内侧则设置为洽谈区兼做小型展示区,可滑动调节的顶灯,结合可移动的小型展示台,获得了空间的灵活性。内部流线由连接体后部的外廊解决,生产空间的工人通过外廊至综合楼进行就餐,或参加培训、会议等活动。
设计的精细度决定了空间的纯粹性。综合楼看似简单的表象之下,实际上需要建筑师在设计过程中对构造细节持续不断的关注。一方面,建筑师需协调结构、机电专业,将控制马达、钢结构支撑构架紧密配合安装于铝板幕墙系统与ALC外墙之间,以实现外部的纯粹;另一方面,根据对应空间的特质采用相应的吊顶分割方式,并结合设备带进行管综设计,以保证室内外的连续性。
此外,模数化理念的运用,有效控制了空间和立面的比例,提升室内外空间的美学品质的同时,显著降低建筑构配件的定制、施工周期和维护更换成本。
在对整体感、纯粹感、细节感的把握和追求之中,设计团队把厂区里原本不起眼的附属建筑变成了一个富有艺术性的“展品”。无论白天还是夜晚,都令人印象深刻。
项目图纸
▲总平面图©中衡设计
▲一、二层平面图©中衡设计
项目名称:通快(中国)有限公司扩建数控平面激光切割机数控折弯机项目
项目地点:江苏省太仓市南京东路68号
项目类型:工业建筑
设计单位:中衡设计集团股份有限公司
施工单位:江苏金土木建设集团有限公司
业主:通快(中国)有限公司
用地面积:78001.09m2
建筑面积:32534.75m2
设计时间:2017.10.17-2018.4. 3
竣工时间:2019.4.10
主创建筑师:刘恬
设计团队:刘恬,赵海峰,路江龙,沈晓明,丁炯等
摄影:秦伟
文稿:延续建筑创作研究中心 陈婷
版权©www.gooood.cn,欢迎转发,禁止以gooood编辑版本进行任何形式转载
gooood景观设计
小号
gooood室内设计
小号